查看完整案例

收藏

下载

翻译
Reconversion of an old industrial space/parking lot into modern offices, in Espai Serrahima,
. In Espai Serrahima (a hub of artistic-cultural companies), a few steps from Montjuïc and Plaza España, this old industrial warehouse has been transformed to accommodate new workspaces.
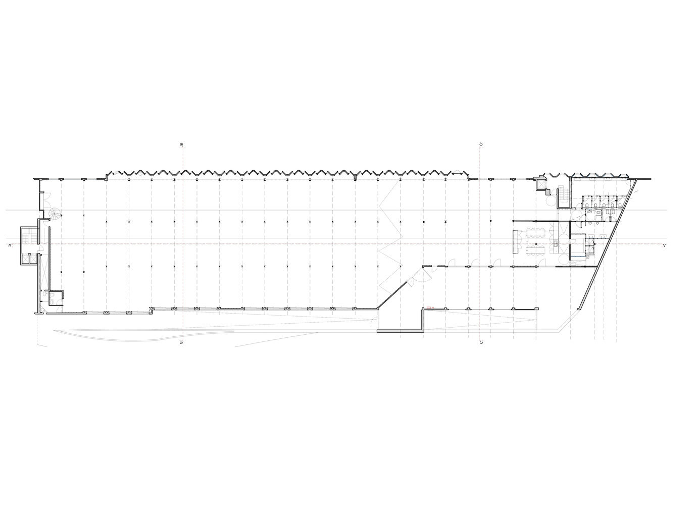
On top of an old textile factory, during the 70s a metal structure was built that hangs over a previous brick construction. This space served as a parking lot, warehouse, and scientific-culinary laboratory, among other activities, before the office adaptation project was carried out.
The renovation transforms the space by enhancing its own identity and emphasizing the peculiarities of the construction and the location. Improving thermal and acoustic comfort, natural ventilation, and identification with the location are a priority.
Forkstone's project emphasizes the dimension of the interior space and the unique structure, freeing it from interior divisions and favoring the relationship with the exterior through new large openings towards the courtyard. The sequence of these openings relates the resulting large interior space to the surroundings of Fira, Montjuïc, and Plaza España.
These new openings allow natural light and ventilation into a previously blind facade, contrasting with the series of narrow windows on Carrer Mèxic that protected the previous industrial activities from the exterior.
To accommodate the new activity, facilities, and services are updated. Coinciding with the variation of the facade and structure of the existing building in its adaptation to the urban fabric, a meeting area is arranged, an office linked to a covered outdoor space, as well as a toilet area that faces Carrer Mèxic.
In these new spaces, strategies, and materials are used that reinforce the character of the previous industrial space that hosts them, while aiming to increase the relationship with the exterior. Sheets and mirrors in the toilets and three-layer fir boards in the coffee areas are joined by continuous natural linoleum flooring that contrasts with the strength and hardness of the concrete and metal structure that house them.
The measured use of color, the interest in liberating and highlighting the unique structure, the scale of the space, its industrial past, and restrained actions with cheerful materials and solutions create a vibrant and fun result. A transformation that aims for the enjoyment and participation of the new occupants in the privileged location with great comfort.
客服
消息
收藏
下载
最近























