查看完整案例

收藏

下载
灰色是理性的色彩,它出身于黑、塑造于白,在黑白的尺度之间衬托事物的质感。
弧形式大自然的馈赠,弧线具有轻盈畅快典雅之美,恰到好处的弧形能给理性空间带来自然的温度。
灰色让空间理性,弧线给生活以温柔;两个元素在本案相遇,带来更具层次的空间感受。
——设计师说
玄关 Hallway
入户区以极简的设计手法起笔,统一且畅通无阻的视感搭配大量的留白设计使空间宁静而优雅。
整屋的地暖铺设,给地面提供高度差条件。抬高地面,入户门区域自然「下沉」,并且两种材质铺装强调了玄关空间。客厅 Living room
暖光的线性灯,用光线中和色彩材质的冷感,同时也是餐厅客厅的分割线。用弧形吊顶造型,规避了房顶横梁的突兀,整个空间似乎都温柔起来了。
电视背景墙储物柜可以自由开合,让空间的简约观感和功能完备兼得。橱柜+立柜的组合,满足了大容量的收纳需求,使整体呈现保有简洁与纯粹的视感维度。
与客厅柜体相连接的隐形门,在保证空间整体性的同时,还保留了空间的开阔感。
餐厅 Canteen
开放式的餐厅与客厅融为一体,秉持着去繁就简的性质,不仅从设计感上从简,连颜色也是由简单的一灰一白组成。以岛台形成的餐厅区域作为全屋的中心,同时也强化了餐厅的功能性。
餐桌桌面通过拼插结构与中岛连接,不仅凭添了一些设计感,更折射出当代生活方式的变化,及人们对互动需求的增强。
当空间层次丰富,人与自然充分相融,一切都散发出极大的自由度,家具物品营造出舒适的场域氛围,诗意便开始在这里流淌。
厨房 Kitchen
用玻璃移门分隔出中式厨房和设备柜区域,削弱了厨房空间的狭长,增加了空间利用率。
卧室 Bedroom
卧室利用低饱和的色调让视觉效果变得舒适,灰色水泥质感延伸整个空间,质感天然的原木材质,洋溢着一种不加雕饰的美感。色泽素雅的橘粉色床品让整个房间温馨感倍增。
通往卧室的门,静默在整面橱柜之中。细腻的木质肌理搭配灵动的线条灯光,塑造出空间自然的原生感,以从容优雅的姿态书写着现代生活的新篇章。
卫生间 Bathroom
改变儿童房开门方向,重构卫生间隔墙,留给干区更多空间。自然风化剥离+水墨质感瓷砖,用色彩给灰色一点想象的空间。生活不止黑白的极致,更多的是灰色的调和,给空间以温柔的弧形。解决的不仅是房梁难题,更是给整屋带来理性中的人文温度。/ 效果图 /
设计亮点:
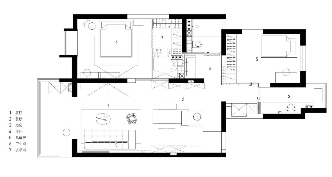
借助整屋地暖而形成的高度差,以及不同的材质,形成玄关区域;用圆柱造型贯穿两个玄关储物柜,支撑的同时也让橱柜更显轻盈;客厅超长置物板,延伸到客厅阳台分界处,成为软隔断也能满足在阳台轻度办公阅读的需求;去除主卧原始隔断,用定制橱柜打造衣帽间和储藏间;改变儿童房开门方向,将卫生间隔墙向内「推」,形成更大的卫生间干区空间。
/ 设计师信息 /
设计师:周俊杰
获奖信息:第十届 Hi-Design 室内设计大赛 设计新锐奖
设计公司:上海映象设计
获奖案例:《临江豪园》
所用产品:日立 VAM 尊睿、新风系统 / 第十届
金奖作品赏析 /
Hi-Design 金奖作品丨沈正全:330㎡简净之所,肆意流淌的自然诗意!
Hi-Design 金奖作品丨蒋礼:光影流动,交织出简洁纯粹的诗意居所
Hi-Design 金奖作品丨超睿里子:以色为趣,以趣解墨!
Hi-Design 金奖作品丨陈熠:二十四院 460㎡ 联排别墅,“自然感”的实验性人文表达
Hi-Design 金奖作品丨陶伟:150㎡老房极致改造,全屋收纳+极简治愈,疯狂心动!
持续关注“风云 HiDesign”,一同领略设计之美!
客服
消息
收藏
下载
最近







































