查看完整案例

收藏

下载
每个家都是一方独特的小世界,在不同的介质下熠熠生辉,这里不需费心经营,就可以舒适自在地生活。借设计之笔,描绘家于居住者心中之形。家所呈现的不仅仅是生活的美学,更是主人精神内核和生活方式的表达。本案设计的重点放在了人和生活本身,而并非华而不实的装饰和奢靡铺张。以简单的线条和色彩构建出简洁、大方、舒适的空间。在简洁基础上,克制地做加法,一点一滴积累出生活滋味,去感受舒适的状态,体会生活的本质。
▌项目概况:
项目类型:住宅
设计地址:海信君颂
项目面积:700㎡
设计单位:本原设计事务所
01 客厅
A LIVING ROOM
全面开放的格局让客餐厅之间相互联动,在提升体验感的同时也增强了整体的采光与通风,简洁流畅的动线规划,在布局之外,营造出使用的更多可能性。
02卧室
BEDROOM
卧室是娓娓道来的自由舒适,光线有层次地穿透进来,自然而然的将松弛感引入卧室,窗外的自然框景入室,走进便能卸下一身疲惫,沉浸休憩。
03书房
STUDY
在安静有序的氛围中,透出着婉转通透的气息,记录着家人最美好的时刻,让他们在工作或是休闲时间,都可以享受着彼此之间的温馨陪伴和交流。
04卧室
BEDROOM
在时间的罅隙里,晚风盈盈,木元素提升整个空间的温度,居于其中,享受岁月带来时光的痕迹。
05茶室
TEAHOUSE
静观细节,感受肌理触感给感官带来的不同感受,勾勒出空间质感,享受居家自由感。择一处清幽,斟一盏芳茗,沉浸时光,品茗岁月。
06 会客厅 THE DRAWING ROOM
会客厅挑空设计,给予空间延伸感,彰显出空间开阔大气的氛围,提升了空间的美感和层次,从而使屋主在精神上感觉到一种舒缓、放松的生活状态。
07吧台区
BARAREA
吧台区兼具休闲、会友、品酒等多种功能。大理石台面赋予空间灵动的光韵,置身通透舒展的吧台区品酒,就像被愉快的能量场包围。
08多功能厅
MULTI-FUNCTION HALL
高品质的居所不止于满足生活基本需求,更能承载闲情逸致和精神寄予。多功能厅根据需要改变角色,通过增加、移动物品的方法去满足多种使用的可能性。
09影音室
VIDEO ROOM
为家打造一个专属影音室,减少浮于表面的装饰,为家人、朋友提供美好的影视、娱乐空间,寻找繁华都市与归隐闲适之地。
庭院
COURTYARD
久困都市的人,对于钢筋水泥之外的大自然,总是充满了无限的畅想和憧憬。一处小院,别有洞天,庭院离生活最近的自由之地。
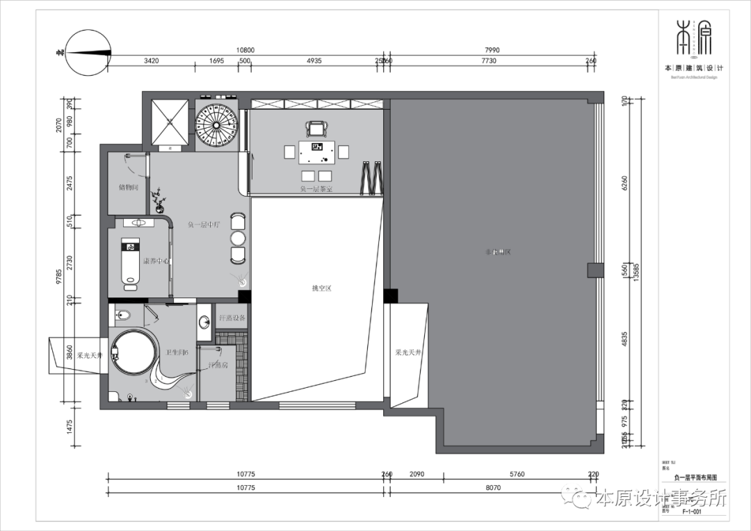
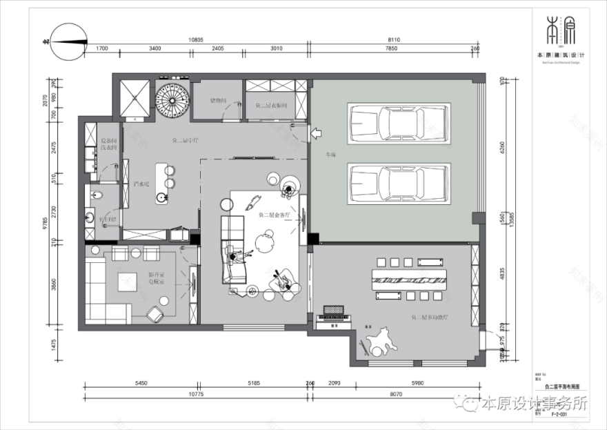
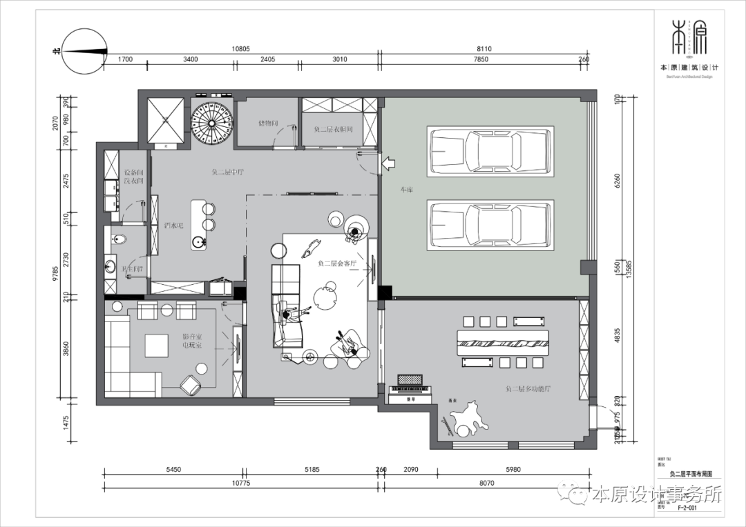
平面图纸
PLAN DRAWINGS
△一层平面布局图
△二层平面布局图
△负一层平面布局图
△负二层平面布局图
戳原文,了解更多本原作品!
客服
消息
收藏
下载
最近






























