查看完整案例

收藏

下载
案例简介
Case description
本案以牛油果绿色的橱柜作为中心点向外发散,空间结构、墙面色调以及其他主材搭配再回到出发点儿,使整个空间互相和谐,营造出和谐且能突出业主喜好倾向的空间。
进门的仪式感从一抹复古的棕红开始,玄关柜中间做了红色的壁龛挂衣区;玄关柜整体带一点奶油色调与红色碰撞浪漫高级;
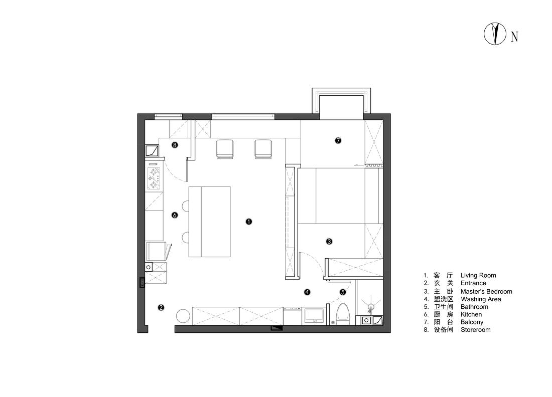
原始房屋进门并没有玄关,通过将右侧卫生间墙体内推同时正对墙面新建墙体,形成独立的L型玄关,靠墙面打造L型收纳系统,同时可以起到引视觉缓冲作用;
顺动线来到客厅,LDK一体化设计让客厅、餐厅、厨房共处于一个开放空间,构成家的“核心区”;
整体色调以奶白色为主,橱柜以大胆、跳跃的牛油果绿点缀,仿佛带到了韦斯安德森的电影“聚会come together”给人以浪漫的氛围;
△我们可爱的神仙业主,我们希望可以为业主打造一个可以“交互”的公共空间;
空间大量留白,尽可能“去客厅化”布置让整个空间呈现非常干净自然的状态;局部的曲线造型给空间更多韵律感;
沙发-岛台-橱柜,低中高自然过渡延伸,模空间之间的界限却又在不刻意减提升空间层次感;
全屋无主灯布局,通过明装筒灯+壁灯+吊灯进行照明,通过不同的照明灯具结合不同高度实现舒适照明光线;
阳台打通融入客厅更加宽敞,考虑到空间结构,和传统电视say“bye bye”,我们选择了三星Serif TV;
阳台一侧利用凹型结构定制矮柜,矮柜内部放置猫砂盆、猫咪用品等,柜门开孔安装猫门方便小猫自由进出;
沙发是menu eave ,曲线柔软的软垫扶手,饱满柔和的建筑美感赋予了空间简与静,带给业主极致的舒适坐感;
一侧大理石台面+木质底座边几复古感十足,搭配一株蓬莱松静谧又高级;
全家福(两人一猫)
业主平时也比较喜欢看书,家中有大量书籍,所以我们在沙发一侧设计了壁灯,方便晚上阅读时增加照明亮度;
在最初的沟通中,业主就表达了想要绿色的厨房,我们基于清新复古的基调下,选择了一款牛油果绿;同时次卧(书房)门也使用了同款色号并且定制了拱形门,门上还增加了圆形透明玻璃,让空间多了一些趣味性;
结合业主的就餐需求,我们并没有规划很大空间给餐厅,而是与开放式厨房相结合,打造餐厨一体式的就餐区域;
利用岛台与餐桌做穿插设计,岛台侧面还安装了轨道插座,方便一些小家电的使用;
圆形胡桃木餐桌木纹纹理清晰美观,圆柱单腿造型轻盈简约;
餐桌下方双面开放格设计,可以放置红酒或者一些就餐时的餐具等;
打掉原始厨房墙面形成开放式厨房,在L型厨房操作区之外为业主打造一个咖啡角,岛台内侧(厨房面)内置镂空收纳摆放成品烤箱,外侧(客厅面)做格栅造型与客厅融合。整个整体回到双面使用、互相融合的和谐区域;
打通后的厨房宽敞通透,搭配牛油果绿清新雅静,烹饪时都会变得心情愉悦!
鲜花与整体空间完美融合;
吧台一角设计了开放置物格;
主卧干净素雅,顶面局部弧形设计柔和空间,(根据业主需求)卧室没有设置顶灯,只在床头一侧设计了床头灯;卧室进行了隔音处理(隔音棉+隔音毡),提高卧室隔音保证睡眠质量;
隔音处理、床头背景墙涂刷深色、同色亚麻遮光窗帘、无主灯,共同营造静谧的睡眠质量;
上墙悬浮式床头柜,节省空间;床头灯光线静谧柔和;
业主对于办公/学习需求很大,所以我们将次卧规划为多功能室(书房+次卧),次卧靠墙做了正面书柜+墨菲床的形式,根据需求变化空间功能;
#书房
改造后将干区外置,彻底与卫生间空间区分,与业主的空间审美和使用习惯相匹配,将家政区与卫生间湿区动线拉进,集中家庭清洗清洁区域功能;
洗手台外置弥补了卫生间空间不足,左侧增加壁龛方便储物,不规则镜子提升设计感和通透感;
湿区外侧放置洗衣机+烘干机,从客厅角度看也可以“隐藏”起来,不影响美观;
卫生间马桶、花洒全部采用墙排式,避免了卫生死角;马桶上方增加储物柜,增加了卫生间储物需求,淋浴间的方形壁龛可以放置洗浴用品;
马桶区与淋浴区通过无边框玻璃隔断分隔同时做了下沉处理,避免淋浴室水外溢。
改造前,原始户型存在问题:
1. 没有玄关,开门见厅,客餐厅以及玄关区域无清晰的功能分区,使用率低;
2. 卫生间采光不足,没有干湿分离,使用感非常差;
3. 原有空间储物十分欠缺且无明显储物功能分区。
改造后,户型优化平面布局:
1. 我们将玄关与卫生间区域进行整合互相利用,干区外移,推出一组鞋柜位置,又通过后期加建空间结构推出独立玄关与洗手区的两面利用,一面对外形成独立玄关,一面对内设立洗手台干区;
2. 厨房打开做为全开放式厨房,客餐厨关系由此形成合理三角关系,由于业主的就餐需求,90cm直径即可,将厨房原始墙面区域打开设立岛台与餐桌功能,与客厅联动;
3. 卫生间干湿分离,将家政区融入,完善家政清洗功能动线。
客服
消息
收藏
下载
最近




























