查看完整案例


收藏

下载
本案是一套面积130m²的双层住宅,一家三口常住。夫妻俩对住所的需求和喜好就完全不同。男业主从事游戏开发行业,头脑风暴型的工作会让人更期待家是自己的精神放松疗愈场;女业主性格开朗外向,更希望家是明亮、宽敞的欢聚场所。设计时,我们考虑了业主居住在这个空间里的共通性,根据两位业主性格喜好和一家人的动线来进行设计规划,一人装一层,让每个人都能按照自己喜欢的方式探索生活。
PLAN
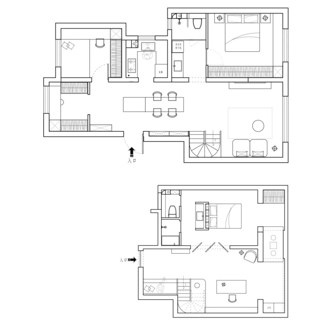
户型分析
PLAN
改造要点:
1、一层作为三口人的起居空间,更强调功能的合理性,将楼梯挪至客厅把角位置,改为半旋转型楼梯,更省空间,也因此能够释放出完整的公区,客餐一体化设计,动线连贯流畅,互动性更强,方便家庭聚会;
2、原入户区没有独立玄关,我们拆除了大门左手边的非承重墙,新增鞋柜,同时把相邻的小房间改为独立衣帽间+梳妆台,解决入户收纳问题;
3、将地下室空间尽可能打开,办公区与卧室之间以三扇华夫格旋转门代替实体隔墙,办公区与精神疗愈室随意切换。
客厅
LIVING ROOM
一层是女主人喜欢的阳光满满自然清新的氛围感,供一家人起居使用,我们用了一个偏自然系的牛油果绿作为整个空间的主色调,搭配灰白色,能与室外园区的绿植景观呼应起来。墙面PU线条做装饰,恰到好处的比例使空间更具层次感。
将原客厅阳台打通并入室内,扩大客厅使用面积的同时也将一层南向进光面最大化,有了阳光的加入,也让这个清新十足的空间更具氧气感。
餐厨
DINING ROOM
客餐一体化的设计有效增强了一层空间的互动感,南北通透性增强。我们在餐区中央放了一个餐岛一体的功能区,四周形成洄游动线,成为串联房屋南北的主通路。
餐区靠近厨房,所以岛台也能成为小厨房的补充操作台,我们在岛台下方设置储物空间,日常可作为备餐区或烘焙台,也能随时查看客厅的情况,做家务时能方便照顾到小朋友。
一层卧室
BEDROOM
一层主卧延续了公区的配色,灰白调中跳出一抹牛油果绿,满屋书写着女主人灵动开朗的个性。我们在卧室内融入了天然材料-原木,视觉上会更贴合自然松弛的空间氛围,飘窗以木饰面包裹增强美观性,将其改成一个独立的临窗休闲区,让南向采光能够被充分利用起来。
次卧做了箱式柜体,增加收纳储物空间。与之相邻的小房间改为独立衣帽间+梳妆台,解决入户收纳问题。
卫生间
BATHROOM
卫生间将洗手台外移实现了干湿三分离,洗手台旁边利用定制柜体嵌入洗烘衣机,在卫浴间干区集合了家政功能。
旋转楼梯间
SPIRAL STAIR
上下两层住宅空间由客厅角落封闭式半旋转楼梯串联,对男业主来说,极具仪式感的楼梯间更像是一个洞穴入口,通过窄窄的甬道进入独属于自己的精神空间,从开阔到狭窄,踏步旋转间会有一个由明转暗的过程,提醒着使用者可以慢慢卸下疲惫转入沉静。
二人世界
TWO PEOPLE WORLD
地下室的楼梯间入口处设计了一个双面镜拱门,一方面可以让这个空间更加纯粹和私密,同时,镜面在视觉上也有让两面空间放大延伸的效果;另一方面,双面镜也有代表着人生不同面的寓意,穿过镜面卸下“面对外界的坚硬外壳”,转向与内在的自己对话。
靠近楼梯间的小会客厅,定制地台卡座,日常可用来看投影,切换成私人家庭影院,开启二人世界模式。
书房围绕一张长桌布局,顶天立地的书柜墙为工作区提供了充足的储物空间,也将书房的仪式感拉满。靠近南向采光井的角落设置单人座椅,工作乏了过来小憩一会,短暂充电后仍能元气满满。
地下室保留了睡眠空间,男业主加班太晚可以直接在楼下睡,避免因工作节奏和作息时间不同打扰家人休息。
夜晚睡觉时可将三扇门板闭合遮挡光线,白天将门扇旋转至垂直角度,地下室的各空间自由联通,通透感更强。卧室睡眠区与卫浴间背靠背布局,中间由一道柜体分隔,四周形成共通的洄游结构,柜体也是床头柜,承载简单的储物功能。
柜子背面是独立洗漱台、马桶间跟浴室,三个区域各自独立,使用体验更佳。
南向天井下做了一个以小王子童话为主题的冥想茶室,由卷帘隔开,当使用者进入其中放下帘子,空间回归人的心理感知,茶室内最简单的配置给予了“蓝盒子”最大的自由度,也赋予了空间疗愈身心的力量,同时希望用小王子的孤独星球更好的诠释男业主的内心世界。
项目信息
位置:北京
面积:130m²
类型:设计施工一体
摄影:立明
MORE VIEW
客服
消息
收藏
下载
最近









































