查看完整案例


收藏

下载
八道河岭村位于北京市怀柔区渤海镇,这里群山怀抱,清澈的溪水从村庄流过。
项目位于村庄的南段,基地位于一处台地上,南侧隔着菜地,可远眺苍翠的青山。
基地内曾有一栋农家小院,早已年久失修,无人居住,业主计划在此建造一栋有特色的民宿,而且要有较多的公共空间和客房。
▲村庄鸟瞰
限制与突围
场地比较狭小,由一大一小两个地块组成,高差约为 4.5 米,中间被村庄小路隔开。房屋的建设受到乡村规则的诸多限制,在平面上,东侧和南侧紧邻村庄小路,西侧和北侧紧邻民居,毫无拓展空间。在高度上,建筑高度不能超过西侧民居。于是,场地的空间边界上,每一处尺寸都要精细计算,成了一个棘手的命题。
在设计上,我们无意去挑战乡村的建设规则,也无意去设计一栋形式自我标榜的建筑,场地的限制反而激发我们去想象和研究,如何在小地块中见大自然,如何让空间变得有趣并容纳多样化的场景?
▲建筑原貌
▲建成后
多重庭院
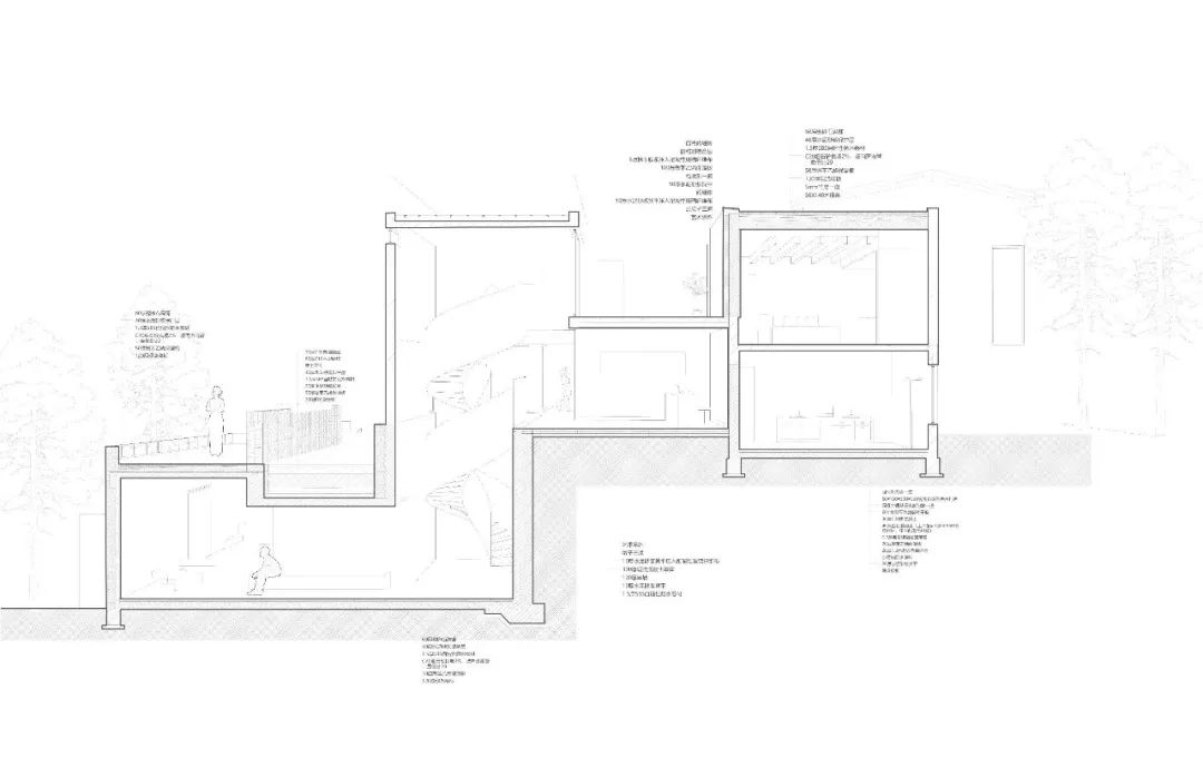
设计中整合了被小路切开的两个地块,通过地下室连通,形成了不同高差的两处入口空间。建筑由三个标高不同的台地组成,每一级相差 0.6 米,中间置入三个不同尺度的小庭院,平面形成了风车状布局。庭院连接着自然,串联了多处公共空间,既解决了客房的观景视野问题,也巧妙地解决了各房间的采光和通风问题。
▲场地剖面
▲建筑入口
在我们看来,庭院本身就是一个建筑问题,并不是一个孤立的景观性的存在,它可以成为日常生活的一部分,更让人体会四季的变化和时间的流逝。安藤忠雄在设计小筱邸(1984)时,寻求在混乱的城市环境中的微小场地开辟出住宅空间,通过庭院进行对外部空间和内部空间的普遍性进行探讨,至今还深深地影响我们。
▲景观庭院
▲共享餐厅
漫步屋顶
在一层,围绕着餐厅和中央庭院,形成了一个洄游的路径。黑色螺旋楼梯贯通各个楼层,穿过地下室,到达南侧地块的多功能室,这里是进入小树林的一个过渡空间。各个公共空间依次展开,或动或静,巧妙地变化着高差,大人和孩子都能找到属于自己的一方天地。
▲旋转楼梯
▲地下通道
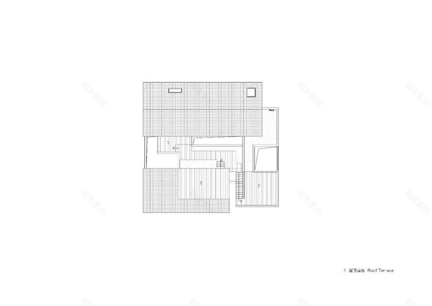
二层的客房埋了一个伏笔,东侧和北侧的客房,通过不同的楼梯达到,但却无法连通。但它们都可以通往共同的屋顶露台,即餐厅的屋顶,制造出一种相遇的惊喜。屋顶露台通过曲折的步道相连,人时而停留在平屋顶,时而跨过坡屋顶,会激发人“爬房顶”的乐趣,也让人更好地观赏四周的山峦美景。
▲屋顶露台
叠加的风景
二层的客房采用了大面积的落地玻璃窗,看到南侧的屋顶和其上错落的步道。这与大多数民宿玻璃窗外即是美丽的风景不同,我们希望创造一种“叠加的风景”。正如矛盾在《风景谈》一文中言:人才是最美的风景。屋顶步道一览无遗,户外活动在此发生,人们在此或休闲漫步或静坐闲谈,近处的场景与远处的山景在此叠加,去唤醒人们在山中生活的乐趣。
▲观景客房
▲远处的风景
▲窗外风景
叠山方院从设计到建成,经历了两年多时间,原榀建筑负责了建筑、室内和软装的全过程设计。由于当时正值疫情期间,设计团队到场的间隔拉得较长。但我们每一次到现场,就惊讶地发现,村庄也在飞快地生长。乡村风貌变得乱而无序,多处民居被拆除,建成了形状各异的民宿,项目东侧一栋大体量的纯白色民宿在施工中。乡村变得越来越热闹了,游客也越来越多了,但我们还是有点怀念它最初时的模样。
▲立面局部
▲建筑一角
▲模型照片
技术图纸
▲项目区位
▲设计演变分析图
▲一层平面
▲二层平面
▲屋顶平面
▲剖透视一▲剖透视二▲爆炸分析图▲交通分析图
▲南向立面图
▲东向立面图
项目信息
项目名称:叠山方院: 北京八道河岭民宿
项目地址:北京市怀柔区渤海镇八道河岭村
设计单位:原榀建筑事务所
主持建筑师:周超
设计团队:邓可超,岑梓鑫,梅炜,谢锭,夏子惠(实习)
建筑面积:460 ㎡
设计建成时间:2021.06-2023.04
结构设计:王全岭
机电设计:王若辰、何琪
主要材料:胶合木、面砖,铝板,水磨石
摄影:直译建筑摄影
客服
消息
收藏
下载
最近































