查看完整案例


收藏

下载
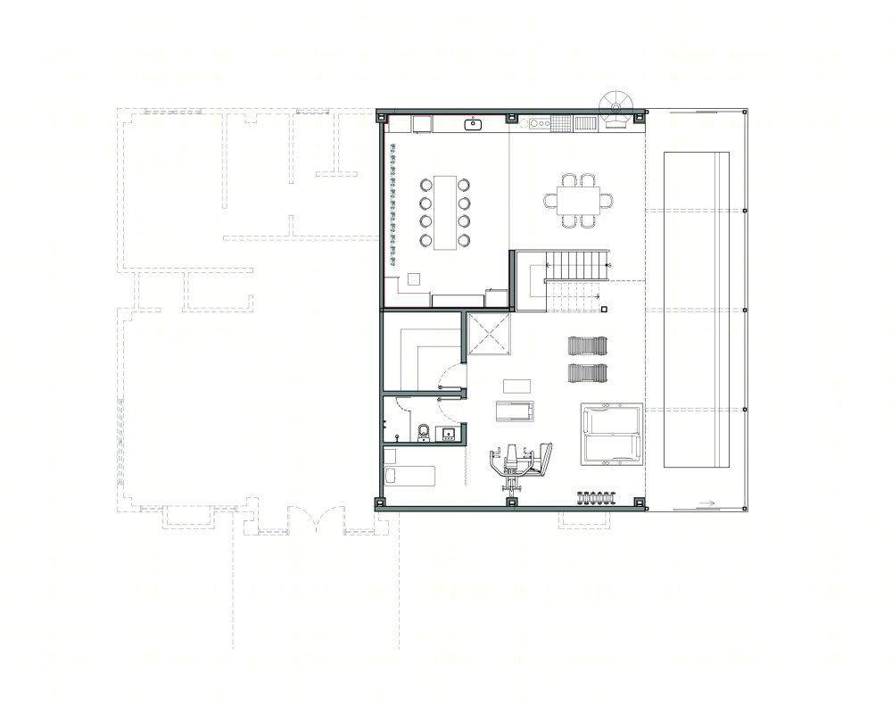
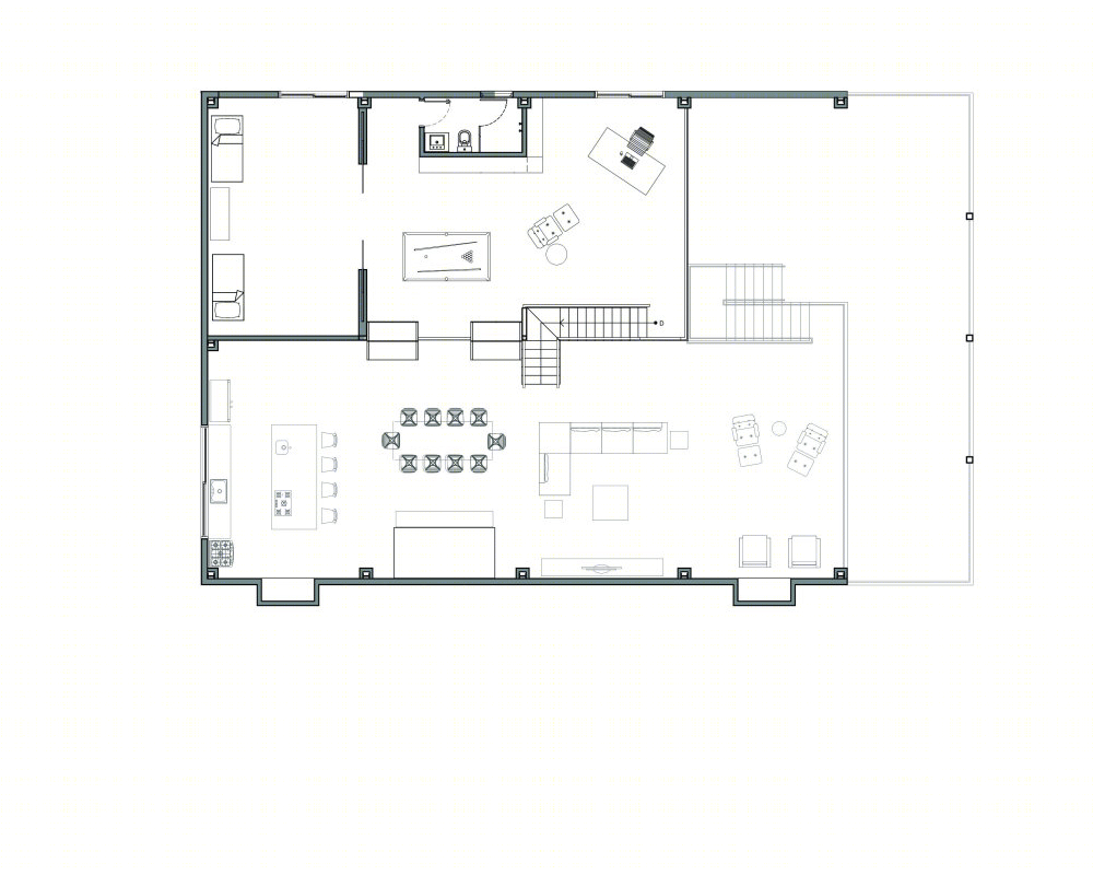
The house is located in the mountains between São Paulo and Minas Gerais.
The view of the lake was the main point of the project. Three floors creating movement inside this large glass box and sloping roof.
The house mixes modern moments and elements of old houses creating an unconventional dialogue between them. A metallic structure allowed large spans and gave a monumental scale to a house with a chalet atmosphere.
-----
A casa ocupa a única área sem floresta deste sítio na região montanhosa entre Sao Paulo e Minas Gerais.
O vista do lago foi o ponto principal do projeto. três andares desalinhados criam movimento dentro desta grande caixa de vidro e telhado inclinado.
A casa mistura momentos modernos e elementos de casas antigas criando um diálogo incomum. A estrutura metálica permitiu grandes vãos e deu uma escala monumental para uma casa com clima de chalé.
E-mail de contato:
Mídia
Créditos fotográficos: Vivi Spaco
Perfil do fotógrafo no Instagram: @vivispaco
Créditos Adicionais
Arquitetos Responsáveis: Chantal e Tito Ficarelli
Equipe de Projeto: Mariana Olha, Carolina Ubach
Interiores: Cristina Tavares
Projeto estrutural: Marcelo Mello
Paisagismo: Walter Vasconscelos
Gerenciamento de obra: Construtora Balsante
项目完工照片:
平面与结构图:
效果与概念图:
待补充……
设计师:ARKITITO Arquitetura
坐落:São Paulo / Brazil / 2013
语言:English
阅读原文
客服
消息
收藏
下载
最近
























