查看完整案例

收藏

下载
独居的魅力,来自于独立生活的空间,更来自于不被打扰的边界和权利。
这里无须扮演任何角色,把自己完完全全还给自己。
本案利用简单利落的线条,柔和朴素的色调,配合复古绿蓝绿配色的软装,辅以深色木纹,给人怀旧复古感的同时,又突显空间在色彩方面的层次感,层层递进,诗意栖居。
融侨美域
[ 项目简介
地址|Address:融侨美域
面积|Square Meters:129m²
风格|Style:中世纪现代风
户型|Apartment:三房两厅
设计|Designer:诗享家设计
软装|Soft Decor:诗享家宅配
咨 询|诗享家咨询预约入口
[ 客户需求
屋主是一位温柔的小姐姐,向往温暖惬意的居家生活。空间功能上,考虑到小姐姐一个人居住,设计师改变原始三房格局,在保留一间客房的前提下,合并两房,将主卧改为大套间,解锁更多生活场景。
结合户主的实用需求和审美偏好,规划出轩敞自由的休闲空间,风格上,选用中世纪现代风,流畅的轮廓,线条体块的对比,整体空间开放明亮,深处此间,让眼睛保持移动,让思维展开漫游。
[ 功能设计
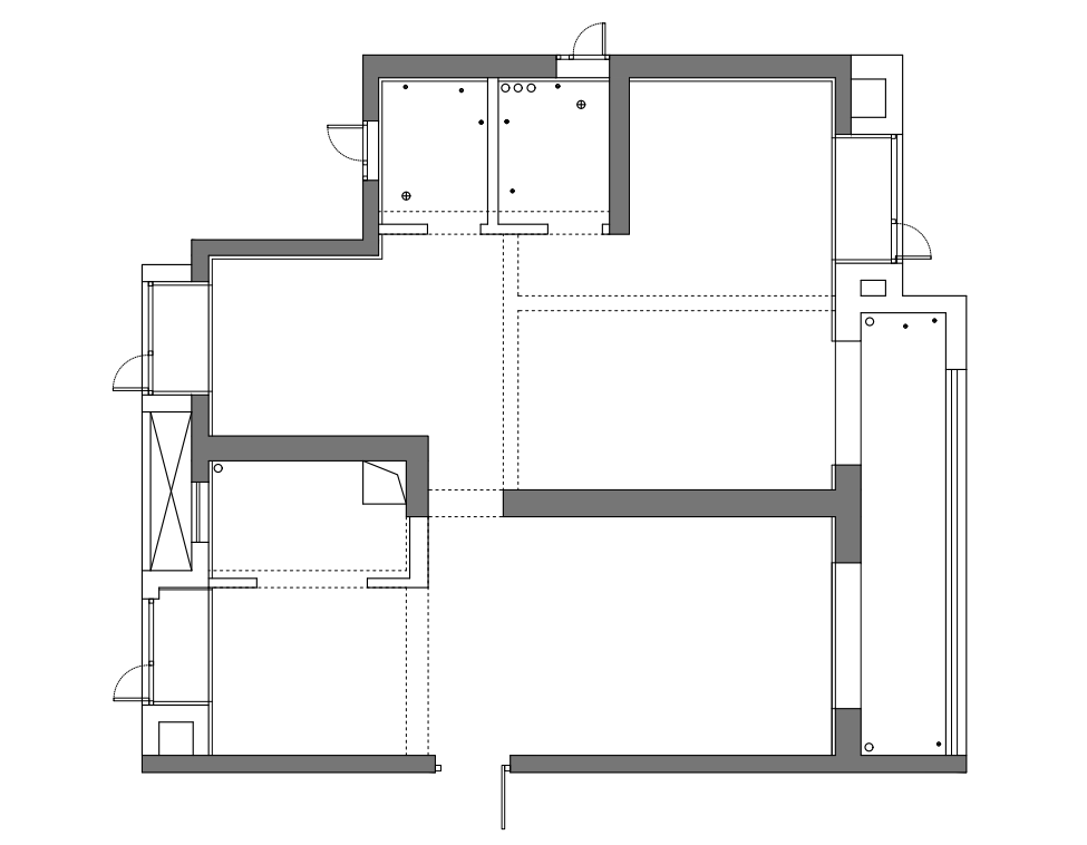
➜向右滑动,查看原始结构图
大开间布局的客餐一体化空间,享受更开阔的操作空间及用餐环境;客厅打破传统布局,沙发不靠墙,阳台墙体内嵌洗衣机,打造洗晒空间,居家生活更方便;调整空间结构,两房合一,打造豪华套房式主卧,增加衣帽间;考虑到常住人口只有户主一人,两卫合并,实现干湿分离,增加单体浴缸,提高居者生活品质。
[ 视觉设计
· 现代与复古的碰撞,如同住进电影里的浪漫,墙顶一体通白,设计装饰梁体,增添线条秩序感,让室内充满舒展气息,通铺鱼骨拼地板,自然纹理清晰可见,和谐演绎浓郁的中世纪现代氛围。
· 以不规则原木茶几为中心,沙发不靠墙左右对摆,家人朋友偶尔小聚,围合出温馨的对谈氛围。
·沙发,茶几等家具均选用无脚或细脚款式,减轻各类物品的堆砌感,空间更显通透开阔。不同材质、不同造型的家具装点出独居的浪漫与烟火。
·电视背景墙繁简有度,去除传统电视墙,深木色壁柜上墙,打造内部空间收纳,不同方位的隔断置物架,实现日常物品摆放。胡桃色和实木材质的结合,也让复古怀旧的同时充满了质感。
·阳台与客厅隔门拆除,公区面积进一步拓展,以正方形线条墙垛做区域划分,落地窗引入自然光线,经由纱帘切割,光影跃动,在秩序美学理念中表达出空间的艺术格调。
·洗衣机烘干机叠放,解放阳台晾晒空间。顶天立地的无把手柜门,视觉清爽利落,实现审美与实用的统一。
· 开放式厨房让日常生活有了更多可能,建立起与餐厅的互动,L 字型让动线让“洗、切、烹”更加流畅。
· 原木色系与整体空间氛围呼应,水台设置靠近餐桌,方便洗手就餐。落地玻璃设计在考虑通风的同时也让窗景完美地停留。
·弧线将实木的清冷感弱化,细腻温润的木色,藤编吊灯洒下的柔和光影,绘摹出优雅舒适的就餐氛围,享受一个人的小食光。
诗享家咨询预约入口
[ 往期作品回顾
你也喜欢这样的家?
诗享家咨询预约入口
[ 我们的荣誉
2022 金住奖——中国(武汉)十大居住空间设计师
PChouse award 私宅设计大奖 2022 年度 top100 作品奖
2022 金案奖-全国优胜奖
家装设计时代风云榜 2021-2022 年度全国榜
2022HDA 她设计奖优秀软装作品
WYD2022 年度(大中华区)100 杰出设计青年奖
2022 度金堂奖杰出展示空间设计
2022 金堂奖卓越设计青年
第九届日立 Hi-Design 室内设计大赛别墅组金奖
2021 私宅设计大奖武汉&长沙 TOP10/全国 top100 设计机构
2021 芒果奖中国别墅创意奖
2021 安德马丁发现中国好设计年度推荐设计师
2021 年度优秀雅奢空间设计
2021 我要去米兰杰出青年设计师奖
2021「营造家奖」年度设计 TOP50
NCA 新商业空间大奖(2021-2022)杰出新商业空间设计师 TOP100
金案奖(2021-2022)·全国优胜奖
潮设计奖-2021 潮设计空间 TOP100
2021 金住奖-中国(武汉)十大居住空间设计师
2021 广州设计周 40UNDER40 中国(湖北)设计杰出青年奖
2020「营造家奖」年度推荐设计师全国百强
2020 广州设计周 40UNDER40 中国(湖北)设计杰出青年奖
2020HDA 她设计奖年度最佳设计
2020 幸福家设计大赛全国亚军
2020Hi-Design 室内设计大赛公寓组金奖
2019 金堂奖年度优秀住宅公寓设计、年度优秀办公室空间设计
2019 年第三届华中区室内设计新势力奖
2019 年好好住营造家奖年度最佳大户型设计 Top20
2018 年度达人设计总评榜全国百强
2018Hi-Design 第六届室内设计大赛优秀奖
2018 广州设计周 40UNDER40 中国(湖北)设计杰出青年奖
2017 中国空间设计大赛“鹏鼎奖”十佳豪宅空间奖、十佳公寓空间奖
2016 国际空间设计大奖“艾特奖”最佳陈设艺术设计奖
2016Hi-Design 第四届室内设计大赛优秀奖
2016 湖北室内设计总评榜住宅空间优秀奖
2016 第七届“筑巢奖”优秀作品
客服
消息
收藏
下载
最近














































