查看完整案例


收藏

下载
Houses, Melbourne, Australia
设计师:Andrew Child Architect
面积: 250 m²
年份:2019
摄影:Tatjana Plitt
建造商: Masson for Light, Miele, Aneeta Windows, Astra Walker, Dining Light, Graphisoft, Morpholio Trace
设计团队:Andrew Child
业主: David Hayes
工程师:Stantin Consulting
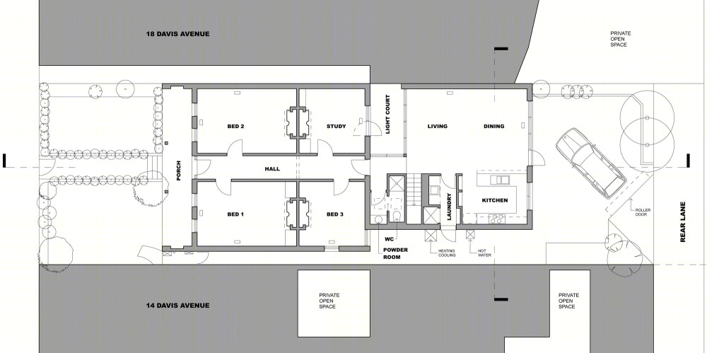
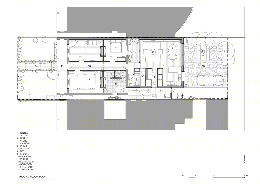
On a restrained budget, we were able to transform a tired and awkward student rental house into a home for the owners and their adult children. We did this by underpinning a thorough refurbishment with some strategic alterations and a tiny side extension. The existing house was in two parts: an elegant double fronted single storey nineteenth-century Victorian house to the front, and a serviceable, but uninspiring 1970’s double storey addition to the rear.
A key move was to remove an upper level bedroom from the existing rear addition to create a double-height dining space below. This new focal point for the home has created drama amongst the relatively modest ceiling heights of the old addition and also opened the living areas to the sky and the trees of the rear yard and surrounding properties. It also unearthed a beautiful workspace area above the kitchen, which now overlooks the dining space and greenery of the rear yard and surrounding properties.
New contrasting black windows and other black metal elements were inserted into and around the solid brick building fabric of the existing rear addition to enliven the spaces. Natural timber was used throughout the interior on the floors and joinery as a warm and unifying material. Items interacted with more closely, such as the brass tapware, elegant bathroom fittings, and marble kitchen benchtop were selected to provide moments of delight throughout. As with the building as much of the existing was retained as possible when considering the new landscaping throughout the property.
项目完工照片 | Finished Photos
设计师:Andrew Child Architect
分类:Houses
语言:英语
阅读原文
客服
消息
收藏
下载
最近






































