查看完整案例

收藏

下载

翻译
The project reinterprets the form of the « upland farms in les Vosges » with a massive volume built in the slope, its glazed gable overlooking the landscape.
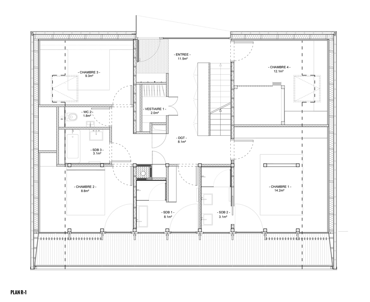
The pathway leads us to the entrance of the house which is located on the middle level.; Upstairs, the bedrooms are in the place where people would store the hay. The living rooms are downstairs at the garden level towards the landscape.
The annex building has the same form but is smaller than the house. Grey wood outside, blond wood inside. The wood comes from the region of the Vosges: spruce from the sawmill Gaiffe. The stone comes from Bourgogne (Rocamat and Sebeler).
Regarding interior design, the agency “Du Ciment sous les Plaines” has chosen the elegant furniture. The project is the culmination of a common vision about the local resources and the preservation of the local territory.
客服
消息
收藏
下载
最近












