查看完整案例

收藏

下载

翻译
Casa De Mi Luna is in, Czech Republic, overlooking the Berounka river valley and the ancient castle Karlštejn. The house is designed for an ArgenDnian-Czech family seeking respite from the bustle of Prague. The outer form and appearance needed to conform to local regulations as the house is on the edge of the Český kras nature reserve, which also seeks to preserve local building heritage. Thus the house aligns with the local vernacular; a simple symmetrical gable roof, rounded eaves, traditional rounded clay roof tiles called “bobrovka”, and mixed lime render and larch cladding facade.
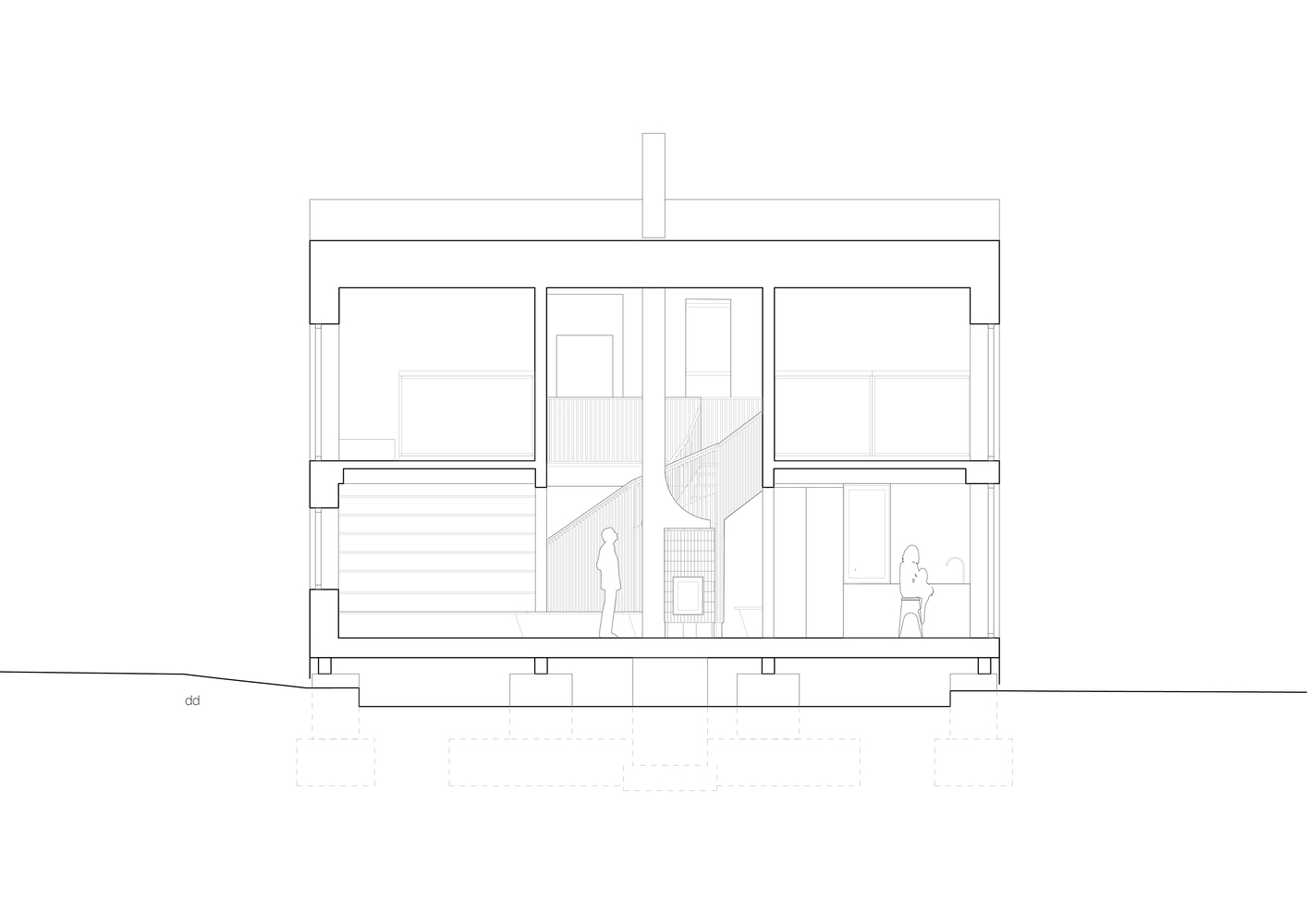
The design of the interior, on the other hand, is more open and playful than a typical Czech house. The almost completely open ground floor is determined by a segmented staircase that curves up into the double-height space of the second-floor landing.
The staircase delineates the zones of the ground floor while simultaneously creating a gentle porosity between them. The two opposing, symmetrical rooms on the second floor have east and west orientations and feature an arched ceiling as a result of a creative collar De solution for the raPers. The interiors are dominated by wood and earth, with soP touches of traditional blue, green, and terracotta tiles. The main idea for the choice of materials was to use as many local and natural materials as possible.
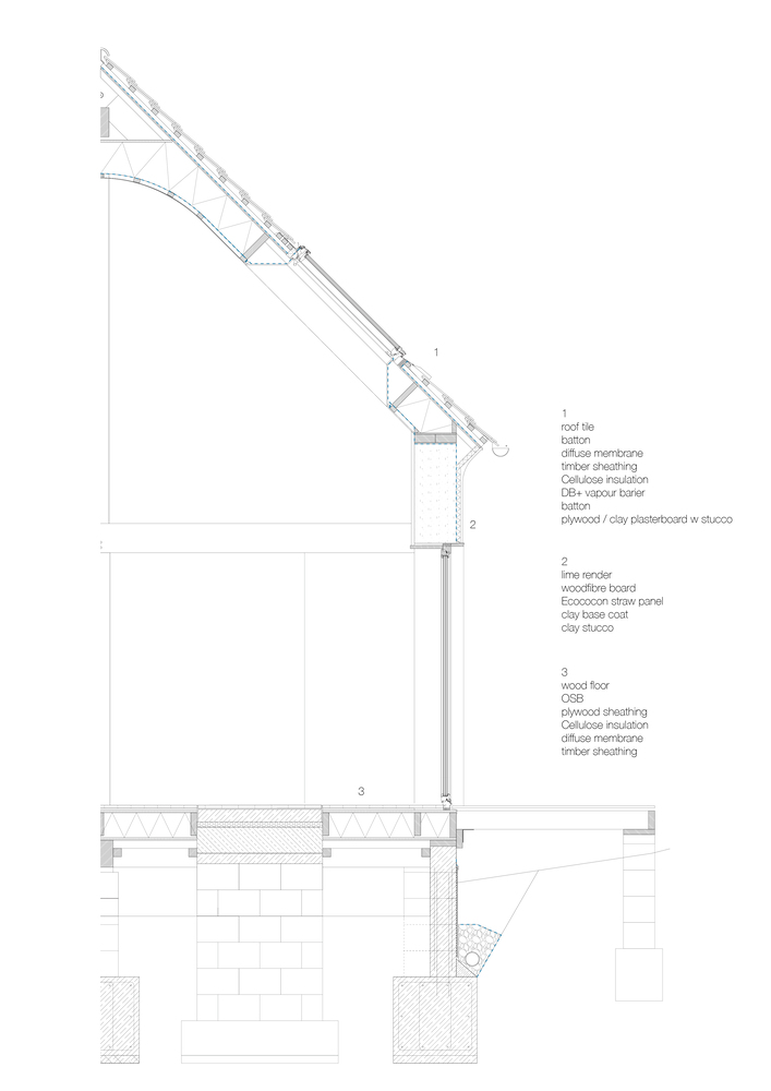
The house is built using prefabricated straw and Dmber panels which are quickly assembled on site. These are plastered on the inside with three centimeters of clay plaster for accumulaDon and moisture regulaDon. The final layer is a delicate white clay stucco on the inside, and lime render and larch cladding on the outside. Partitions are finished with pine plywood.
The entire central bay of the house is open, allowing the place where the house is connected vertically to breathe and bathe in light. The staircase thus becomes a central feature that not only connects the two levels but separates the ground floor into distinct yet open and interconnected functional zones.
The arched ceilings of the central space of the staircase are plastered with a fine white kaolin clay plaster from the Czech company Picas. The plaster was applied on prefabricated clay boards that were fixed onto timber slats. The arched ceiling was the result of a need to fix the rafters together with a collar tie. Instead of doing this with straight timbers, we cut the arched collar ties out of plywood.
The fireplace is clad in green tile, evoking historical mass ovens of the region. It is placed strategically between the living room and dining room to spread warmth evenly throughout the house. The fireplace insert also heats water which is then stored in a large tank in the utility room. When the temperature in the house drops below a certain temperature, warm water is distributed into the wall where there is a 3cm thick layer of clay plaster. The clay plaster functions as an excellent thermal mass, storing the heat as though it were a mass oven, and gradually releasing it into the rooms. Moreover, the clay plaster regulates the moisture of the interior environment as well as the straw Ecococon panels.
客服
消息
收藏
下载
最近






























