查看完整案例

收藏

下载

翻译
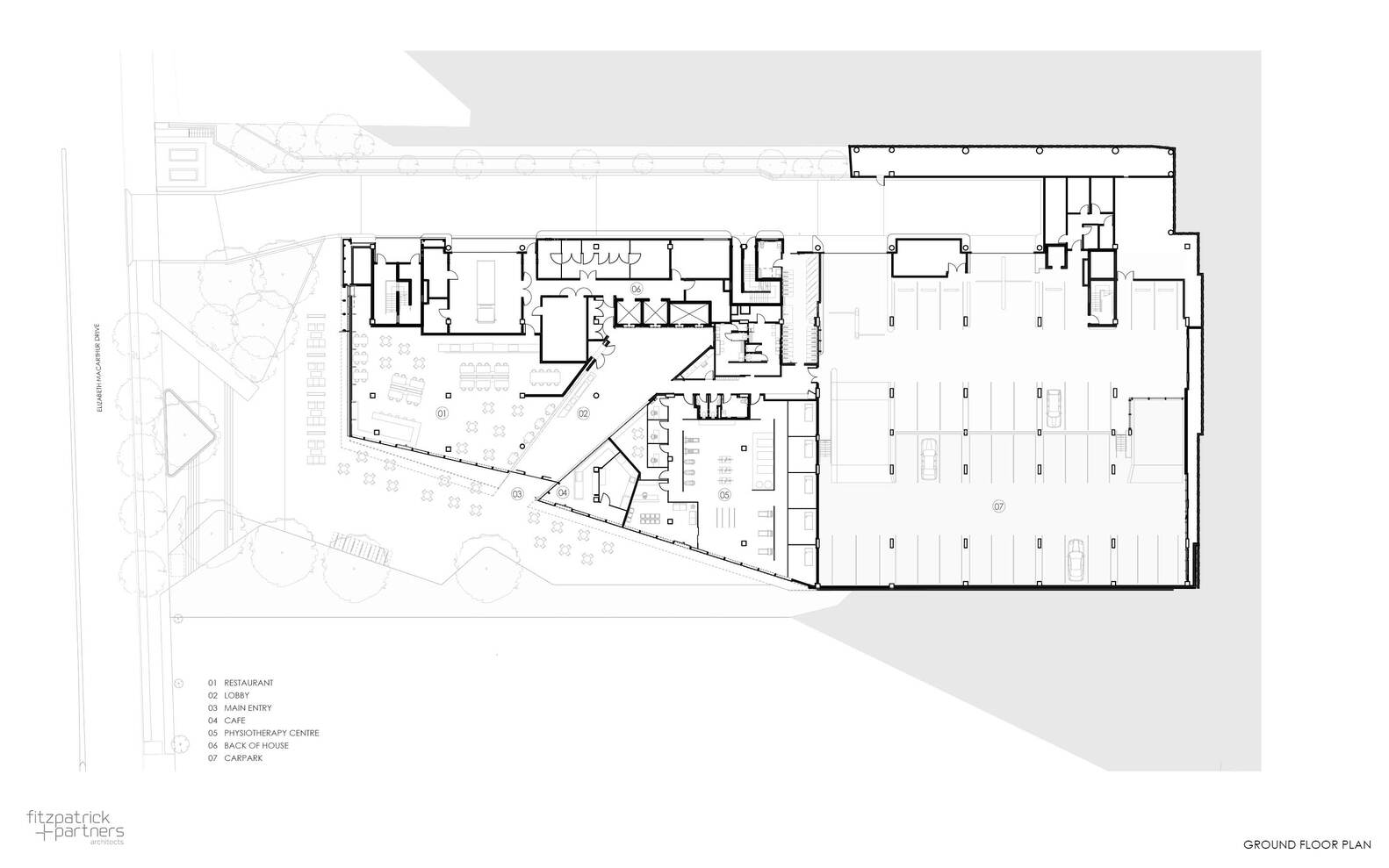
The Bond is an innovative six-story engineered timber office building located in a suburban business park approximately 30km from Sydney. The building integrates 10,500m
of commercial office space, health consultation, and treatment rooms, a childcare facility, and a ground floor supporting retail uses. It is the first of 3 buildings to edge a new food and beverage plaza precinct. The site is part of the Cumberland Plain, lands of the Dhargug Nation, being the inland Aboriginal peoples of the Sydney hinterland. The original grasslands were rich in animals and plants and sustained these peoples for Millennia. The area was developed in the late 1700s as one of Australia’s first farms, with the actual building site being an early brickworks, creating the bricks for the expansion of the suburbs north of Sydney harbor in the 1950s. It has subsequently been redeveloped as a new residential and working park.
The design solution for The Bond links some of the histories and patterns of use of the lands and peoples to create new suburban building typography to address the changing face of “work” A solution that is appropriate in both its local context and how it responds to our environmental emergency. The financial viability of Australian commercial suburban architecture usually results in a banal and carbon-rich building language, favoring financial return over societal responsibility and quality. Our client, as a significant land owner and developer in Australia, wished to address this typical response and look to alternative design solutions -believing that demonstrating a positive response to the issues addressing society and creating buildings that people understood and enjoyed would provide the necessary financial returns.
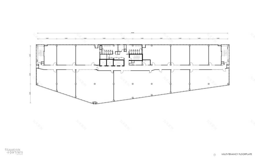
To be able to build in engineered timber over traditional concrete necessitated a simplicity of form and efficiency of the structure. The Bond's design minimized the processing time of the timber structure and therefore costs, by utilizing large span sizes, requiring no transfer structures, and working to a singular and repetitive structural solution. Notably, cross-bracing within the glazed fire stair
preserved valuable views from offices, and repetitive beam and column sizing with simple connections ensured a swift construction process. The timber then remains raw in the internal workplace, with the minimal concrete elements of the lateral bracing core and ground plane overcloud in recycled brick slips mimicking the color of the bricks once manufactured here.
This project's core aim was to highlight the viability of sustainable workplace buildings in suburban landscapes, showcasing a reduced carbon footprint for this building typography. It isn’t the final answer, but starts to unlock the attitude of developers, approval authorities, builders, and end users to the delight of alternative materials, and solutions to start to address our low-carbon future. The Bond through this endeavor proves that building sustainably in our suburbs is no longer just aspirational but entirely attainable.
客服
消息
收藏
下载
最近





























