查看完整案例

收藏

下载

翻译
The region of Axarquia is landmarked by the ancestral footprint of so many dedicated farmers. The agricultural tradition and its vernacular architecture lead us to solve this project from a look into the past.
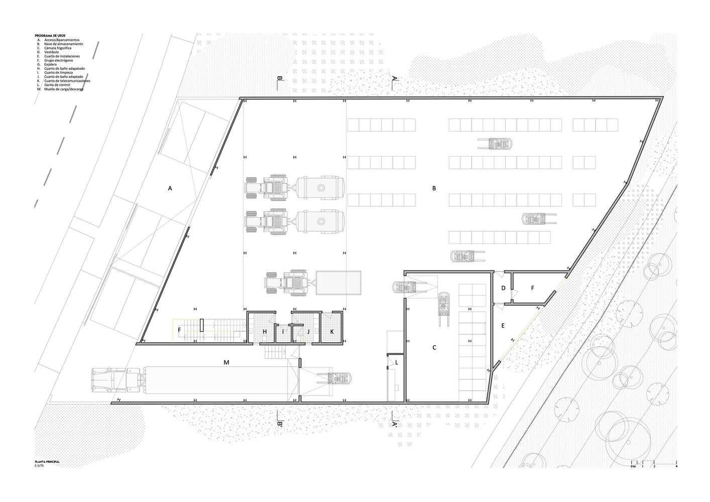
From it, we learn forms, strategies, and gestures that, when applied to the use and distribution of this building, lead us to the result. A building of 1125 m2 divided into four large spaces intended for the storage of products and tools of the agricultural world, where we handle and take care of the raw material until its sale.
The volumetrics clearly reflect those traditional forms that appear in certain areas of the landscape, so that through this learning, issues such as roof water drainage, organization of uses in different sectioned bays, and aesthetic interpretation of the materials used in their facades are resolved.
A modern element is introduced in the facade, polycarbonate, a material also very present in some agricultural constructions such as greenhouses, which allows the passage of light while protecting us from the outside.
A pictorial gesture frames a certain interior area of the nave, generating a colorful and bright point that captures our attention and brings joy and dynamism to the interior activity.
A cathedral of light destined to house the raw material that comes from the land, a space of worship to the field.
客服
消息
收藏
下载
最近



































