知末
知末
创作上传
VIP
收藏下载
登录 | 注册有礼

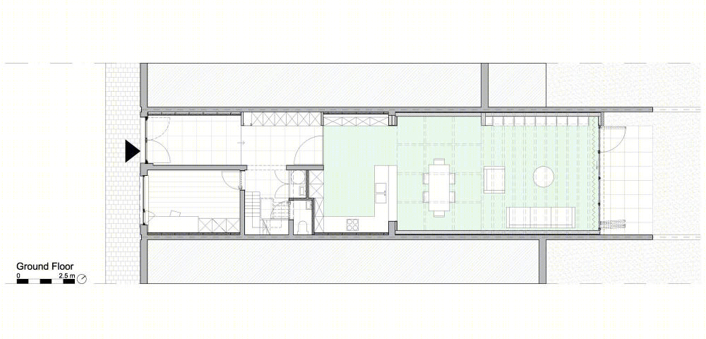
扬·奥利斯拉格斯住宅

2020/08/04 08:01:25
查看完整案例
微信扫一扫
收藏
下载
Houses, Antwerpen, Belgium
Project gallery
扬·奥利斯拉格斯住宅-2
扬·奥利斯拉格斯住宅-3
扬·奥利斯拉格斯住宅-4
扬·奥利斯拉格斯住宅-5
扬·奥利斯拉格斯住宅-6
扬·奥利斯拉格斯住宅-7
扬·奥利斯拉格斯住宅-8
扬·奥利斯拉格斯住宅-9
扬·奥利斯拉格斯住宅-10
扬·奥利斯拉格斯住宅-11
扬·奥利斯拉格斯住宅-12
扬·奥利斯拉格斯住宅-13
扬·奥利斯拉格斯住宅-14
扬·奥利斯拉格斯住宅-15
扬·奥利斯拉格斯住宅-16
扬·奥利斯拉格斯住宅-17
扬·奥利斯拉格斯住宅-18
南京喵熊网络科技有限公司 苏ICP备18050492号-4知末 © 2018—2020 . All photos and trademark graphics are copyrighted by their owners.增值电信业务经营许可证(ICP)苏B2-20201444苏公网安备 32011302321234号
客服
消息
收藏
下载
最近