查看完整案例


收藏

下载

翻译
The White/ Bleached House by Neogenesis+Studi0261 is a delightful residence in the Parvat Patiya Area of
, nestled in a dense locality and surrounded by rugged, hilly terrain. A 3400 sq. ft. condensed residence for a family of 5, the designers coined the name to the home from the first visual perception one might have of it. The dispersion of ample light into all parts of the house brightens up the interiors to be consistently bright as the exteriors, brewing up both the experiences that these spaces bring.
The spaces have been planned as
in order to maximize the space and enhance visual connectivity while maintaining privacy. The house has been planned to pack more space, keeping it a stroke of luck for any Indian family like theirs.
The main door opens into the double heighted living room on the ground floor further leading to the dining and other private areas of the house. The
cutout between the living and the kitchen unifies the space.
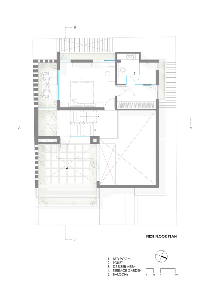
The staircase goes up to branch off at the mid-landing level to access the mother’s bedroom. The staircase further takes one to the first floor which houses the master bedroom with a personal terrace garden. The staircase landing overlooks the living room, aiding connection at all times. This makes the interiors feel spread out and interesting in a limited space. Further halfway up lies a generously sized terrace above the mother’s bedroom which is visually connected to the living room and the first-floor passage. The second floor accommodates two bedrooms, the front (daughter’s room) with a balcony and the rear one (son’s bedroom) with a window overlooking the balcony of the master bedroom. The staircase halfway up takes one to the
.
A plain white scheme with cool and calming interiors adorns the home to form a flawless canvas for subtly colored furniture pieces to be adorned. The hint of wood accomplishes the minimalist palette. The customized hanging wooden rod, that span the length of the rooms, aids smooth lighting.
Maximized use of locally available materials and skilled labor has been made with a connection of architecture, contemporary culture, and current technology, so as to encourage the local community.
of greenery in the elevation and throughout the house are a testimony to the firm’s design dialect. Staggered sections and play of geometric volumes shape up an interesting façade that the family can proudly own.
We admire the house for how cleverly the whole scheme has been tied together while retaining the character of the pieces. The house, thus, is fairly resolved is not visibly cluttered with endless colors, and is relaxing enough to heal the residents’ strain away.
客服
消息
收藏
下载
最近























