查看完整案例

收藏

下载

翻译
Located in Barueri, the RZ Residence was conceived based on the challenge of implanting the residence on a terrain with a more than seventeen meters drop, and a privileged view of the horizon. Thus, the project considers the relationship of balance and opposition between architecture, topography, and landscape, with volumes that sometimes rest directly on land, and sometimes modified. Taking account of the unevenness of the terrain, the construction was developed on four different levels. Despite the fragmentation, the residence volumetry, built of metallic and concrete structure, becomes light and fluid because of its horizontal lines which are reinforced by prolonged eaves and the relationship between full and empty spaces.
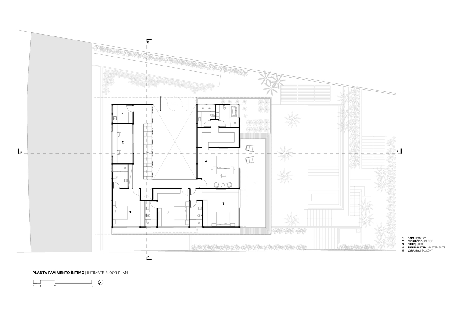
Set on the highest level of the topography, with a light and slim roofing, the entrance is marked by the garage area and by a block covered in slatted aluminum panels that mimic the main access doorway. A concrete portico frames the volume and goes down until it almost touches the ground. Therefore, the entrance presents itself in a minimalistic and inviting way, assuring privacy to the remaining house levels. The RZ Residence access extends into a path that reveals gradually the extension of the house and opens onto an outdoor living balcony, which shows the privileged view of the surrounding landscape. Access to other pavements takes place through metallic stairs, which intertwine and intersect all levels in a plastic and functional way framing the path throughout the extension of the residence. The first flight of stairs provides access to the private floor, with walls covered in light and neutral tones, comprised of three generous suites, a large master suite, and an office.
A large eave facing the back of the lot enabled the construction of a balcony for the master suite. Demarked by a bench that also acts as a guardrail for the space, the balcony is a private space for breathing and contemplation. The lower floor, which is located below the private area, comprehends the entire social area of the house, which is highlighted due to the double-height ceiling in the living room and an internal garden that embraces the environment and brings up life and tropicality to the interior of the residence. The living is also connected to the gourmet area, home theater, a private living room, and dressing rooms. In addition, the social pavement contemplates the service sector of the residence with a kitchen and laundry room.
The harmony and balance between natural materials, such as wood, stone, and concrete, was essential for our selection of the internal finishes for the entire residence, especially the social area. The neutral color palette relates to the wooden lining and the concrete, providing the feeling of lightness and warmth, while the dark shades of the furniture relate to the metallic structure present in the RZ Residence. The connection and integration between interior and exterior were essential throughout the development of the conceptual design. The outdoor area is comprised of a spa and an infinity pool that are presented as an extension of the gourmet area, which contemplates the surroundings.
客服
消息
收藏
下载
最近































