查看完整案例

收藏

下载

翻译
The project is located in east
, close to the Vuosaari harbor and the Baltic Sea, on an existing major power plant site. The new heat pump building sits next to two dominating architectural landmarks: Vuosaari Power Plant A from 1987 and Vuosaari Power Plant B, built in 1998, both of which were designed by Virkkunen & Co Architects.
The new building is a simple box that fits into the existing industrial landscape. Within, a heat pump uses the excess heat of the internal cooling water circulation of the existing power plant in the winter and the seawater heat for about half of the year on average. The client Helen Ltd sees facilities of this kind as a vital factor in their drive for carbon-neutral energy production by 2030.
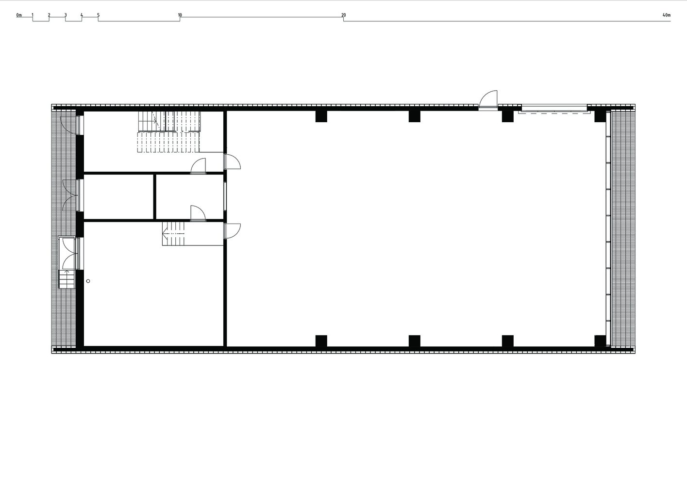
The heat pump building has two floors. On the ground floor is a double-high main process equipment room. On the same floor are also electrical and control rooms. Above these on the second floor is a machine room. A set of external stairs provides access from this floor to the roof. The building has a frame and envelope in prefabricated concrete parts produced off-site and erected as ready-made parts on the site. Interior architecture is defined by the exposed concrete surfaces of these structures.
The longitudinal facades facing an adjacent parking lot and street to the south and the Vuosaari B power plant on the opposite side are clad with mottled red brick. These facades are based on the contrast between the lively but subtle variations in color and shape of the individual bricks and their arrangement within a rigid, exact stack-bond grid. The stacked bond references the red brick claddings of the adjacent Vuosaari B Power Plant. The wing-shaped bricks of the upper parts of the longitudinal walls of the heat pump building were custom-made for the project.
The building is located next to the main entrance to the entire power plant area. The east facade facing this entry point is a double-skin structure with the inner layer consisting of a glass curtain wall clad over by a screen of tall, thin tubes in white-painted steel, which protects the interior space from excess heat and glare of the sun. The building reveals its internal processes to the public.
The west facade provides access to the auxiliary spaces on the ground floor. It also features a double-skin structure, with a straight steel stair suspended between the outer screen of metal rods and an inner layer of in-situ concrete. Like on the east facade, the rods are placed diagonally at the same angle as the trapezoid bricks on the long sides of the building. This three-dimensional arrangement connects the different materials and finishes over all four sides of the building.
The facade treatments and details follow the floor divisions and room heights of the interior spaces to communicate the building's internal spaces to the outside. These also bring the building to a human scale.
客服
消息
收藏
下载
最近


























