查看完整案例

收藏

下载

翻译
Shrewsbury Flaxmill Maltings has been referred to as the ‘grandparent of skyscrapers’. When built in 1797, it was the world’s first iron-framed building, a new technology developed to give better fire protection, that paved the way for modern-day buildings such as London’s Shard, New York’s Empire State Building, and Dubai’s Burj Khalifa.
For nearly a century, the site operated as a state-of-the-art steam-powered flax mill. It was later converted into maltings and during the Second World War, the site was used as temporary military barracks. Following the closure of the maltings in 1987, the future of the site and its important buildings became increasingly uncertain until it was bought by Historic England in 2005.
As a flagship heritage regeneration project for Historic England,
Flaxmill Maltings has been brought back to life as an adaptable workspace, leisure destination, and social enterprise hub demonstrating how historic buildings can be sustainably reused after many decades in decline, through understanding, innovation, and a gentle touch to repair of the fabric.
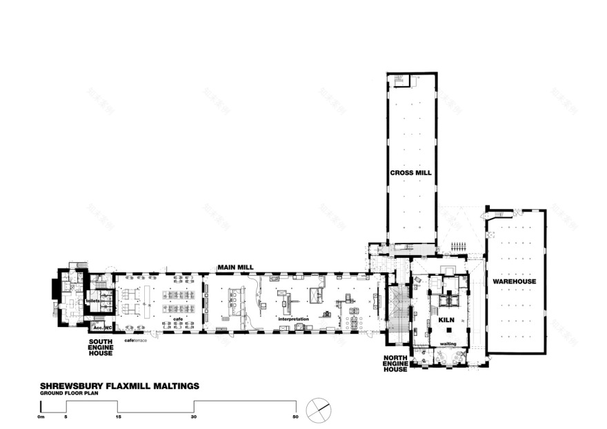
The £28 million project has provided a new space for learning on the ground floor which tells the story of the Mill’s role in the industrial revolution and in world architecture, along with a public café. Above, four floors of flexible office space will provide accommodation for around 360 people, circulation and meeting space within the Kiln for commercial tenants, as well as access for visitor tours to the restored Jubilee Tower.
We have engaged with the local community and wider interest groups to help energize interest in the project. Through developing a narrative around the site, and hosting events, art exhibitions, and heritage open days there has been a positive increase in community involvement and a palpable sense of increased pride in the area. The community chose the name ‘Shrewsbury Flaxmill Maltings’ which was then painted in 2m high 50 long lettering over the principal elevation.
A heritage skills program was delivered during the construction works, using the site itself as a tool for learning. Between 2017 and 2020 a program of heritage skills activities supported by the Andrew Lloyd Webber Foundation was delivered with work placements, site tours, and training events targeted at all levels from students to industry professionals. Historic England is committed to measuring the Social Value outputs of both the project and in operation for use as a future case study.
The project team repaired, reused, and retrofitted driven by the values of innovation, revolution, and adaptation. The fixed budget and high-quality standard called for the team to work together in new resourceful ways and be scornful of any form of waste. We believe the project is an exemplar of striving towards a circular economy.
The cast iron frame had suffered cracking due to settlement and was under-engineered by today’s standards. Replacing and repairing were not consentable or viable options so our structural engineers devised an innovative method of strengthening the masonry around the existing iron to enable it to act as an alternative load path in the event of failure. This brilliant solution meant the entire existing iron frame could be put back to work with the addition of a hidden steel grillage and 6no. new columns on the ground floor. The innovations have been published in the Institute of Civil Engineering Journal.
The environmental strategy followed a ‘whole building approach’ championed by Historic England. Putting the building ‘back to work' required comprehensive repair of the existing fabric and the insertion of new core facilities. Bold interventions and a light touch conservation approach have been employed to seek to preserve and enhance the special character.
The existing massing and multitude of internal changes in level suggested the pyramidal Malt Kiln as the obvious entrance in terms of wayfinding and vertical circulation in terms of resolving level access for all upper floors. The decision was taken not to heat this space to dramatically reduce energy in use.
Natural light and natural ventilation have been re-introduced to the Main Mill building through the re-opening of 110 former windows and the introduction of new metal windows with high-performance solar glazing. The sense of openness is further enhanced through generous circulation and new glazed partitions with acoustically attenuated ventilators.
A state-of-the-art structural strengthening design provides the existing fragile cast iron frame additional load capacity and alternative load paths whilst retaining its unique character as a pioneering historic structure.
The thermal upgrading of the existing solid masonry walls was researched through onsite trials and hygrothermal modeling. The research informed the specification of wood-fiber insulation to further reduce heating. The dramatic entrance space in the malt kiln is to be unheated whilst the accommodation in the Flaxmill utilizes an exposed masonry structure for cooling. The strategy revolves around doing more with less, a continuation of the original innovative design.
Traditional craft, materials, and skills were used and any new layers of intervention have been chosen to complement the industrial character of the site.
FCBS Carbon was used to investigate viable strategies for reducing operational embodied carbon. The carbon calculation tool predicts an embodied carbon cost of 53 kgCO2e/m2 which is less than a tenth of the carbon cost of a new building of similar use. This results from 80% of the existing fabric being retained.
客服
消息
收藏
下载
最近































