查看完整案例


收藏

下载

翻译
Satish Jassal Architects has completed a new-build single-storey house on a backland site in Haringey, north London. Located behind a butcher’s shop on busy Turnpike Lane, and accessed via a 1m-wide covered passageway between retail premises, constructing the house was “like building through a straw,” says Satish. Despite the challenging site, the result is a home that brings light, volume, and materials to the fore.
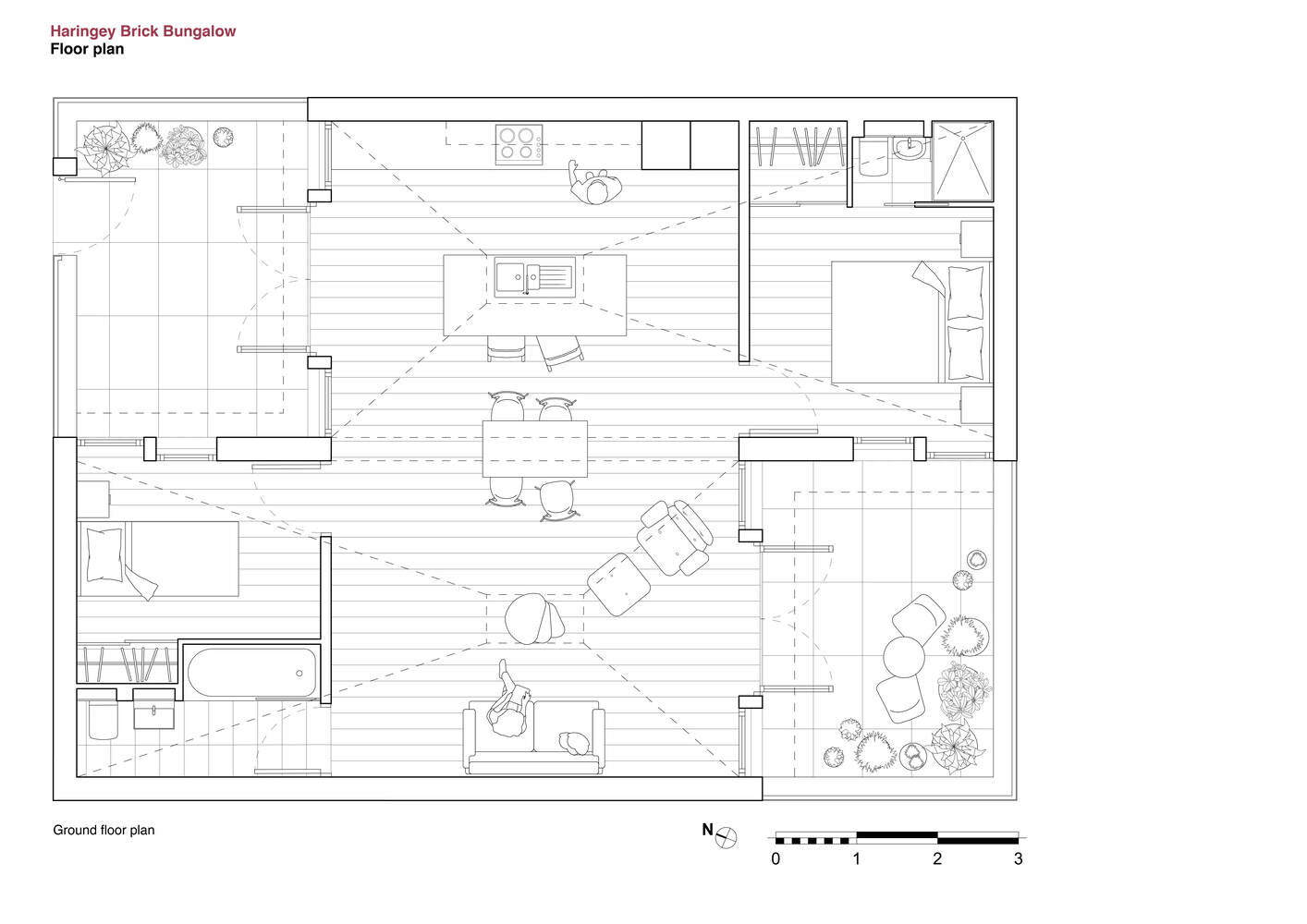
The shop owners had the site in the family for 30 years and wanted to unlock the potential of a 110sqm overgrown piece of land to the rear. The brief was very open – “see what you can do” – and Satish Jassal Architects took the project from planning to completion including design and project management. A pair of offset volumes create a courtyard entrance, and a further courtyard to the rear, with a central living/dining/kitchen space and two diagonally opposite bedrooms.
Each volume is topped with an asymmetrical pyramid-shaped sedum roof, punctuated by a roof light; the intention was to give neighbors a more pleasing view to look down on, rather than the existing jumble of ad-hoc retail and restaurant extensions. The central roof lights create a focus for the coffered asymmetrical pyramid roofs.
The exterior plays with a number of materials, with brickwork walls, oak-framed glazing that sits on white stone sills, and black steel used for the entrance gate and the brise-soleils over the doors and windows. The practice is known for its use of brick to create highly crafted and thoughtfully detailed buildings, and this is no exception: the handmade bricks have a rough, imperfect texture, brought to the fore by recessed pointing, creating a more lived-in feel that helps the building bed into to its environment. Vertical stack-bonded brickwork meets horizontal stack-bonded brickwork at parapet level, with neatly turned corners: the house’s dimensions were carefully worked out based on a single brick module.
A similar materials palette continues inside, with the brickwork left exposed in places and oak flooring used throughout. The two asymmetrical pyramid-shaped coffered roofs, which are made from glulam beams and sit on a perimeter steel frame, culminate in timber ‘chandeliers’ suspended beneath the roof lights.
By day, the sun’s rays track around the room and highlight the sculptural quality of the ceiling; by night, concealed LED strips create a simple but eye-catching lighting feature, emphasizing the 3.5m highest point and giving the illusion of greater space than the 66 sqm footprint would suggest. The house’s sustainability credentials are met through the use of an air-source heat pump and a biodiverse green roof.
The building’s construction is easy to read thanks to its expressed structure and exposed materiality. The narrow access via the alleyway governed many of the design, construction, and material considerations, from the steel screw piles that could be installed without a piling rig to the use of small modules (like the bricks) that could all be delivered via trolley.
Parking bays on the road also needed to be suspended for deliveries and to use the space for storage, and Satish estimates that around a quarter of the building cost was spent on the logistics of navigating the site. “This was a very tricky backland site, but the key message is that with careful planning, you can succeed,” he says. “Good design does not cost more. It’s about careful consideration of context and materiality.”
客服
消息
收藏
下载
最近





























