查看完整案例

收藏

下载

翻译
Opened in 1871, the Locomotive Workshops were dedicated to the servicing and manufacturing of locomotives and rolling stock to aid the expansion of the Australian railway network. Over the subsequent decades, the complex grew in scale, encompassing the Carriage Works, Spring Shop, Foundry, Paint Shop, and Large Erecting Shed. At its peak in 1952, the site was fully occupied with over 10,000 people. After over 100 years of continuous operation, The
Locomotive Workshops closed in 1988. Since its closure, the site has operated as the Australian Technology Park, an attempt to create a center of innovation and technology research. The unfortunate outcome, however, was the creation of a soulless and isolated business park, which turned its back upon the local community.
Mirvac's revitalization of this entire precinct was an opportunity to reverse this trend. From the outset, our design approach was to remove these barriers, open the doors, and reintegrate the ATP precinct into the surrounding neighborhood. The overall design intent of the development of the Locomotive Workshops is to remove all existing unsympathetic elements and provide a clear interpretation and expression of the industrial style and significant heritage fabric, including the existing moveable heritage collection.
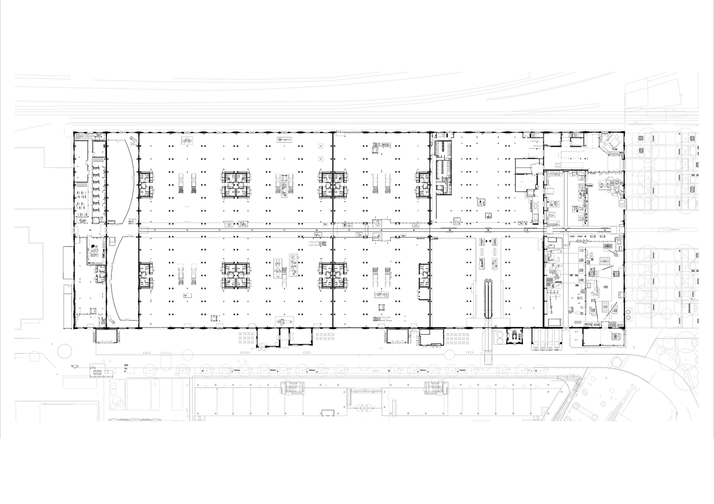
The redevelopment includes the Blacksmith and heritage interpretation spaces in Bays 1 and 2. The continuation of the Blacksmith Workshop preserves the tradition of a 130-year-long blacksmithing trade in this same location. The adjacent Heritage Interpretation restaurant will be part of the heritage experience, allowing more people to understand the site's people, history and origins. Retail spaces, including an event space, coffee roastery, and a food market, are in Bays 3-4a. New Grade-A workspaces are provided in Bays 4-15. The final bay also provides end-of-trip facilities and heritage storage and display spaces. New internal development has been restricted to a maximum of one mezzanine level, open to the heritage roof structure, to retain the views and vistas to and from key locations.
This approach reinstates a strong connectedness between the original fabric of the building and commercial and retail new fit-outs. This includes views of the volume of the building and its significant elements, such as cast iron columns, roof trusses, steel girders, and overhead cranes. Heritage interpretation elements, including all the original machinery, are incorporated throughout the project.
The design philosophy is structurally based on lightweight interventions within the building envelope. All new elements are steel framed, allowing for reversibility and differentiation with heritage fabric. A light touch is employed throughout and is especially evident wherever the new and the old interface. All original structure is to remain unchanged, with its patina revealing the passage of time. The new structure will be almost exclusively black to differentiate between old and newly built fabric. The redevelopment aims to preserve, accentuate, and emphasize the exceptional cultural and aesthetic heritage values of the building, its collections, stories, and spaces within an operational framework that will secure the site's long-term economic viability and activation.
客服
消息
收藏
下载
最近



















