查看完整案例

收藏

下载
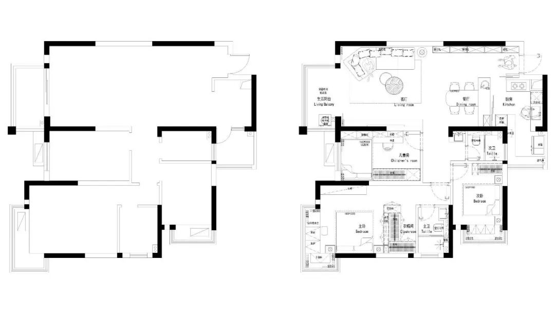
在与设计师初次交流的时候,业主便清晰地表达了自己想要的家的模样:优雅的、浪漫的、生活的、艺术的...
When communicating with the designer for the first time, the owner clearly expressed the appearance of their desired home: Elegant, romantic, life oriented, artistic.
用简单的设计手法碰撞法式元素,构成了统一而富有张力的视觉表现。
By using simple design techniques to collide with French elements, a unified and tense visual expression is formed.
整体色调让人联想到果泥和奶油的质感,空气中酝酿着清新、柔美、自然的气息。
The overall color scheme evokes a texture reminiscent of puree and cream, with a fresh, soft, and natural atmosphere brewing in the air.
牛油果绿本身就是一种让人平静和治愈的颜色,被环绕着是回归自然的感觉。
Avocado green itself is a calming and healing color, surrounded by a feeling of returning to nature.
低饱和度的牛油果绿,赋予独特的视觉魅力,让人忍不住推开探究一番。内部空间选择了素洁简约的底色,因为厨房中有着人间最温暖的烟火气。
The low saturation avocado green gives it a unique visual charm, making it irresistible to explore. The interior space has chosen a simple and simple background color, as there is the warmest fireworks in the kitchen.
浪漫的拱门,将主体场域的柔美气韵,转述至更加私密的客卫空间。
The romantic arch conveys the gentle charm of the main field to a more private guest space.
主卧延续客厅氛围,浪漫的牛油果绿,设计感十足,整体都是温暖治愈的模样。功能上,结合衣帽间、梳妆台设计(利用飘窗),居住舒适度也十足。
The master bedroom continues the living room atmosphere, with a romantic vanilla green design that exudes a warm and healing look. In terms of functionality, combined with the design of the cloakroom and dressing table (using bay windows), the living comfort is also full.
连每道门,都美得像艺术品~打开它,开启美好的新生活。
Even every door is as beautiful as a work of art~Open it and open a beautiful new life.
次卧规划为未来的儿童房,简约大方的布局,温柔细腻的配色。
The secondary bedroom is planned for the future children’s room, with a simple and elegant layout and gentle and delicate color scheme.
卧室特有的色彩,在功能之下点缀雕琢过的自我,以曼妙姿态无声落幕,与舒适、慵懒一起悄悄藏匿。
The unique colors of the bedroom adorn the sculpted self beneath its functions, silently ending in a graceful posture and quietly hiding with comfort and laziness
项目地址|江宇都会明珠
工程造价|11.6w
设计单位|大盛设计
服务模式|设计·施工·全案
公司简介
|
Companyprofile
『大盛设计事务所』
一个优秀的年轻的设计+装修+全案团队,团队形式服务模式,以丰富的经验及专业性,为您量身定制独一无二的作品!
秉承创新精神,坚持良心、匠心、用心,我们融合设计商业和文化艺术之间的关系,赋予每个设计以鲜明的个性和旺盛的生命力,专注于休闲娱乐、精品零售、高端餐饮、商业办公、住宅别墅等空间设计!
『大盛施工』
大盛施工团队秉承全心全意为客户服务的理念,减少客户的顾虑与担忧!施工团队采用标准化施工体系和领先的行业工艺,设计与施工无缝对接,落地还原度高,工地配备专属施工管理,全程跟进,每日工作汇报,每周工作计划,保证质量,责任可控,出品放心!
我们的荣誉
|
Hono
2023 年 好好住年度装修设计机构
2022 年 好好住年度设计师
2022 年
如需了解更多细节,纯设计丨施工丨家装设计丨工装设计丨全案设计
▴地址:南宁市青秀区中泰路 9 号天健国际公馆
客服
消息
收藏
下载
最近























