查看完整案例

收藏

下载

翻译
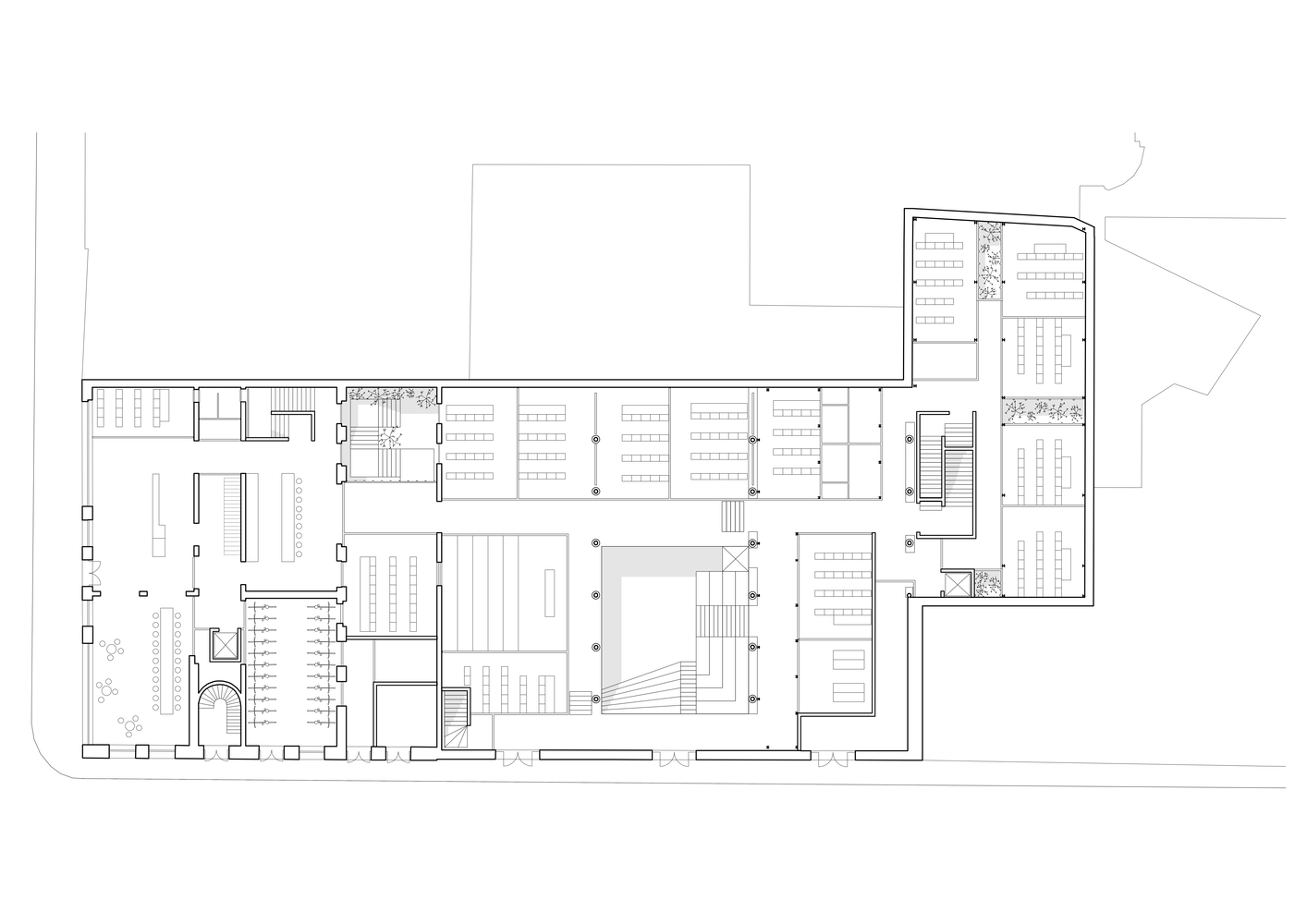
The project involves transforming a 19th-century heritage building - historically a manor house and its rum cellar - to accommodate a higher education program.
. Located on the banks of the Garonne River, the complex of three adjoining buildings forms the corner of an urban block in the
Bastide district. The architecture studio’s proposal is in line with the urban transformation of this district. Once a land of vineyards, then successively a land of trains and factories, Bordeaux Bastide still writes its relationship with the historic city center, using the river and the landscape of its banks. The project resonates with the energy of this emancipation-loving district.
. This transformation begins with the desire to enhance the existing building with care and to lead it towards a necessary evolution to respond to the program and guarantee its durability. This strategy is used to make the most of available spaces and clear heights, free up volumes, make use of built morphology, and sublimate remarkable original elements.
. The commission calls for a major restructuring of each of three entities: the heritage building on the quayside, the cellars and their noble facade, and a rear courtyard enclosed by large party walls. Spaces in the heritage building are organized within the built mass. On four levels, the project draws on the domestic-scale architecture of the site, with its succession of interconnecting rooms, decorative molding, and antique fireplaces. Restoration of the metal framework enhances the aesthetics and finesse of the structure and reactivates the under-roof level. In the same spirit of optimization, the courtyard, which had been left undeveloped, was extended to include additional classrooms.
. The project will use the morphology of the cellars to suggest other spatialities. Their size and dimensions make it possible to develop collective spaces. A three-level atrium creates a core, a place of free appropriation that transforms the way people experience the school. The structural woodwork is exposed to reveal the roof bays. The interior facades reveal a new design. Inspired by the aesthetics of the old rum-brick shelves, they create a rhythmic pattern. Adopting a new interior geometry, the cellar atrium becomes the connecting element between all the spaces in the establishment.
. The Queyries project also responds to sustainable ambitions. 200m2 of photovoltaic panels provide autonomous production and consumption for users. The lack of vegetation is improved by the introduction of two planted roofs and two vegetated gaps. The vegetation support is 100% natural. Made from oyster shells, it is rich in minerals, ensuring plant growth. Lightweight and renewable, it helps reduce waste. More than 20 different species have been planted, providing biodiversity for pollination while improving the building's thermal and acoustic comfort.
客服
消息
收藏
下载
最近





















