查看完整案例


收藏

下载
案例简介
Case description
家庭人口增多,房屋的空间也越发不足,早出晚归的屋主夫妇,两个需要照看的宝贝,如何调节这样常见的生活问题?
这套房屋的屋主选择在居住同小区购置了第二套房屋,工作日的时候,方便父母来照看一二,解决工作与带娃的选择。
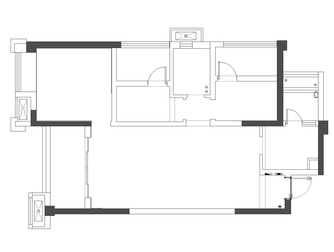
改造前:
❶ 原始户型动静合理,充足的通风采光面积。
❷ 房屋赠送空间很多,也导致了隔墙很多,但对于6个人的生活,空间大小还是过于局促。
❸ 整屋只有一个卫生间,对于6个人的生活,压力比较大,于是如何合理规划卫生间的功能结构,成为重点之一。
❹ 厨房和生活阳台的面积都比较局促。
改造后:
❶ 客餐厅设计了整面墙的多功能柜体(实木定制柜体),保障一家人的收纳需求与多重功能。
❷ 厨房与生活阳台连通,增加厨房的开阔性。
❸ 阳台设计了地台,嵌入了榻榻米形成休闲+亲子互动+儿童玩乐的区域。
❹ 重新规划卫生间空间,规划成四分离空间。双马桶设计,需要延长下水管道,为了减缓下水的隐患,选用了壁挂式马桶。双洗漱台,也很是个一家人的起居室使用,缓解厕所压力。
玄关柜体设计了一体的穿鞋凳,收纳+换鞋极为便利。
两扇白板柜门可以提供给家里的小宝贝随意绘画,陪伴宝贝们的成长需要。推开白板门,电视机隐藏其中,为客厅提供娱乐功能。
屋主一家有在家写字、画画、办公等习惯,设计师为了让屋主一家拥有随处都可以书法、办公的环境,引入了“全屋即书房”的理念,屋主一家不仅可以在餐桌上进行操作,定制的柜体里也隐藏着办公桌板,需要时打开柜体,抽拉出来即可成为办公桌板。
安定而宁静,素净的茶室和敞亮的空间,停歇在一方天地,体会生命的诗意律动。设计师抬高阳台,做了榻榻米茶室,仿佛进入了日剧传统庭院。
樟子门开合间,或连接或隔断与客厅的联系,极具古典雅韵,原木地台铺上榻榻米,与空间的氛围相呼应。同时,屋外的阳光透过樟子门延伸至客厅,给室内空间获取更多的自然光线。
榻榻米空间的定位是一家人休闲+亲子互动+儿童玩乐的区域,软垫的加持,使家里两个宝贝的玩乐足够安全。角落处的柜体设计成地柜+吊柜的形式,中间安装了休闲的沙发位,让茶室的功能更丰富,为屋主提供看书的一隅。
房屋餐厅与客厅连通,整个公共区域宽阔敞亮,一整墙实木定制柜体,规划了多重功能,为屋主一家提供丰富的储物系统与使用功能。
原始房屋是单卫生间的布局,对于日常6口人的活动空间,使用空间远远不够。于是设计师设计了卫生间与儿童房之间的布局和开门方向,规划成四分离空间。双悬挂式马桶+双洗漱台,适合一家人的起居室使用,缓解厕所压力。
男女主人对于睡眠的舒适感有着自己的喜好选择,他们根据自身的舒适度选择舒适的床垫,让双方都会得安心舒展的睡眠感受。
木饰面床头上设计了一扇隐藏的桌板,使得它可以不受阻碍地将卧室变成一个多功能的工作空间。 放下桌板后,卧室里就拥有了一张可以供工作或学习的桌子,可以把书本、文件和电脑都放上去。 这种新的布局可以让屋主有更多的空间来做自己想做的事,而且比起单纯的卧室,这种设计更加有利于创造性思维的发挥。
宝贝们的成长,总是让人感受到时光的流逝。为了达到宝贝舒适的睡眠、学习尺度,并且长期使用舒适的空间,儿童床+衣柜+书桌设计为一体,节省出更多的卧室空间。
客服
消息
收藏
下载
最近
























