查看完整案例


收藏

下载
AR公寓是一套坐落于里斯本Campo de Ourique社区某20世纪60年代建筑中的小型复式公寓。
Apartment AR is a small duplex in a 1960s building in Lisbon’s Campo de Ourique neighborhood.
▼项目概览,overall of the apartment © Francisco Nogueira
公寓的主人在乡村拥有一座宽敞的大房子,因此,他们希望这座位于城市的公寓能够以极简的形式,满足他们的基本生活要求,同时也能够让夫妇两人以及他们的爱猫Alice来城里时住得足够舒适。
The clients divide their time between the countryside – in a large, spacious house – and the city, where they wanted to have a flat that contained the bare minimum but could provide ample comfort for the couple and their cat Alice when they came to stay in town.
▼金属管制成的屏风将室内分为两部分,
the screen made of metal tubes divides the interior into two parts © Francisco Nogueira
▼金属屏风细部,details of the metal tube screen © Francisco Nogueira
▼楼梯,staircase © Francisco Nogueira
▼衣架与楼梯踏步细部,details of the clothes hanger and the steps © Francisco Nogueira
▼餐厅,dining area © Francisco Nogueira
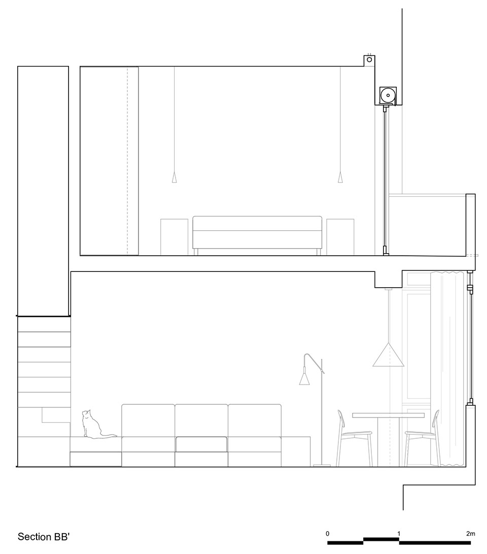
公寓共有两个楼层,底层空间包含了厨房与客厅,且没有设置任何隔墙,整体空间由位于中央的横梁支撑。现有的大型楼梯被一座轻盈、精致的金属结构所取代,进而充分利用了双层通高的楼梯井空间。
On the lower floor there is now a single space, with a central structure that mediates and supports the kitchen and living room areas. The existing large staircase has been replaced by a light, delicate, metal structure, which takes advantage of the double height ceiling.
▼厨房,kitchen © Francisco Nogueira
▼金属屏风后的备餐台,food counter behind a metal screen © Francisco Nogueira
▼细部,details © Francisco Nogueira
▼厨房设备,kitchen equipment © Francisco Nogueira
室内的门洞尺寸全部经过了调整,整体木结构也由建筑师进行了重新的设计,新添加的木材与不锈钢材质家具进一步补充了整体空间氛围,营造出舒适温暖的生活环境。
The interior door openings were resized, and the carpentry system has been completely redesigned, contemplating new items of furniture in wood and stainless steel, which complete the intervention.
▼走廊与门,hallway and door © Francisco Nogueira
▼浴室与卧室,bathroom and bedroom © Francisco Nogueira
▼楼梯间,staircase © Francisco Nogueira
▼平面图,plans © RAR.STUDIO
▼剖面图,sections © RAR.STUDIO
DATE: 2021 – 2022
GROSS INTERNAL AREA: 70 m2
LOCATION: Lisbon
CLIENT: Private
ARCHITECTURE AND FURNISHING: Rita Aguiar Rodrigues, Inês Chambel Borges (Project Leader), Ana Ponce Suero, Jaime Rubio Campuzano
CONTRACTOR: RASA – Engenharia & Construção
PHOTOGRAPHY: Francisco Nogueira
客服
消息
收藏
下载
最近






































