查看完整案例


收藏

下载

翻译
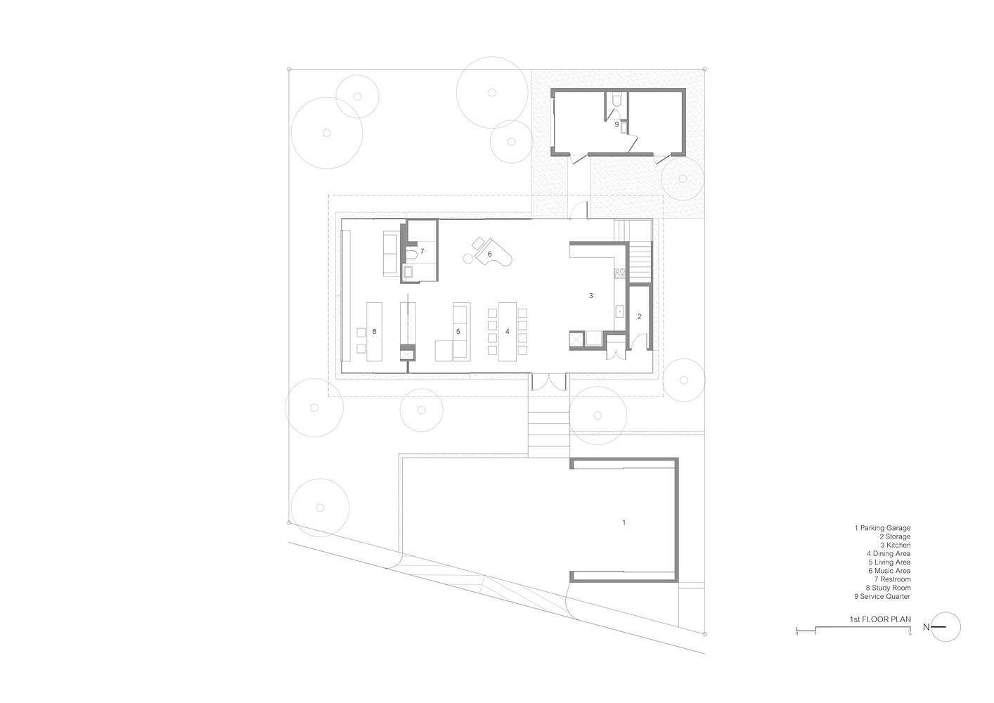
The residence is located in a quiet suburb, 30 km. from the heart of Bangkok, where individual private plots were laid out around a lush golf course at the center. The neighborhood is quite a perfect location that provides a hideaway environment to live after spending rough hours in a busy city. It’s quite a place in which we can allow life to flow, spend quality time, and ease up for a moment. The house is facing a lake across the internal road and pedestrians in the west. Building orientation corresponds with serene visual elements from the living space onto nature.
Orchestrated ribboned windows at the front opened to native plants and addressed a strong rectilinear volumetric accent to the structure. The very open and transparent building skin allows occupants and spaces to adjoin and include themselves with a generous surrounding environment. The consistent dialogue of low-key materials makes harmony among tranquil spaces, creating visual flow. Neutral colors in the spaces highlight environmental greens around the area. The outdoor landscape also helps create subtle natural shading, mellowing modernistic features on the architecture.
Open and flexible planning on the ground level accommodates living activities and functions, encouraging interaction among occupants. The spacious kitchen, dining table, living sofa, and study area are all spatially connected. Transparent windows running along the west elevation open to the peaceful lake, providing a decent amount of ventilation from the large openings. Interior curtains help create privacy and control natural light according to specific space and time. Customized oak wood furniture and sofas simply fit in the space.
Indirect light within the study area facilitates comfortability while working and visually helps lift the upper structure up from the ground. Refined clean spaces within the architecture help minimize distractions, create peacefulness and relaxation, and facilitate one’s contemplation. Extra high ceilings on the ground level make it appropriate for occupants to welcome guests or pursue leisure activities. Wood flooring defining living space gives comfort to the overall interior perimeter. Furnishings are simplistic and humble.
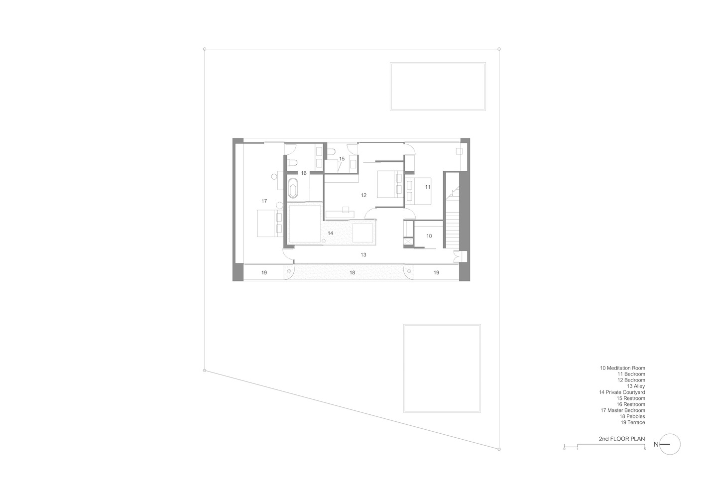
The staircase transitions and connects the ground floor to more private spaces on the upper level. The open courtyard in the middle, surrounded by three cozy bedrooms, brings a connection to the whole living space on the floor plate. It further offers semi-outdoor perception to the common space, as well as brings in natural light during the day and ventilation. The alley layered at the front, directed towards the master bedroom with semi-transparent glass, helps obstruct direct vision from the outside. A series of screens concurrently ensure seclusion and privacy of the internalized space from the driveway.
客服
消息
收藏
下载
最近

































