查看完整案例

收藏

下载

翻译
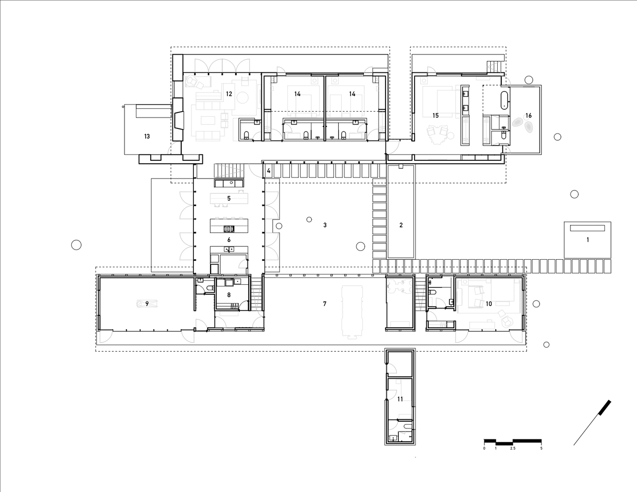
Casa R&R is located in a dense pine forest. It is the main house of a family, not a vacation home, so special attention was paid to the way the private spaces of the house relate to the 'day' areas and a clear separation from the public parts of the house: a yoga room for 20 people and a guest suite.
The layout of the house responds to these needs and also takes into account the topography of the land and the respect for the largest pine trees on the site. The result is a clear H-shaped scheme where the central link is the kitchen/dining area.
The elongated volume is located on the highest part of the land and contains the most public parts: garage, guest suite, yoga room, and laundry room. The 3-meter high retaining wall that defines this volume separates it from the rest of the house. From the garage, you enter a vestibule that leads to the yoga room, laundry area, and stairs that descend to the kitchen/dining area.
This is the nerve center of the house, it is an abstract glass box with a flat roof, it has a marked difference from the other volumes due to its modern language and its clear transparency and accessibility. From the kitchen, you go down half a level to the living room, which is divided into 2 areas: a family area with a television and a more formal area with a fireplace. The living room is part of the second largest volume of the house and is the lowest on the land.
It is articulated by a hallway that leads to the bedrooms, bordered by wood on one side and tall windows that overlook a private garden with east-facing lighting to emphasize morning light. At the end, there is the master bedroom separated from the children's room by a small patio. The bathroom has another patio with wooden walls to provide privacy while also having an outdoor area. At the other end of the elongated volume, the living room has a private terrace for the family, it is an outdoor space with a fireplace.
The kitchen/dining area is open to the north towards the private garden of the house flanked by a water mirror, and to the south by an uncovered terrace with a barbecue area and a large family table. Materials were kept to a minimum throughout the project: stone, wood, steel, glass, and black tile are the only materials used in the house.
客服
消息
收藏
下载
最近






















