查看完整案例


收藏

下载
Houses, Sustainability, Yokohama, Japan
设计师:U.L.A. design
面积: 173 m²
年份:2020
摄影:Katsumasa Tanaka
建造商: NICHIHA, YKK AP, Hirata TILE, KASCO, Lilycolor, Lixil Group, Sanwa Company, Takahiro Mokuzai
Project Designer:Yuji Sasaki
Chief Architect:Keichi Higashiyama
Contractors:Nakata Construction Company
City:Yokohama
Country:Japan
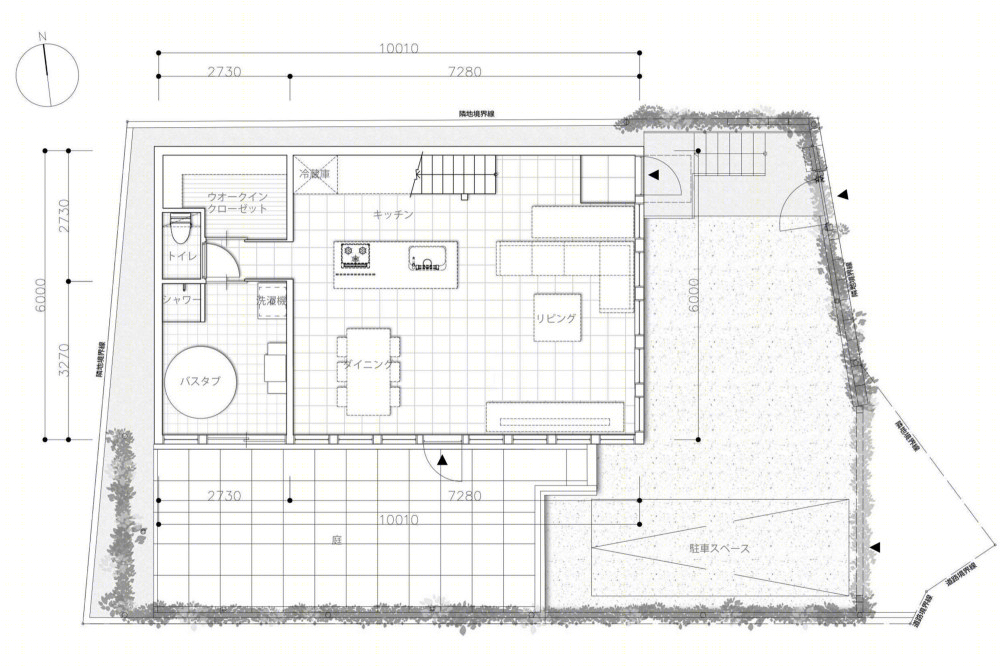
This home is built on sloping land in Yokohama City in which a couple and their three children live in. The house is surrounded by the huge backside wall that is more than 6 meters high. Therefore, we decided to give up the wall side. Instead of that, by integrating budget and constructive elements on the southeast side, we suggested a house having both privacy and nice view or lighting, and good balance and relationship between the inside and the outside of the house.
The shape of building is universal and strong cube type. There is no opening in the northwest direction except ventilating opening. Daylight and breeze are expected to come in through the windows on the southeast side of the home where the outdoor terrace and the parking space are located.
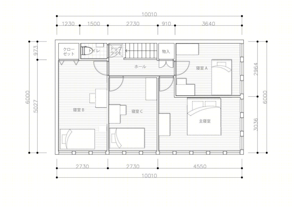
LDK and a bathroom as public space are located on the 1st floor, and bed rooms as private space are located on the 2nd floor. The “Garden” can be viewed from all rooms of the house. Not limited by the standard concept for the main entrance, we designed the main entrance integrated with the living room. Usually, the main entrance is a dead space except for going in and out. However, due to this design, the living room has a much wider open space than the actual floor space.
We plotted a wooden curtain wall steel-like structure. Due to problems related to disaster prevention area or fire spreading line, it was difficult to use multiple window sash for residential houses. Also, it was difficult to use multiple window sash for buildings due to limited budget. However, I aimed the rationality and the beauty of the structure because of conventional post and beam structure. As the result of putting structural columns and sash at regular intervals, we could make the house an advanced wooden building that is like a traditional western wall type structure having the image of Japanese structural pillar and beam.
The system allows urban houses that site areas are limited, to plant trees at the maximum with the minimum space. This is the “Garden Wall” system. The “Wall” is 6 meters high and more than 20 meters wide. It blocks off people’s view from the road and neighbors moderately and ensures privacy, but it doesn’t give a feeling of unsocial and intimidation to the surroundings. Netting on the wall has artificial flowers that helps visual effect until real plants grow, and it works as a substrate material to catch real ivy.
Real plants will grow from the ground within 5 – 10 year, and eventually cover the wall with a wide variety of ivies. The Flowers bloom in the spring and leaves turn red in the fall on the “Garden Wall”. The wall requires only a small space to be built. Therefore, we can utilize the site area to the maximum for outdoor terrace or parking space. We are happy if the house becomes the place where residents can enjoy raising their families as well as the changes of lumbers due to aging and plants growing.
We designed the “Rain Wall” that entertains residents in the house as a poetic water art as well as the Wall works as a cooling system against the midsummer sunlight coming from a large window. This Wall is what we call an architectural cooling system. It prevents from heat and generates cooling effect with water flowing over solar panels, roof, windows and outside walls. It is a simple and primitive idea, but we think it has a possibility to become popular in the entire society. For the future, we would like to aim at higher level of economic and environmental efficiencies with utilizing underground water or heat.
项目完工照片 | Finished Photos
设计师:U.L.A. design
分类:Houses
语言:英语
阅读原文
客服
消息
收藏
下载
最近



























