查看完整案例


收藏

下载
本项目旨在为伦敦东部的维多利亚式联排公寓后侧扩建一个单层结构。
The scheme provides a new rear single storey extension to a Victorian terraced flat in South London.
▼项目概览,Overall view © Rayan Bamhayan
房屋原本的状况很差,继续彻底的翻新和修整。房子的主人作为建筑方面的专业人士,全程参与了房屋的改造,并且为灯光、颜色和自然材质的选取提供了建议。
The flat was in poor condition and required a full refurbishment and reconfiguration throughout. The clients, young professionals, were involved throughout the whole process and imagined a concept of light colours and natural materials.
▼起居室,Living room © Rayan Bamhayan
新建的后侧结构采取了最纯粹的简约设计形式,旨在将花园引入室内。内部的细节设计与原有建筑的设计理念保持一致。整个扩建部分的墙壁和天花板均采用与浴室相同的水洗石膏和微水泥材质,这些材质覆盖了天花板、墙壁和地面,保持了空间内风格的统一。
A minimal design in its purest form, the new rear open space aims to draw the garden into the interior. The detail of the interior is in keeping with the architectural concept. Walls and ceilings throughout the extension are finished in washed-plaster and micro-cement used in the shower room to also cover the ceiling, walls and ground to unify the space.
▼扩建结构入口处,Entrance © Rayan Bamhayan
▼从扩建结构看向室外花园,View from the extension to the garden © Rayan Bamhayan
▼入口处的座椅,Seats at the entrance © Rayan Bamhayan
▼空间中的浅色饰面,Light finishes © Rayan Bamhayan
这栋公寓朝向北面,有一个中央露台,所以地板、墙壁和天花板处使用的浅色饰面能够使光线在整个空间内进行反射,以确保业主能够享受到更多的自然光线,这一点是至关重要的。另一个有关采光的例子是顶部设有一个大天窗,它强调了扩建结构倾斜的屋顶,光线能够从这里投射到室内。
The property is North facing and mid-terraced, therefore it was crucial to ensure we can indulge as much natural daylight possible by using light finishes to the floor, walls and ceiling allowing for the light to bounce and reflect throughout the spaces. Another example of this is the large skylight that accentuates the extension’s pitched roof and casts light into the plaster-washed interior.
▼扩建结构内部概览,Overview of the interior of the extension structure © Rayan Bamhayan
▼操作台,Kitchen worktop © Rayan Bamhayan
房屋原有的平面布局缺少储物空间,所以在本次扩建中,设计者有机会将一系列的储物空间整合到新的结构中,但这样做的难点是需要仔细安排有限的建筑面积,并且保证空间中的动线和美学保持连贯,以形成一种建筑语言。
The original layout lacked storage in every room. There was an opportunity to integrate a spectrum of storage into the new spaces, but the challenge was to carefully consider the limited floor area and create storage that coherently flows with the circulation and aesthetics of the space interpreting as one architectural language.
▼卧室,Bedroom © Rayan Bamhayan
▼浴室,Bathroom © Rayan Bamhayan
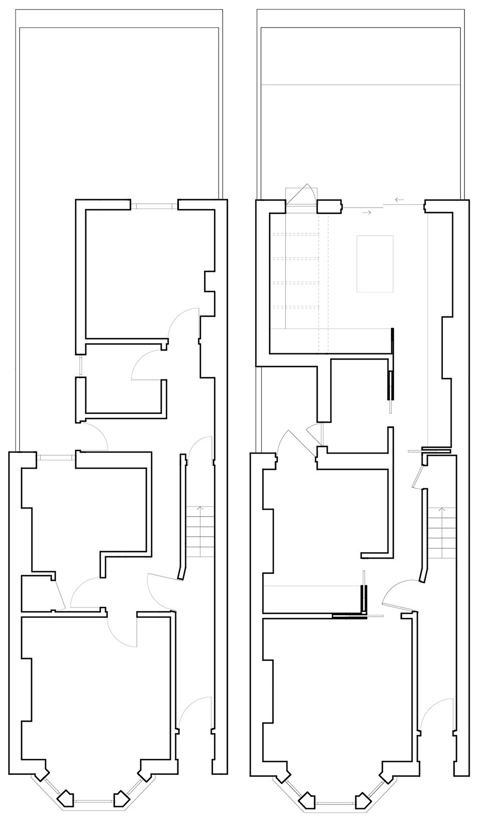
▼改造前后平面图对比,comparison of floor plans before and after renovation © Manuel Urbina Studio
Location: London, UK
Type: Residential
Area: 61sqm
Status: Completed 2023
Team: Manuel Urbina
Contractor: Pace Projects
Structural Engineer: Sheen Engineering Ltd
Client: Private
Photography: Rayan Bamhayan
客服
消息
收藏
下载
最近










































