查看完整案例


收藏

下载
独立住宅, 日本
建筑师:Toshihiro Aso Design Office
面积:100 m²
项目年份:2014
摄影师: Shuya Sato
厂家:Tajima
主创建筑师:Toshihiro Aso
设计团队:Toshihiro Aso Design Office, Shimura Architects
合作建筑师:Takuma Shimura, Shimura Architects
结构工程师:Hirohide Tao, Momi Architects
Country:日本
我的客户是一对夫妇:一位上班族和一位全职太太,有一个孩子和两条狗。“我们想要一个花园和一个可以带来归属感的本地社区。“这是我的客户在我接到设计订单时与我分享的愿望清单。迄今为止,该客户已经搬了十多次家,所以建造自己的房子是实现他们‘拥有本地社区’这一梦想的重要部分。”
项目地点位于郊区的住宅区域,距离当地交通线路上的一个车站只有15分钟的步行路程。该地点的位置对丈夫来说是完美的,因为他可以骑自行车到他的办公室,而对全家的日常生活来说也是十分理想的。从这个地方沿着一条路,可以通向一个独立的住宅区,这里的房屋和停车场星罗棋布。这个住宅区建于20世纪70年代开发的带有田地和果园的丘陵地带——这是当年土地农耕时代的产物。在清澈的蓝天下,微风吹拂过青葱而茂盛的草木,沁人心脾。这个建筑的面积并不大,然而,正是因为这50%的建筑覆盖率才保证了一个花园空间的存在。
除此之外,这片土地所拥有的广阔天空,只有丘陵地带的低层住宅区业主才能享用得到。所以,在开始项目时我就考虑从该地区自有的土地资源入手。能拥有自己的花园,是在郊区建房的最大吸引力。
然而,用高高的围墙和篱笆把一个家围起来,建造一个以自我为中心的花园,就好像它只是自家房子延伸出去的一部分一样,对于想把这个地方作为郊区永久住所的家庭来说,是行不通的。
“将自家住宅延伸到相邻土地”是该设计的概念核心,即这个住宅是家庭成员们每日与当地人随性会面和社交的地方。一条通往花园的人行道邀请人们进入花园,房屋屋檐随着花园延伸拓展,进入花园后的人们便可以在屋檐下停留。通过这种设计安排,住宅本身、花园和整个社区产生协同效应,使得这个家庭能与当地社区发展成一段成熟的关系,融入社区成为一份子。
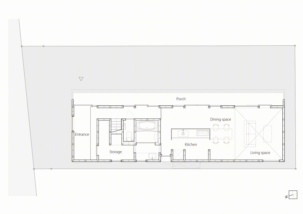
在一个大开口朝向花园的平房里,家庭的生活方式与花园紧密相连。建筑的围护结构向花园拓展,同时也向天空延伸。建筑底层楼板距离地面有460毫米高,并采用木地板覆盖。
这个底层有两个作用:一个是作为家庭日常生活的活动场所,另一个是作为门廊。他们家的孩子和狗在厨房边的主要活动场所玩耍,家里人和邻居们在屋檐下也能舒适地进出,时刻享受到阳光和新鲜的空气。与冰冷的铝推拉窗不同,这屋檐下的木推拉窗给整个空间带来温暖的感觉,欢迎街坊邻居来这边坐坐。
倾斜的天花板将住宅的二楼变成了一个带有屋顶露台的休闲阁楼。早晨的阳光从东面的石板窗户照射进来,开阔的天空如同屋顶露台的天花板。当你跟随阳光走来,天空便会你面前铺展开来。我将这个房子命名为“花园屋(Niwa-ya)”,是为了将它与日本传统的商用町屋(Machi-ya)和排屋(Naga-ya)联系起来,但更重要的目的是为了抹去现代家庭对自带花园的郊区住宅的一贯印象。
翻译:Yingzheng Lin
项目完工照片 | Finished Photos
设计师:Toshihiro Aso Design Office
分类:独立住宅
语言:简体中文
阅读原文
客服
消息
收藏
下载
最近



























