查看完整案例

收藏

下载

翻译
The project is located in the heart of the Frédéric Joliot-Curie high school, in the town of
(Seine et Marne). Built in 1965, it occupies a site of almost 5 hectares and consists of 6 buildings with a total built area of approximately 10,000 m². It is composed of 6 independent buildings.
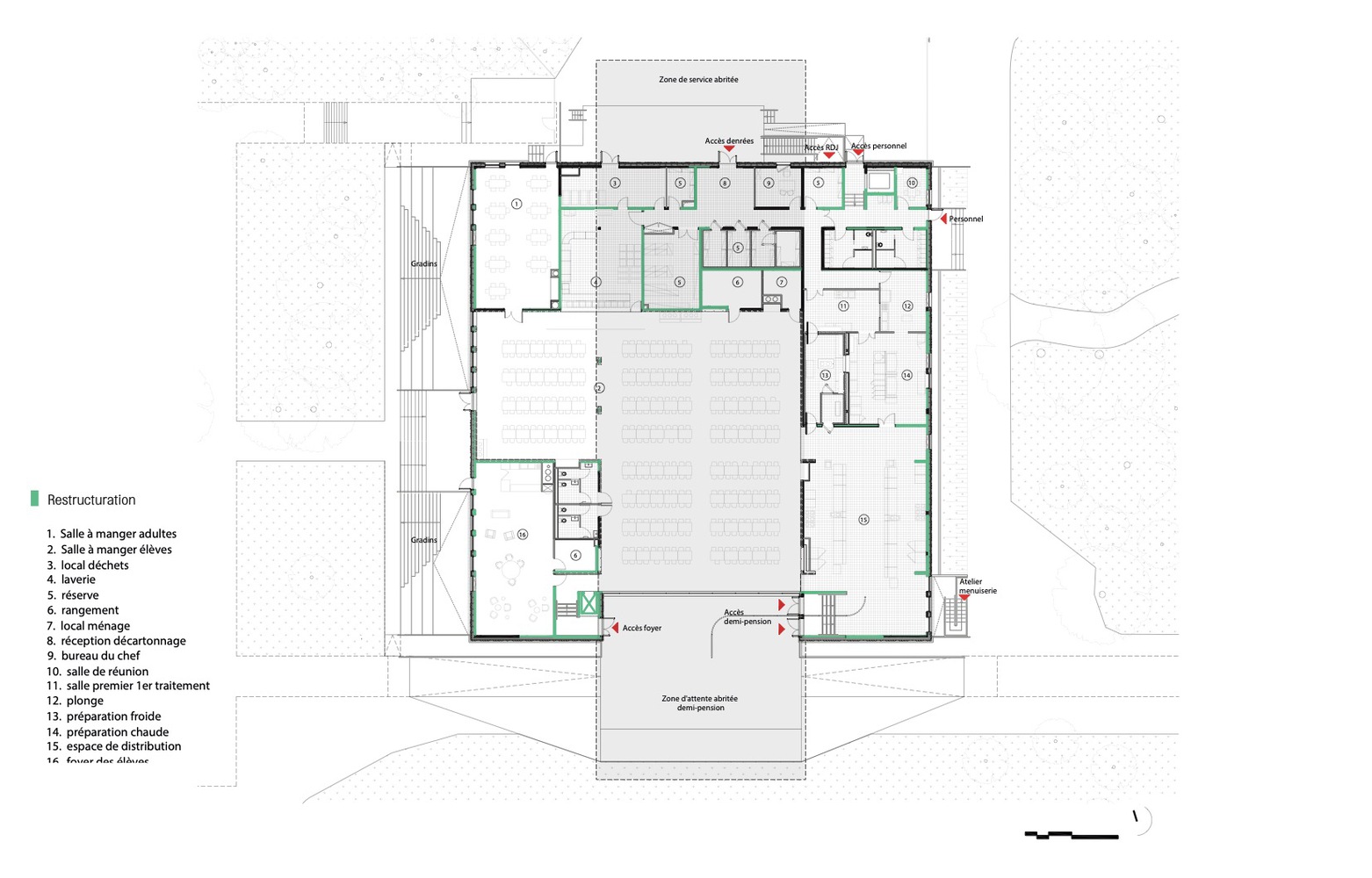
The operation aims to restructure the whole of Building C. It is located in the heart of the school in a very landscaped setting, between the staff car park (to the north), the forest (to the south), and two buildings dedicated to teaching (to the east and west). Covered galleries are articulated on the external pathways between the current refectory and the other surrounding buildings. On the south façade, the canopy that shelters the students while they wait to enter the half-board, and the design of the roofs are oriented towards the forest. The ground levels allow the technical rooms on the garden level to be lit by daylight. The food from the refectory is unloaded onto a platform located on the north façade, on the edge of the staff car park.
The building consists of a ground floor and a garden level. The ground floor is the level of the half-board. It contains the preparation, catering, and dishwashing areas, the cold rooms, the storerooms as well as the student foyer, and the delivery area.
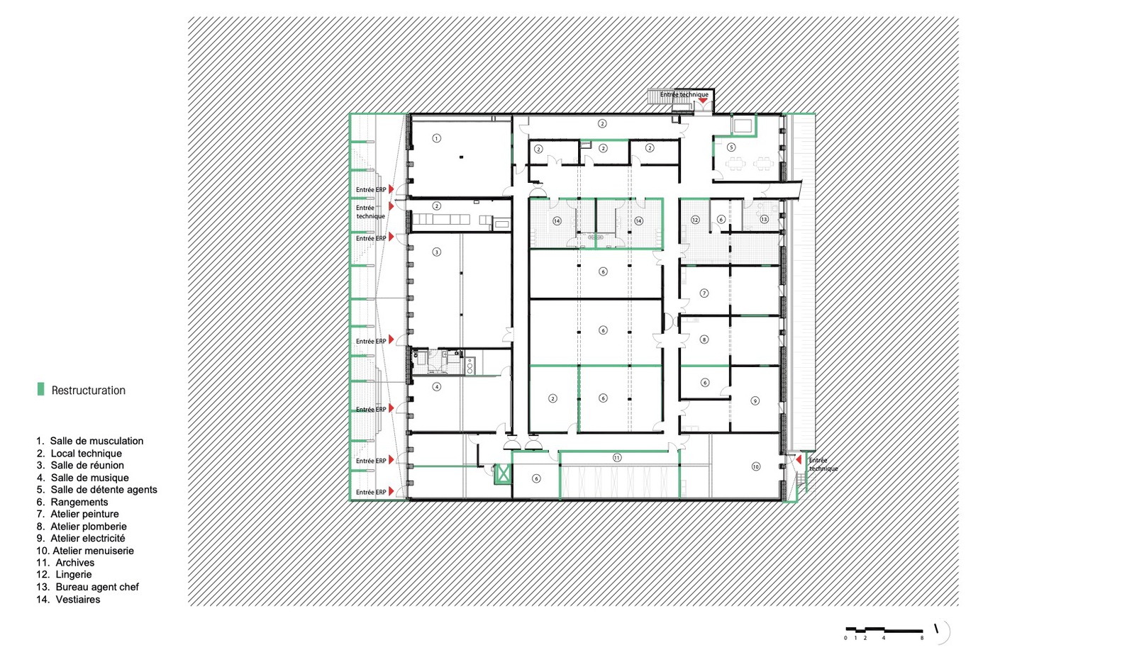
The garden level is composed of two zones. The first zone is accessible to the public directly from the outside and includes the rooms of the school life center (student club, gym, music room). The second zone is accessible to staff and includes the archives, the furniture store, the staff changing rooms, the head teacher's office, and the staff workshops.
The project seeks to reinforce the reading of a clearly privileged orientation by extending the high roof to the north and south. This roof provides a view of the forest from the large dining room. In addition to this north-south orientation, the lateral "wings" open up to the west and east, with the creation of a main entrance from the west to the lower level of the garden level.
Thus, the project is presented as a very simple volume, composed of two registers: a low metal register composed of corrugated panels in a metallic grey color, which detaches the project from the ground. It functions as a base and is organized according to the program proposing a set of openings that reveal the interior volumetry.
A clear and smooth upper register in perforated aluminum panels caps the lower volume like a hat. It envelops and brings light to the dining areas. This register provides an overhang that marks the entrance and serves as a canopy to shelter the student queues from the weather. All the technical elements of the roof are hidden and integrated into this volume.
客服
消息
收藏
下载
最近






























