查看完整案例

收藏

下载

翻译
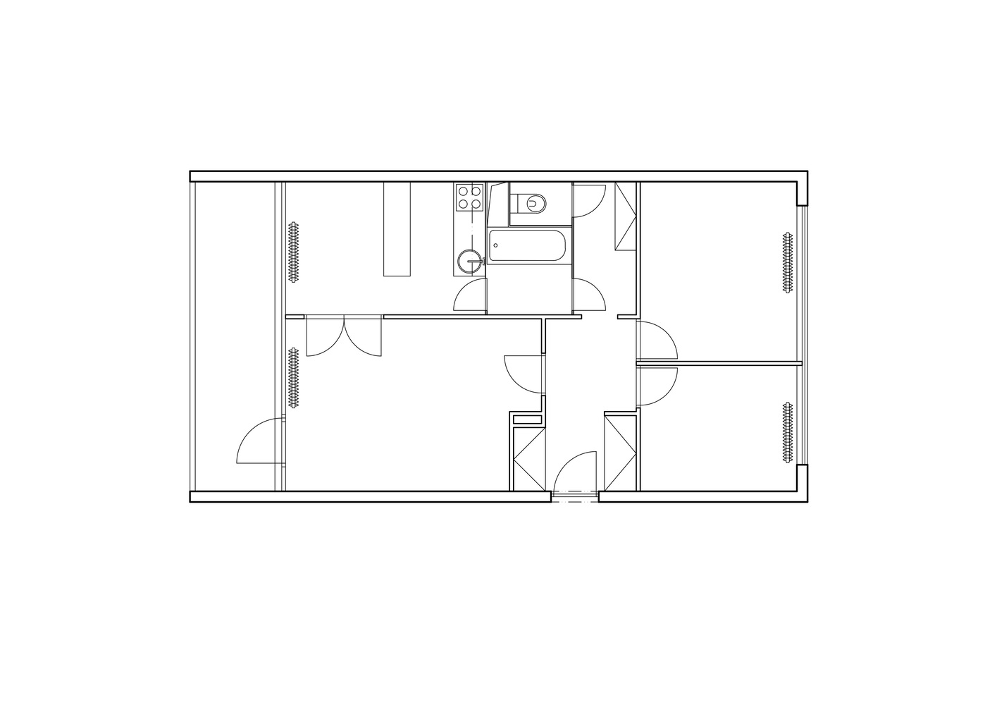
A small apartment in a Prague block of flats from the late 60s has not been renovated yet. The apartment is defined on the eastern side by a loggia across the full width of the layout, a western facade wall with strip windows and two longitudinal load-bearing reinforced concrete walls.
The architects proposed to remove all the original prefabricated partitions. Instead of several small rooms and corridors, this creates one continuous space, unified by the concrete floor, lit on both sides by a strip of windows. Into this space, the authors inserted three minimalist boxes with different uses. "The concept of the apartment as a single space with three distinctive objects provided plenty of free and illuminated space. In one box with a glass wall, the design included a shower with a sink, toilet, and automatic washing machine. There is also space on the outside for a microwave and fridge along with shelving for other kitchen storage capacities. A second box with a fiberglass window serves as a partition between the day area and the sleeping area. The box provides additional storage and a place to store clothes. The kitchen counter remains the dominant feature of the apartment, with a drainage column that goes right through the worktop."
All of these main elements are clad in recycled Packwall boards around their perimeter. The colored boards can also be used for the more operationally demanding parts of the furniture, such as the opening or sliding parts of the kitchen island or wardrobes. Jan Bárta adds: "The guests I have welcomed in my apartment are amazed by the material assembled from boards made from waste material. They perceive the workmanship as a pleasant contrast, enlivening the light grey-toned space."
Jan Bárta sums up his impressions of the apartment from a distance as follows: I got the three-room apartment from my parents. Its fifty years of occupation without major renovations inevitably required reconstruction. I was not in a hurry to do it, but besides the fact that the costs of reconstruction have been rising more and more recently, my son, who is an architect, liked the opportunity to participate in the reconstruction of the apartment. True, to a few of my friends, peers in particular, the proposal for the redevelopment seemed bold, but to me, it seemed that since it was being redeveloped, my home should become a really modern and pleasant place to live.
The design kept in mind my penchant for cooking. The design also provided enough space for my artistic activities. I have been living in the apartment since October, and although I am no longer a fan of the avant-garde, I really feel at home here. I consider the location of the apartment on the seventh, i.e. the highest, floor of the building to be a huge advantage. With windows glazed almost the entire wall adjacent to the loggia, they create a feeling of freedom and liberty. I make the most of the space behind the stove and, with regard to working with food, I also appreciate the very easy cleanability of the poured concrete floor. Guests, whom I have welcomed into my apartment, are amazed by the material made up of slabs made from waste material. They perceive the workmanship as a pleasant contrast, enlivening the light grey-toned space.
客服
消息
收藏
下载
最近























