查看完整案例


收藏

下载
项目地址|丰源美佳
Project Address|Fengyuan Meijia
项目风格|新中式
Project Style|new chinese style
项目类型|别墅
Project Type|villa
项目面积|600m²
Project Area|600m²
主创设计|赵振庭
Chief Designer|Zhao Zhenting
『流动』内外交织
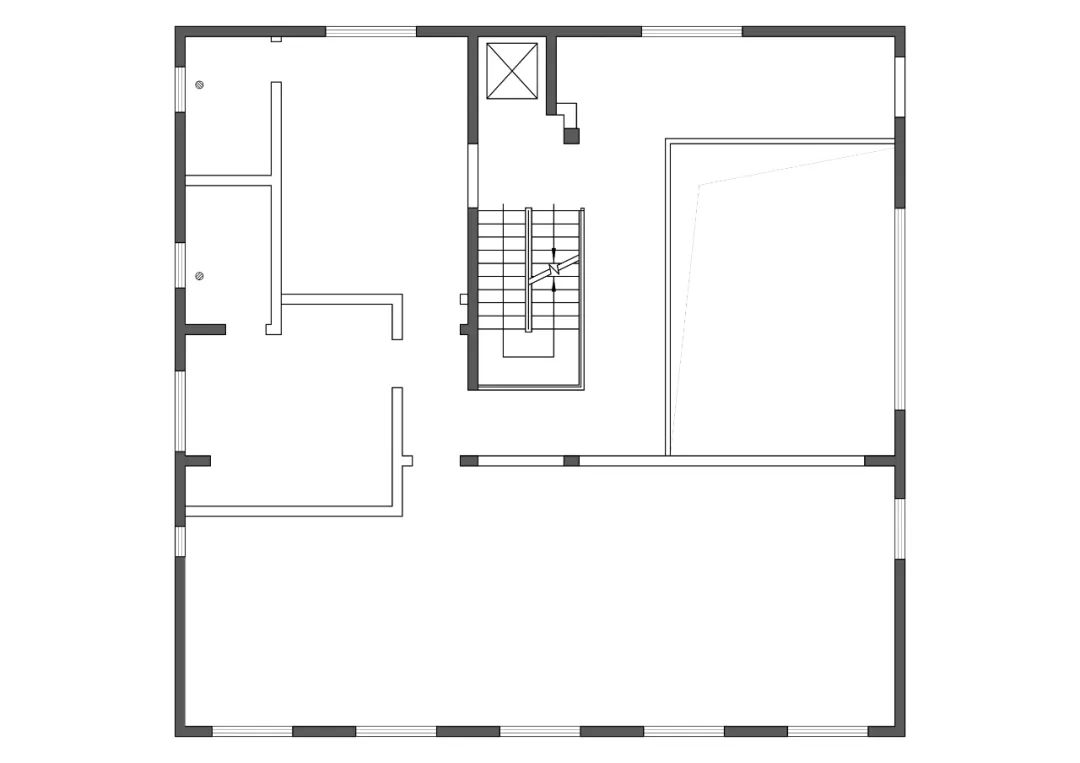
-1F 原始平面图
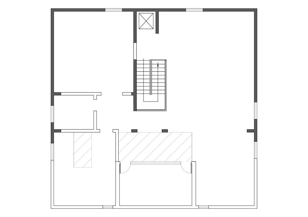
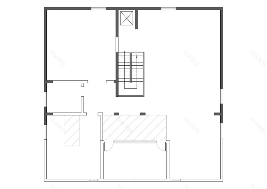
-1F 平面布置图
会客厅·|悠然意境|Drawing room
交叠于现代形制之下的东方元素,以一种独特的律动之感蕴出一片风雅之意,光影流转间,沉静的墨色渲染东方的从容与浪漫,风雅与时尚的互映中静品生活的美好。
大批木造家具布置在其中,巧妙的衬托出一种传统古韵气氛。
1F 原始平面图
1F 平面布置图
餐厅·|诗意烟火|restaurant
木调作序,勾勒画境之意,将餐厅营造为一个开放的静谧雅澹场域,令空间的休闲尺度更加开阔且丰富了空间的艺术情境。
屏风借以艺术气韵丰盈空间层次,渲染着空间中的典雅意境之美。
2F 原始平面图
2F 平面布置图
主卧·|淡然悠远|Master bedroom
简洁的线条和装饰,呈现出美和流畅的视觉效果,将东方元素融入到现代生活的舒惬基调中,营造出淡然悠远、端庄优雅的氛围,铺设高级简雅的生活基调。
次卧 ·|温润平和|Second bedroom
浅色木质搭配古典水墨元素,品质软装萃取东方符号注解现代生活,清透日光晕染独特的东方之美,让这一方静谧空间吐露独具优雅的中式情调。
3F 原始平面图
3F 平面布置图
休闲区·|生活情调|Relaxation area
高级灰的空间凸显沉稳平和的气质,展演中式传统美学和现代生活的碰撞,在繁华喧嚣的都市中探寻一份宁静。
赵振庭
西安建筑科技大学
国家注册设计师
从事室内设计工作 20 年
中国建筑装饰协会设计委员会会员
西安青年设计师俱乐部会员
亚太酒店设计师联盟会员
「游学经历」
参加 2015 年度意大利米兰游学
参加 2017 年度意大利米兰理工大学游学
参加 2018 年度臺湾游学
参加 2019 年度阿拉伯联合酋长国迪拜游学
「所获荣誉」
2016 年:第三届京瓷杯新中式设计大赛最佳功能布局奖
2017 年:第四届“锋尚杯”新中式设计大赛全案实景奬
2018 年:2018 亚太设计师大赛豪宅空间(方案类)钻石奖
2018 年:2018 亚太设计师大赛卓越人物
2018 年:2018 年年度 40 under40 中国设计接触青年
2019 年:2019 亚太设计师大赛方案类(别墅空间)金奖
2019 年:2019 亚太设计师典范人物
2019 年:上海国际设计周金梁中国设计省际榜
2019 年:上海国际设计周金梁中国设计奖省际榜
2020 年:大中华区年度 100 大杰出青年
「设计理念」
赋空间与灵魂,温暖每个家作为一位专业室内设计师,个人认为室内设计最根本的原理或原则是:在确保满足使用功能的前提下逹到审美功能的最大化,对空间潜心专研,注重细节设计
客服
消息
收藏
下载
最近





















