查看完整案例

收藏

下载
案例简介
Case description
本案采用的是黑胡桃木作为主题,营造沉稳轻奢的家居环境;全屋天花吊顶,利用无主灯设计,让家看起来更加宽敞明亮。
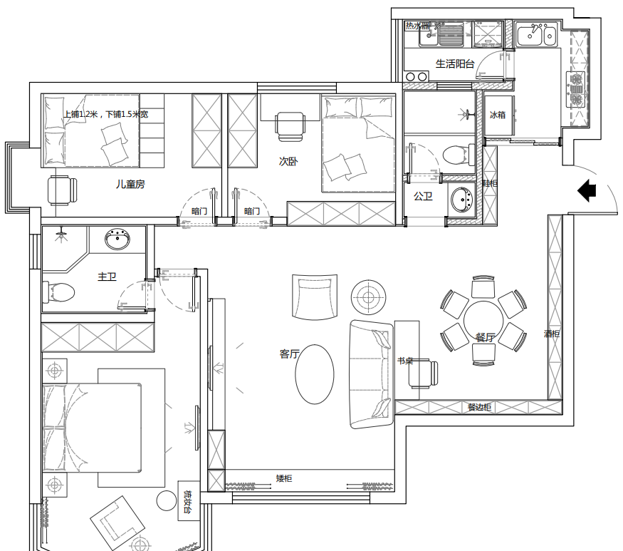
全屋收纳不够多,不能满足一家老小的收纳需求;入户没有玄关功能,鞋子堆积在外面杂乱无章,还影响邻居;空间宽敞,但是室内光线没有得到好的发挥。
拆除次卧的一面墙,在客厅定制入墙式收纳柜;隔出卫生间面积,正对入户门定制一面玄关柜;使用书桌作为客餐厅隔断,让空间功能变得格外丰富。
一进门面对的就是胡桃木色的玄关柜,中部与底部留空,更加方便进行收纳功能,就连出入都便捷了许多。
留空的地方嵌入灯带设计,打破柜体带来的压抑感,也点亮了回家的仪式感。
胡桃木搭配大理石地砖,为空间注入了无限生机,碰撞出独特的时尚气息。
多排磁吸轨道灯贯通整个客餐厅的天花板,一眼望去,整体风格大气上档次。
客厅做了一整面的落地窗设计,不仅提高了室内的采光亮度,还让室内外的景观相呼应,为家居生活增添了自然的美感。
由黑胡桃木包裹的真皮沙发,软而不塌,不仅体现主人的品位,还提升了客厅的颜值,端庄典雅尽显高贵气质。
三人座位,躺卧自由,能够得到充分的放松休息,表面是磨砂质感,让倚靠的人感觉到舒适柔软。
去繁就简的茶几,表面清晰的实木纹理透出沉稳的气质,简洁而不失格调;结合中间的小格子,可实现多元储物,装下生活的琐碎。
电视机使用蓝色大理石作为背景,大气而流畅的视觉画面,呈现从容和高级的氛围。
与格栅板搭配,互相成就,在两者连接处嵌入灯带,层次分明,氛围感十足,打造出了高贵精致的灵动空间。
展示柜在灯光的配合下,产生了各种不同的光影效果,轻奢范自然流露,给人一种精致高雅的生活氛围,也让视觉空间不显呆板。
电视背景墙左侧做玻璃门展示柜,专门用来展示手办和饰品或者书籍,提升整个客厅空间的格调。
客厅与卧室的一面墙打造了整面储物柜,只用简单的黑色拉手作为修饰。
客厅与卧室的一面墙打造了整面储物柜,只用简单的黑色拉手作为修饰。
柜体沿着墙面向两旁出发,采用的是同样材质的胡桃木,整体结合在一起,若有若无,不细看都发现不了它们的存在。
餐厅沿着转角空间定制L型餐边柜,灵活运用,充分满足了全家人对储物和扩容的需求。
被餐边柜包围起来的圆桌,更加适合一家人用餐,聚拢人气,烘托出其乐融融的家庭氛围。
餐边柜不再是局限单一的储物功能,它还包含了酒柜、展示柜、书柜等功能,满足各种储物需求,将空间实用性和利用率发挥到最大。
三种形式的柜门设计,在增加使用功能的同时,也为空间带去了丰富的层次感及趣味性,从而提升主人的品味。
在吊顶的衬托下,餐边柜像是嵌入墙壁内,与空间融为一体,整体和谐舒适。
靠近客厅的部分柜体,采用开放式设计,视觉上美观,还方便拿取书籍;通过书柜延伸出书桌台面,一体化设计让柜体整体性更强,还充当了客餐厅的软隔断。
开放格的灯光打开的一瞬间,温馨浪漫的氛围弥漫整个空间,带来优雅沉稳的艺术美感。
主卧相对于客餐厅的来说,颜色会稍淡,会让人感到放松舒心,更容易进入睡眠。
原户型本身就有一大片落地窗,不仅提供了大量自然光线,还显得空间更加宽阔明朗,圆弧的玻璃窗仿佛开了广角一样,能无限放大窗外的美景。
床头背景墙是由两种不同材质组合而成,在衔接处加入灯带,营造空间层次感和氛围感,凸显不一样的个性和格调。
衣柜运用浅咖色柜门,与床头背景墙相呼应,透露出一丝温柔的质感;衣柜内部分区明确,适应各种衣物的收纳。
衣柜根据空间布局延伸出一个床头柜,既保证了视觉上的统一,功能上又实现了多样化。
儿童房选择上下床的布局,让两个小孩能更好地增进彼此之间的感情,并在有限的空间焕发无限的乐趣。
实木材质贴合整体的设计,用简约的线条打造温馨的睡眠空间。
利用飘窗打造书桌,不占用空间,窗外的自然光还能提供舒适的学习氛围。
厨房结合生活阳台打造L型橱柜,增加台面使用面积,洗、切、炒的下厨动线也变得更加顺畅。
地柜下方配上条形灯带,通过灯光制造悬浮感,降低柜体自身的笨重感,彰显出家居品质。
公卫通过将洗手台外置,打造三分离卫生间,让干湿分离的目的得到最佳效果。
内部的淋浴区用玻璃门作为隔断,大幅度提升卫生间的使用效率。
主卫选择在角落打造圆弧形淋浴房,将马桶区和洗漱台置于两边,呈三角形布局,保证空间动线的流畅。
纯白色洗漱柜搭配局部的金边长虹玻璃柜门,减少柜体的沉闷感,多了一丝灵动之美,整体时尚优雅。
客服
消息
收藏
下载
最近


























































