查看完整案例

收藏

下载
温馨雅致
CO:interior新作,65
㎡两居室公寓设计工作,一对年轻的业主夫妇喜欢做饭,大部分时间都在厨房里度过。设计师将其与客厅结合起来,打造了一个舒适的用餐区来招待客人。在打造环保内饰时,选择了天然材料和柔和的色彩。
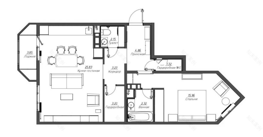
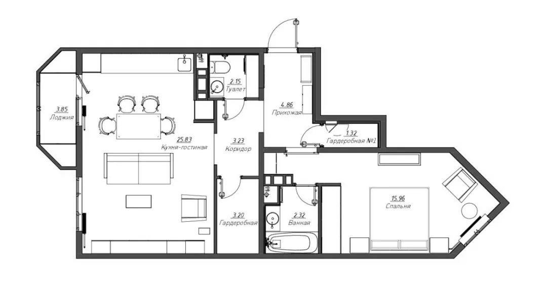
空间布局
▽
客厅和厨房结合在一起,
同时安装了两个更衣室,并把其中
一个用来存放季节性物品。
走廊的鞋架、卧室的大型内置衣柜、控制台和床头柜,以及客厅的封闭式橱柜系统,
它们成为公寓中的主要存储系统。
陶瓷质地和暖色调木板的柔和组合为室内增添了更多的光线和舒适感。设计师使用了多种色调的灰色、米色和白色,但在整体画面中添加了一点绿松石色。
用软织物装饰的纺织品和家具更有可能脱颖而出,营造出一种家的舒适和温暖的感觉。
商务联络
13535331549
投稿
shejiyouxue2016
‘星标’
第一时间接收精选内容
近期热文
▽
33㎡,女孩的梦中情房!
她的家35㎡,迷人!
年轻情侣的37㎡,爱上这种感觉!
她的家32㎡,舒适!
一个很不错的设计号
↓↓↓
客服
消息
收藏
下载
最近
























