查看完整案例

收藏

下载
空間不僅僅是圍壁的四面,空間無處不在。景德鎮,一個重視傳統手工業傳承的城市,千百年來數以萬計的藝術家慕名前來,這不僅激活了單一的景德鎮陶瓷文化,也使景德鎮漸漸地都復活和靈動起來。而當地政府用心的推行文化產業,將景德鎮、陶溪川推向國際化。
「陶溪川」地處景德鎮東部經濟中心鳳凰山下,1958 年,掛牌為「宇宙瓷廠」。如今以總建築面積 18 萬平方米逐步形成的以創意設計為特色的景德鎮陶瓷藝術商業圈。陶溪川保留了上世紀中國傳統的典型工業建築,以及老瓷廠原有的青灰色的窯磚墻、高大的煙囪等瓷元素,將 22 棟老廠房改造作為工程主體進行翻新改建。
元生咖啡陶溪川店,位於陶溪川園區的尾,同時也是園區的另外一個出入口。
由三層舊廠房改造而成,為了讓空間保持最自然和原始的狀態,設計以「場所的記憶」為出發點,對空間進行詮釋。
對墻體上的痕跡、裸露的梁柱以及建築的裝置等具有時間記憶的事件,都認真地思考保留和再利用的方法,讓建築保持原汁原味的狀態。
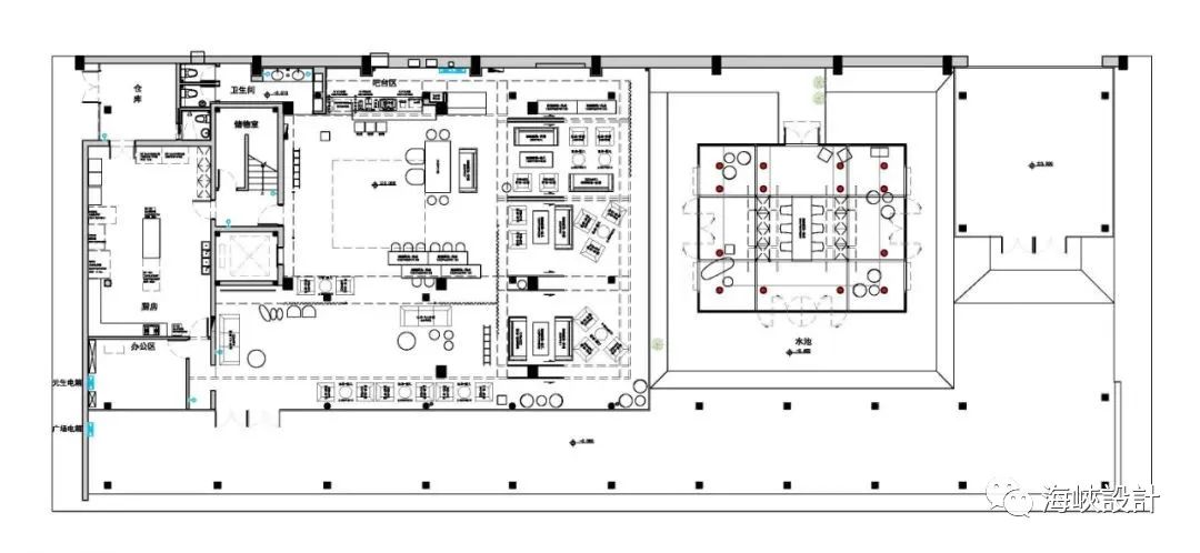
空間以功能為基礎,劃分出以一樓為開放性的餐飲休閑區域及圖書館區域,二樓為藝術展示空間,三樓為 VIP 會客區,每上一層樓,其隱秘性越強。
從建築室外觀察,狹長的連廊將建築圍閉起來,整體結構就像是在單層建築上另起了兩層空間。由一樓組成了元生的主要餐飲空間。
其中的家具飾品均來自細細設計,家具的擺放和挑選並非規矩的模塊化的組合方式,客人可以根據自己的喜好挑選位置和座椅。
布簾所形成的活動屏障,為空間帶來了多變性,有需要時將布簾關上寄可以獨立出幾個包間,讓空間富有可分可合的特質。
空間整體色調為深色系,通過黃色的燈光將空間進行激活。透過大面積的落地窗戶,從空間外部往裏窺探,是一個光芒四射的玻璃盒子,空間的一內一外,視覺的一暗一明,有著強烈的對比。而玻璃窗和黑鋼,暗紅色的窯磚和戶外座椅都在互相呼應。
一樓大廳的挑空區域保留著蘇聯時期遺留的「漏鬥」建築,因其形狀和體量的特殊性,被賦予了新的用途。形似漏鬥也似喇叭,對空間的聲音起到了一定的循環作用,不斷的吸收、釋放,使聲音變得立體豐富。
主墻上一副 7 米高的大畫,出自留法藝術家瞿倩梅老師的作品。厚重、粗獷的肌理效果,幾何的斷面分割,幹脆利落,時而隆起或又深陷的物質表面,猶如倒轉鋪面而來的大地。在原本平面的畫作上,創造出天,地與萬物的空間和時間感。
地處景德鎮,自然少不了陶瓷。細細在此攜手元生開發陶瓷系列,遵循天地「古」法的造物法則,從人的本真出發,希望透過陶器加以充滿能量的元生咖啡,為每位陶瓷的使用者註入滿滿能量。
二樓空間的改造也融入瓷的元素,一個半開放的隱秘美術館。從一樓的底部往上望,可以窺探到四周玻璃展架的瓷器,在玻璃和燈光的共同作用下,增大了視覺的沖擊性和穿透性。
除了瓷元素的保留以外,還從結構上、空間布局上入手。三樓是相對最為隱秘的空間,對於空間的規劃,設計者有更深、更長遠的思考。作為一個私密的 VIP 會客區,室內三面以玻璃環繞,四道以不同顏色深度的窗簾圍壁出的兩個空間,在光線的照射下呈現出不同的層次感。
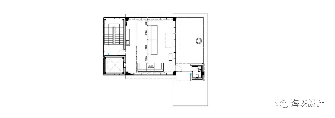
在咖啡廳的一側有一棟獨立老建築,那是元生咖啡書屋。書屋的斜屋頂與一樓的「漏鬥」形態形成倒轉的關系。書屋的四面以水環繞,整體形態就像是一棟漂浮在水面的透明玻璃屋。
這座老建築,來自婺源,木質榫卯結構,建築以玻璃為界,打破傳統對重建老建築的理解,不再以梁為天,柱為壁,建築不再承擔遮風避雨的作用,真正區隔室內外的是玻璃,建築在此就像是構成空間的一個部件。
室內濃醇的咖啡香氣,斑駁閃爍的光影,高聲鳴叫的金剛鸚鵡,禪禪的佛音,在經過「漏鬥」的吸收釋放後,原本靜謐的空間仿佛在跳躍,眼耳鼻舌身的五感觸發意的提升,不知不覺中能量在揚升。
五行是宇宙中的五种基本元素,以“五行”的概念来解读空间的关系,可以发现一些极其奇妙的东西。东方属木、南方属火、西方属金、北方属水、中央属土。元生咖啡位于陶溪川,原“宇宙瓷厂”的旧址,就如同它的名字一样,在景德镇的地位犹如宇宙一般重要。
以咖啡廳的空間為中心,地處景德鎮,一個土歸土的城市,正好符合中央屬土的屬性。咖啡廳以東是瞿倩梅老師的掛畫,雙目瞿、木每梅,看似巧合無意,卻關聯重重,這些關聯均來自設計者對空間巧思安排之後的結果。
空間的關系,能量口的尋找,符號的植入都是形成能量空間所要思考的問題。細細設計熱衷文物的收藏,收藏具有符號性的產物,通過文物的符號植入,建構空間的網點關系。
二樓空間隱秘的美術館,作為裝載符號訊息的容器,也是萃取訊息來源的符號的機製,以此產生幸福能量。
同樣具有符號性的產物:老建築書屋。四周以水環繞,空間氛圍的神秘感,讓人走進去,感受自己和時間的存在關系,恍惚間,仿佛自己回到了那個歷史。
建築在接近水面的四壁上開出的窗口,給室內帶來了源源不斷涼風,形成自然的生態循環。
在玻璃和水环境的共同作用下,界面被虚化和模糊化,空间也得到了延伸。阳光通过水面的折射,增加室内的光线,同时在室内形成斑驳闪烁的光影效果,使空间氛围变得活跃,并产生震动感。
同時環境的微小變化也能夠通過光影實時的反映出來。自然介質的作用使得空間成為一個具有能量的場域。
正如細細對空間的理解:關註空間的本質,探索人與自然相互依存的關系,繼而重新定義人對空間的需求是「能量」。能量屬於空間性,而空間不僅僅是圍壁的四面,空間無處不在。
分析圖
一樓平面圖
二樓平面圖
三樓平面圖
項目名稱:元生咖啡陶溪川店
項目地點:江西景德鎮
設計公司:細細設計
主創設計:洪蒼蔚
軟裝公司:細細設計
面積:1345㎡
項目主材:大理石,鋼材,玻璃,塗料,布簾
攝影:細細設計
DESIGNER
洪蒼蔚
細細設計創始人/設計總監
細細設計由臺灣建築師洪蒼蔚於 1999 年建立,是一所以建構自然能量空間為基礎進行的設計工作室。主張設計師一項通過從概念的想法,細節的呈現,以致於鏈接社會性、人文性的統籌性規劃工作。細細設計所做的是一項關於環境規劃、建築設計、室內設計、軟裝藝術的全面性環境整合工作。
END
丨海峽飾界丨
設計藝術跨界
海峽設計∣一個有逼格的公眾號
手機:17326621923
任何想法、咨詢、供稿都可與我聯系
長按,識別二維碼,加關註
免責聲明:
1、以上圖片及資料內容來源於網絡,由我方整理,版權歸原作者及其公司所有;
2、本資料僅供學習研究之用,不得用作於商業用途,若侵犯到您的權益,請與我們聯系刪除;
3、本文章版權歸本公眾號所有,未經同意不得隨意轉載 ,若惡意侵權將追究其法律責任。
客服
消息
收藏
下载
最近





















































