查看完整案例

收藏

下载
设计是一种感受,一种心态,
一种舒适的开心的生活方式。
这是一个四口之家260㎡的新居所,由一对生于上世纪七十年代的夫妇和两个儿女组成,他们的生活中充溢着对旅行的深沉热爱。
他们的足迹遍及世界各地的壮丽景致,深深沉醉于现代德国小木屋风格,痴迷于那原木的自然韵味。
这个家庭渴望拥有一个宽敞透亮的居住空间,同时也需要足够的储物空间,对于繁琐的硬装饰并不感兴趣,他们深情钟爱温暖的软装元素。
SINGO
260㎡德式
在做出最终的抉择之前,业主一家曾陷入徘徊,徘徊在星杰与另一家竞争对手之间。然而,设计师们历经数月的筹备,呈现出一个让业主心动的设计方案,于是最终选择了星杰。
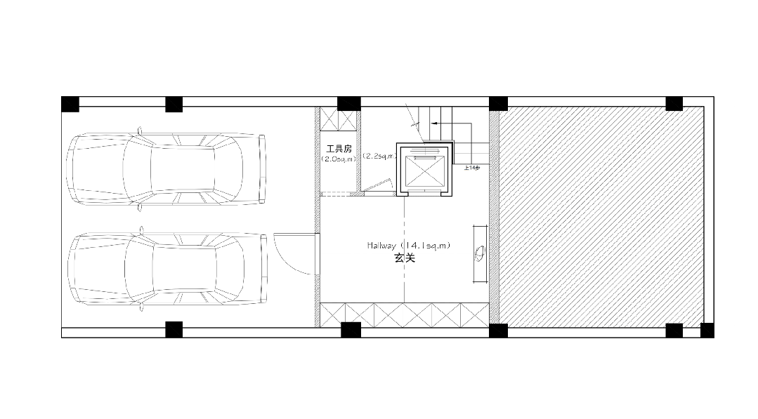
户型分析
一楼存在6米6的挑高空间,面积利用不充分;
地下一楼隔墙众多,建议拆除部分墙壁;
原B2层潜藏着一片空腔面积,建议充分利用。
整个住所用温馨而朴素的原木风为主题,温暖的黄色调搭配简约素净的硬装。
一踏进门,玄关地带呈现在眼前,整面墙是一个整体橱柜,简洁不失精致,水磨石地板自带复古质感。
踏梯而上是多功能休闲区,这里是一家人休闲娱乐的角落。
观影、品茗、聚会、阅读,平时接待客人、围炉夜话诗酒茶雅致生活,线下之余,约上三五球友,惬意观赛,好生快乐。
会客厅抛弃了过多的繁琐装饰,拥抱了简约与自然。原木材质在此处展现其独特魅力,为空间注入了自然的治愈氛围。
开放式的餐厨带来更多生活方式的可能性,烹饪的过程不再单调、枯燥,烟火的日常是每一个美好生活的日常。
卧室同样是素净简约的,功能性为主,低饱和度色彩静谧温馨自如。
潮流瞬息,但经典永存。
德式风格便是这个独特存在的典范,看似朴素却不失高贵品味,骨子里透露着令人陶醉的绅士风采。
往期推荐
2000㎡新中式
260㎡小资情调复古美式
客服
消息
收藏
下载
最近



















