查看完整案例

收藏

下载

翻译
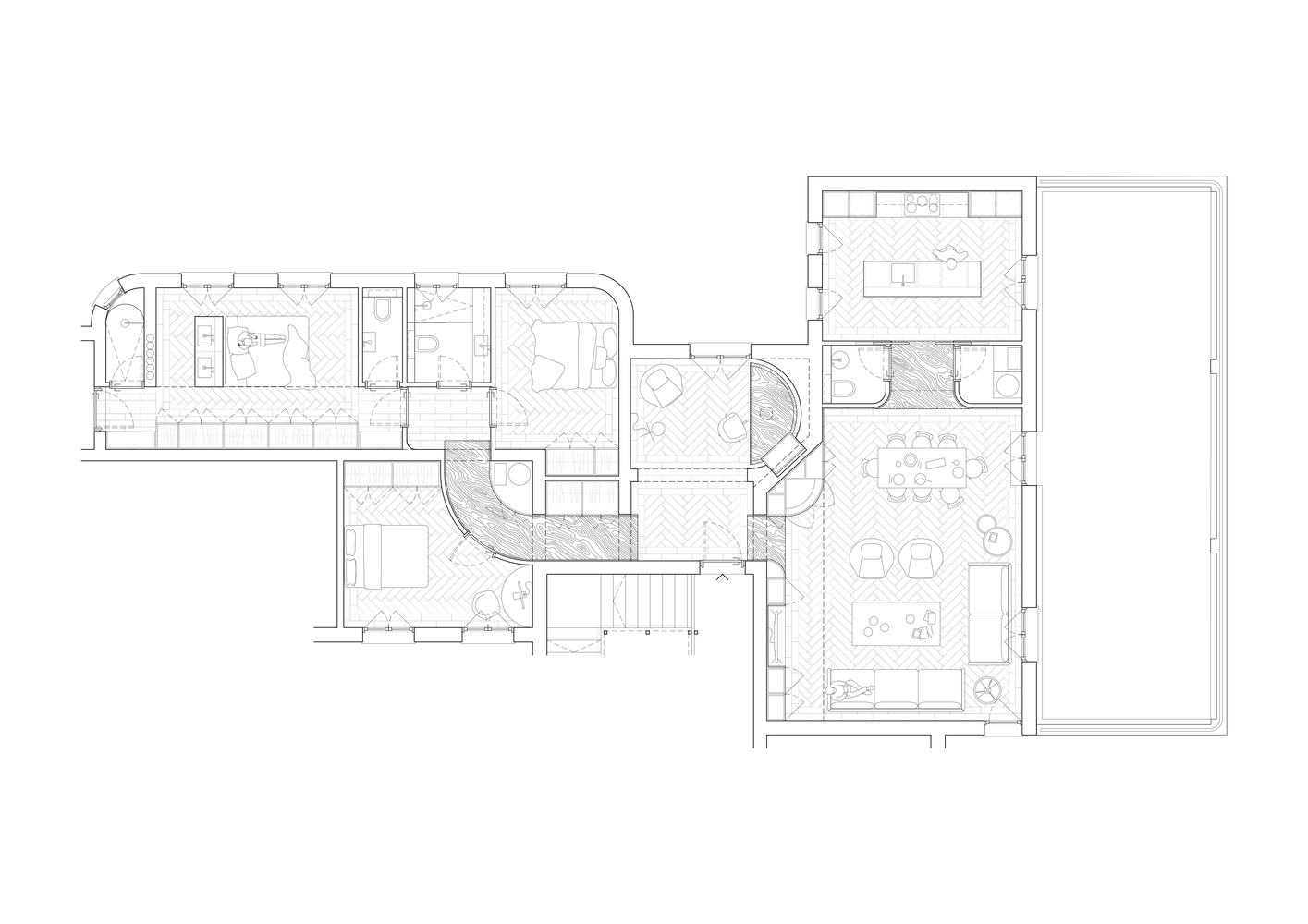
The residential building for the Marquis of Amurrio was built between 1925 and 1927 by the architect Gustavo Fernández Balbuena, founder and first director of the magazine Arquitectura in 1918, being one of the oldest active magazines in Europe. Due to the quality of its architecture and the relevance of the author, this building is included in Madrid's heritage list. Located in the Chamberí neighborhood, the volume of the complex, with an open courtyard to the outside, responds to hygiene strategies that were used at the time due to intensive urban planning, which resulted in dark and poorly ventilated interior courtyards. As a consequence of this urbanism, the living floors end up being long and with enclosed damp cores inside, always close to the secondary entrance where the service staff entered.
The new property requires a typological review that renews this century-old residence. The desire for enjoyment above the symbolic function of the old residence, together with the need to incorporate teleworking into the domestic space, will be the instructions for designing the proposal. For this purpose, we propose four scenarios separated by a sort of preludes or openings; small and brief spatial pieces that, independently and with their own narrative, introduce the main spaces: bedrooms, living room, kitchen, and work area. Each of these pieces has its own shape that adapts to the circulation needs and program of the residence: two flared geometry doorways give way to and frame the events of the living room and kitchen. A small ambulatory, which crosses existing openings in the load-bearing wall, optimizes circulation to obtain two equally sized bedrooms and gain storage space. And finally, a large table adapts its geometry to the existing space at the main entrance, transforming the entrance hall into a cabinet or studio.
To define the finishes, it is proposed to dismantle the previous state in order to restore it while maintaining the identity and quality of the old residence, such as the plasterwork ceiling or the herringbone pattern on the floor, but altering and distorting their geometries and sizes. A series of operations with architectural elements close to joinery construct an imaginary of curves that shape the preludes that separate the different domestic scenes: both the productive and the more hedonistic ones.
客服
消息
收藏
下载
最近

























