查看完整案例

收藏

下载

翻译
At the first meeting, we were impressed with the client’s extraordinary intelligence. Working in the financial industry, he studied a lot in advance about multi-family housing and architecture. For the client living in a high-rise apartment with a panoramic view overlooking the city, the most important thing was a sense of openness and privacy. He loved music and wanted a small space where he could enjoy it. His wife enjoys little parties with acquaintances, and dreams of a rooftop space with a deluxe kitchen that can support these parties.
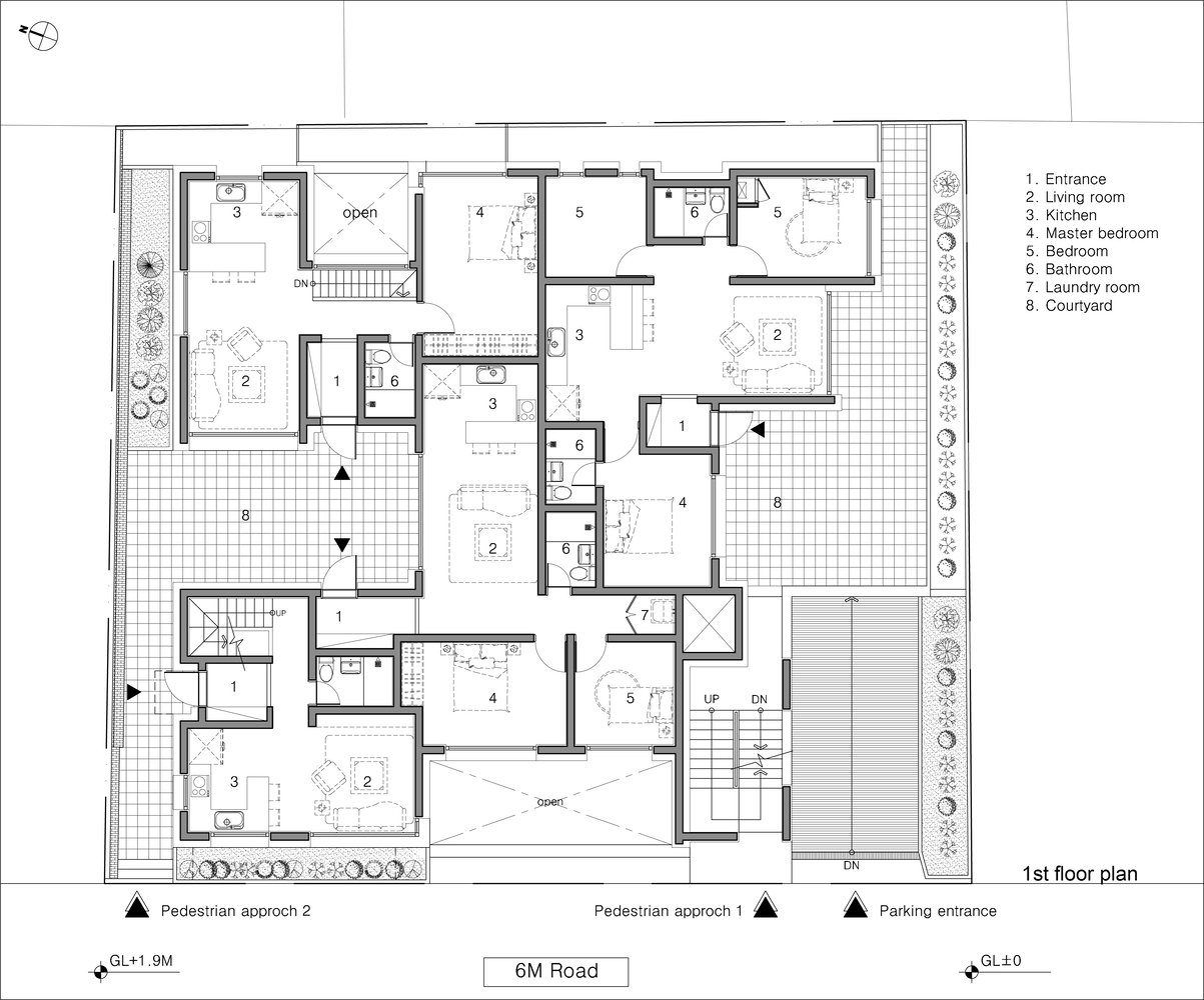
The site is located in a charming village that makes people feel comfortable with the idyllic scenery. It has a slope of about 1.9m along the 6m road on the west side. The client has an idea of the independent owner’s house and attached rental units at right angles to the road, using the slope of the site. However, the horizontal separation of the owner’s house on the site of 506㎡ causes a problem of privacy. The attached house of 4 units in the length of 21m causes the problem of noise. Therefore, we proposed vertical separation between the owner’s space and the rental spaces organized in a more three-dimensional way.
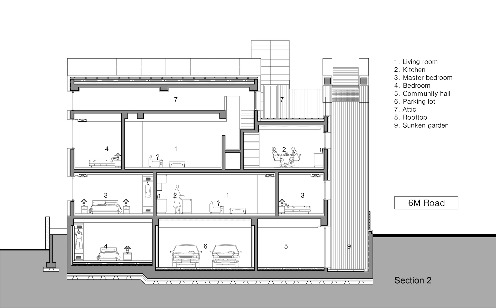
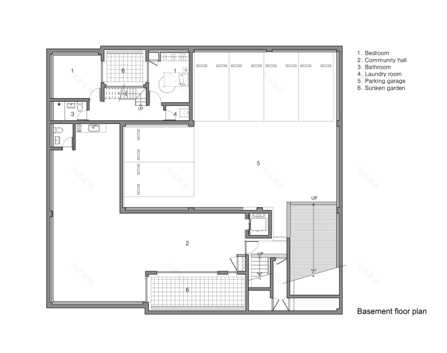
In most apartment houses, the circulation is centered in the core with a staircase and an elevator. It gathers vertical circulations and distributes them horizontally again on each floor. But, there is no core in this building. Each entry is made independently through a semi-private courtyard. The floor plan began with finding the best proportions that would allow each space to have optimal utilization. Next, we strived to provide pleasant views of gardens, and small hills at the point where the circulation changed and where the windows of the main spaces face. Finally, we planned different service spaces, such as a private yard, terrace, sunken garden, and attic for each household. These spaces will provide special richness and serve as a small healing spot.
The owner’s space focuses on matching the lifestyle of the family. The living room with a 7.2-meter window expands the gaze to the large terrace and lower garden, securing a sense of openness. The elevator connects from the underground parking lot to the rooftop through the kitchen. It separates the circulation of outsiders from daily life during various gatherings while providing necessary support from the kitchen to the rooftop.
The building is primarily segmented by the insertion of the courtyard. This change in mass finishes with a village-like landscape, meeting five gabled roofs. Gables of different sizes and shapes play various roles. The biggest role is to create three attics of different characters. The largest attic above the living room is used as a multi-purpose space near the rooftop. The upper attic for the master bedroom is a space like a boy's secret hideout for the client. The third attic provides free space for rental households. The front gable roof of the rooftop serves to give privacy to the open space. In addition, it drops appropriate shades on the lower kitchen and its louvers create funny shadows moving according to time.
Two types of granite and natural wood louvers were used as exterior finishing materials. Granite has excellent durability and is resistant to contamination, making it easy to maintain. It gives a strong image to buildings due to the strength inherent in the material. If the dark grey granite forms a calm tone base, the bright copper-green granite contrasts with the base color and reveals the change of mass. Ipe louver was applied to give a warm and soft point to the building.
客服
消息
收藏
下载
最近



























