查看完整案例


收藏

下载

翻译
The Carnival Museum is a monument dedicated to preserving the historical memory of the Barranquilla Carnival, treasuring the legacy of makers and their Queens, history, music, dances, masks, neighborhoods, costumes and the expressions that turned the Barranquilla Carnival into a Masterpiece of the Oral and Intangible Heritage of Humanity.
It was conceived as a museum in which people would experience Carnival very closely, having the opportunity to appreciate its parades, traditional costumes and celebrations that have given life to one of the most representative festivals of world heritage. In addition to this, it is a cultural setting dedicated to the investigation, preservation, diffusion and exhibition of the manifestations and traditions of the carnival. Also, it incorporates an educational component that offers an insight into the heritage nature of the carnival among visitors.
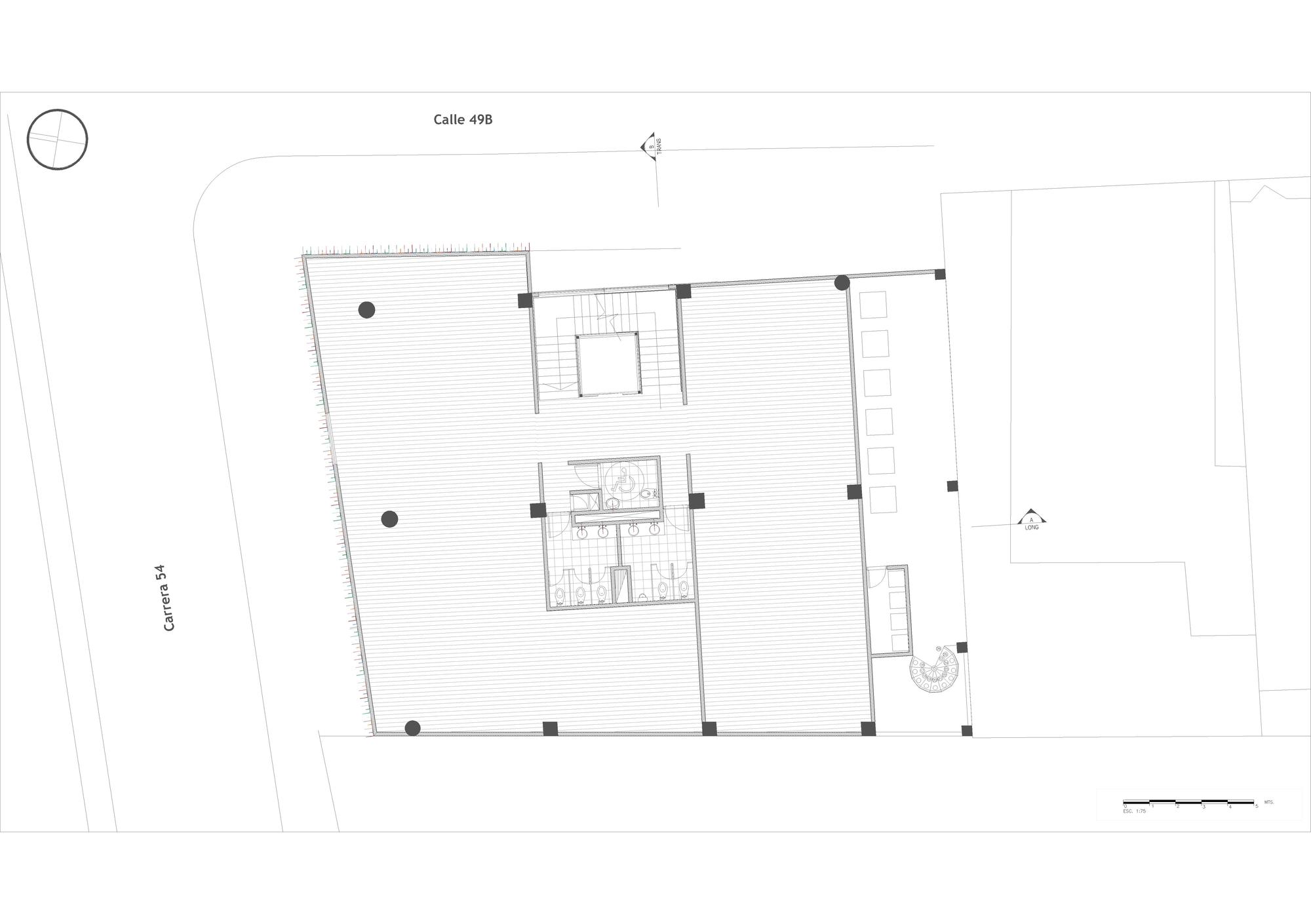
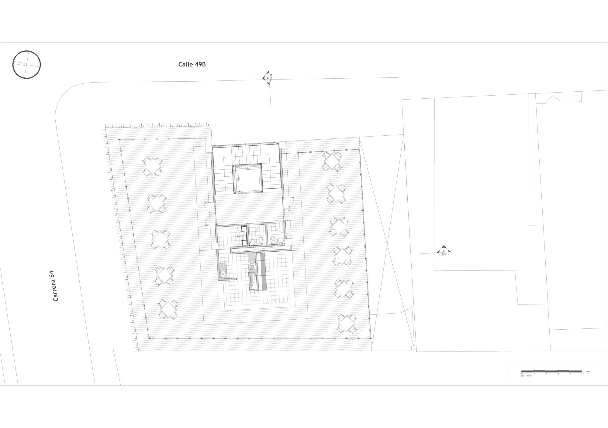
It is located in the heart of Barranquilla, in the traditional Barrio Abajo neighborhood next to the Carnival House within the historical circuit and new cultural corridor of the city. The building combines tradition with customs, oral wealth and an entire culture that identifies an entire country.
Color is the strong identity of the carnival, so it was sought to project the joy and liveliness of its parties, through the imposing management of multicolored '”breezes”' that, as pedestrians pass, achieves a color transformation effect inspired by the legacy of the kinetic art of the Venezuelan artist Carlos Cruz-Díez, who welcomes you to enter. You are then surrounded by different rooms including: • Carnivals of the World - The history of Carnival in Humanity and the presentation of more than 16 carnivals of the world, allowing visitors to identify the role of the festivals in their countries.
Between sounds, colors and choreography they can value each celebration as unique. • Barranquilla Carnival - fully dedicates to the Barranquilla Carnival, through an immersive experience in the Barranquilla culture with the sounds, colors, dances, characters of this festival, allowing you to enjoy the joy simulating the four days of Carnival . • Queens - The exclusive exhibition of the queens' costumes is located on the second level, in a tribute to the most important figure in the history of the Festival, extolling the historical landmarks of Barranquilla and Colombia during their reigns.
Battle of Flowers - On the first level you will enjoy an experience dedicated to the oldest parade of the Barranquilla Carnival that combines music, dance and a float that shows the craft dimension of the Fiesta. Also an area for exhibitions and Carnival activities, as well as an outdoor terrace that will allow you to connect with the Barrio Abajo. With the Carnival Museum, Barranquilla is the first city in the country to have a cultural setting dedicated exclusively to preserving the traditions of its Fiesta. Thus complying with the Special Safeguard Plan, PES, in its line of construction and adaptation of new Carnival spaces in localities for the realization and promotion of activities related to the preservation of Heritage.
客服
消息
收藏
下载
最近


























