查看完整案例


收藏

下载

翻译
From the team. Private Sezin School Open Roof Space is a ‘beyond-classroom’ pedagogical space with a spatially hybrid program that fosters meeting, making, learning and working. The key question in this project was how ATÖLYE could transform a progressive K12 school towards a pedagogical laboratory for 21st century skills.
To this end, borrowing from Fuller’s trimtab concept, the project intervened in a lightweight yet effective manner and chose the formerly dormant empty rooftop space of the existing building, measured at approximately 1,700 m2 within 15,000 m2. This scale difference allowed for experimentation while offering sufficient room for a critically diverse program.
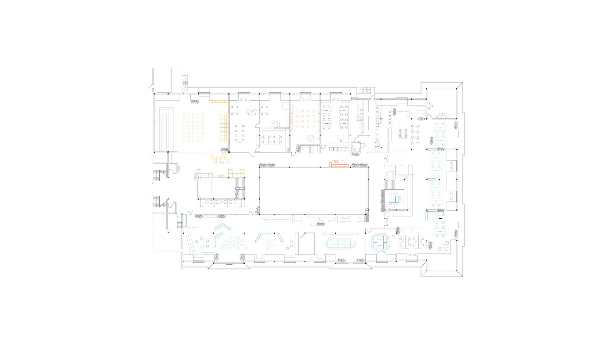
ATÖLYE team first developed a strategic spatial program for Sezin Schools, which included an unusually large teachers’ zone, a flexible events venue, a public meeting room dedicated to educational NGOs to foster partnerships, a makerlab with three sections (media lab, wood shop, bio lab) and small lounge booths for comfortable parent-teacher dialogue. Such strategic programming ensured that the outcome would be novel independent from formal design elements. Furthermore, the layout and proximity of these different zones were informed by parameters such as need for daylight, visual privacy, acoustic isolation and persona-based circulation paths.
As the next step, architectural systems were developed in close synchrony with multiple technical specialists, leading to a high performance and integrated design. Ecological wood wool panels were placed across the ceiling surface to reduce reverberation and increase intelligibility in different learning settings, while serving energy efficiency goals. All lighting systems were specified as dimmable low-Kelvin LEDs, supporting flexible learning while reducing energy use. From daylight standpoint, a central atrium covered with sound-absorbing, low-embodied energy, lightweight polycarbon panels provide ample daylight to spaces while narrow windows punctuate the surface creating shifting vantage points. Mechanical systems were selected with highest locally available efficiency ratings, while separating fresh air and exhaust air systems by coloring, thus serving as an educational vessel for children. Furthermore, the fresh air system was designed to capture excess heat from the enclosed courtyard using heat exchangers. A well-tuned building automation system was designed to capture the efficiency gains by integrating underfloor heating, VRV cooling, mechanical ventilation and operable windows.
The project has set a local example in terms of stakeholder engagement. Starting with a design thinking workshop in 2014, the seed of the project can be traced back to deep collaboration. Throughout the research and schematic design phase, frequent site visits, passive observation sessions, interviews and design crits ensured proper prioritization of design tactics. ATÖLYE also engaged a leading NGO, Education Reform Initiative, in the design phase, thus sparking institutional collaborations which will help scale this space’s impact to other schools. Meanwhile, the lighting system in the event space was designed, prototyped and manufactured in collaboration with a select student-teacher group, thus setting a visible example of ownership-via-participatory design. Finally, during construction, the project team decided to leave the space partially incomplete in terms of furniture and machine infrastructure thus learning from its first six months and enabling an iterative process.
Altogether Sezin School Open Roof Space has been a unique opportunity to affect educational habits for all actors. ATÖLYE’s scope will likely extend towards post-occupancy, including event curation, design feedback research, makerlab operation and new furniture manufacturing, thus enabling rapid iteration and continuous improvement.
客服
消息
收藏
下载
最近






































