查看完整案例


收藏

下载
设计师:Guillaume Lévesque architecte
面积:310 m²
年份:2020
摄影:Charles Lanteigne photo
Arquitecto Colaborador:Matisse Aubin Thuot
Ingeniero Estructural Y Contratista General:GENIEX
Ingeniero Mecánico Y Eléctrico:Group Cémec Inc,
Arquitecto Paisajista:L’espace paysage, Martine Boudreault
Ciudad:Montreal
Pais:Canadá
设计师描述 | Designer description:
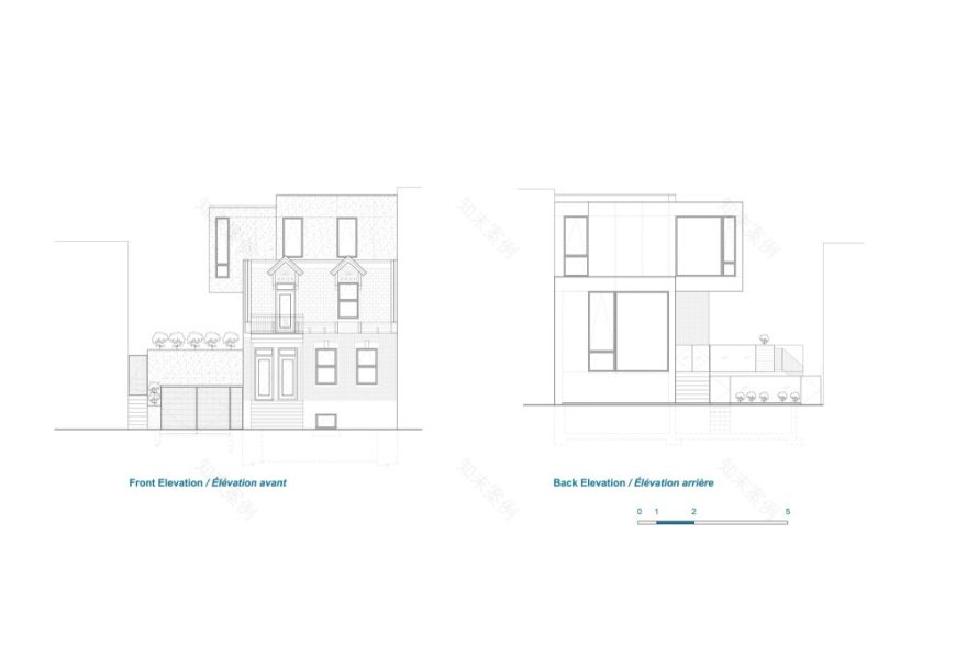
. Restaurar una casa del siglo XIX conservando el patrimonio y creando una adición contemporánea es todo un desafío. El edificio original de 60m2 ha sido completamente restaurado y convertido en dos apartamentos. Ambos apartamentos tienen un plano abierto con grandes ventanales laterales de 3,65 m de altura tallados en la pared de ladrillo. El ático se ha cubierto completamente con nuevos azulejos de pizarra. Las buhardillas y la carpintería se han reconstruido por completo.
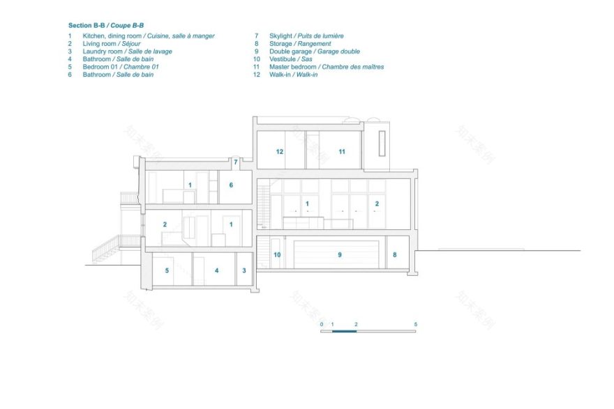
. También se construyó una adición contemporánea de 180m2 en tres niveles en la parte trasera del edificio. El sótano incluye un garaje doble con puertas ocultas y almacenamiento. El salón en la planta baja se abre a través de grandes puertas correderas a una terraza exterior de 4 x 12 m. Cubre el camino de entrada al garaje en el sótano y ofrece un magnífico espacio para un comedor y una soleada sala de estar al aire libre. El segundo piso contiene el dormitorio principal, dos baños y una sala de estar que también puede ser un dormitorio de invitados.
La adición incluye grandes aberturas que proporcionan a todos los espacios interiores una cantidad considerable de luz natural. Un revestimiento sobrio de paneles de metal negro cubre la adición contemporánea y le da al conjunto un acabado prolijo.
. El distrito de Ville-Marie requería que el edificio existente fuera preservado y restaurado. Un desafío que el equipo de arquitectos, acompañado de hojalateros, ebanistas y albañiles, ha asumido con éxito.
项目完工照片 | Finished Photos
设计师:Guillaume Lévesque architecte
分类:Casas
语言:西班牙语
阅读原文
客服
消息
收藏
下载
最近



































