查看完整案例


收藏

下载

翻译
Situated in a leafy Perth suburb of Western Australia, Barnard is a family home with room for each member of the family to have their own space.
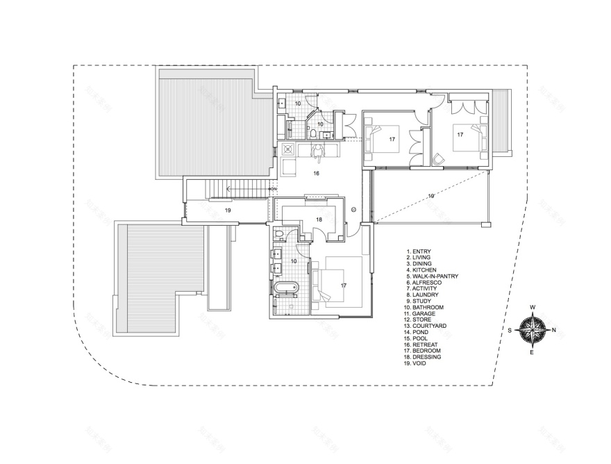
Features include a home office with separate access, an outdoor bathroom, activity room with access to outside, large alfresco which extends the indoor dining area, maximising outlook to nature reserve across the road. Being a corner block, both street aspects are striking in appearance It’s both an energy efficient home and a home that adapts with a growing family.
The open plan living encourages the pool to be the focal point, with the palette complimenting the nature reserve across the road. The home office can also function as a future guest or master bedroom. The home ensures that each room has the best possible outlook from every window, which in turn provides natural ventilation, in particular to the bedrooms. The light filled home is a modern flat roof design with timber look battens and a timeless design.
The outdoor powder room allows for ease of access from pool area, whilst the activity room boasts a large sliding door directly accessing alfresco. The alfresco runs through to the indoor dining area with glass bifold doors, and the main living rooms and bedrooms have outlook to nature reserve across the road. Louvre windows help create a comfortable home capturing the cool afternoon breeze and north facing living areas allowing the winter sun to warm the home. Multi purpose rooms to adapt from home office to guest bedroom with adjoining bathroom, activity room can double as a guest bedroom or gym, kitchen has plenty of storage with overhead and under bench cupboards, walk in pantry, hidden drawers maximising space, large bench tops, and appliance cupboard.
The Kitchen, Dining, and Living is one large area opening out onto alfresco and outdoor living area. Glass incorporated into these areas allow for full height stacking sliders and openings, drawing the eye towards the pool and landscaped garden and the canopy of nature reserve beyond. The home office has a storage room with cavity sliding door which can also be a wardrobe if the room was to be used as a bedroom in the future. The ground floor bathroom has been designed with this is mind, being located adjacent to the home office.
All windows with views have been utilised and where the natural view was lacking, ponds and landscaping have created a harmonious and complementary view. Three upstairs bedrooms have Louvre windows and ceiling fans to minimise the need for air-conditioning. Privacy to the backyard has been achieved through the clever use of angled slat fencing which provides the required open aspect according to council regulations at the same time providing privacy to the pool and outdoor living areas. Timber-look powder coated aluminium battens were sourced to achieve the low maintenance brief as well as a talking point for the home. The earthy colour palette both blends and compliments the natural surroundings.
客服
消息
收藏
下载
最近






















