查看完整案例


收藏

下载
“我们家其实没有什么特殊要求,但是我们知道自己不想要一个普通而无趣的家,住在这里我们希望这个空间是舒服减压的,符合我们日常习惯,并且不需要为所谓好看的设计而别扭的住着。”01
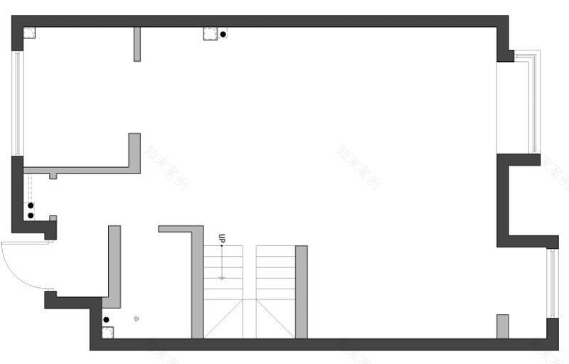
FIRST FLOOR一层
一楼原始结构分散无序整体层高太高是这个空间的主要问题
设计师决定将一楼作为公共空间集休闲 办公 烹饪于一体
贯通三层的粗糙文化石背景墙突破平面局限联通整个空间
以达到和谐 灵动的整体感
01/客厅
取消电视和背景墙 常规式设计
粗糙肌理的文化石背景
横贯空间
带来原始自然的整体气质
绿植与自然元素穿插其中原木的楼梯悬空而上点缀色让整个空间自如流动 02/工作区
冰冷白色用木质去包围融和多种材料克制表现,从而简约又不失层次。有质感的画布和金属吊灯,在光线的规划下,打造沉浸式的空间氛围。
深色与有质感的材料恰到好处的消去了空间的单调人与物、空间在这个闭合的空间里和谐的联系起来 03/厨房
开放式的结构带来联通的功能与空间感受
无论是烹饪还是用餐都可以容纳多人同时使用
一间房子每个区域都有不同的功能用流畅的动线串联丰富宅家的居住体验
04/用餐区
生活的浪漫,在于一日三餐相邻而坐相视而笑温情满溢岛台的存在提供了除厨房以外更多的互动空间 05/玄关
入户如天光自然倾泄
仿若天然
带来进入仪式感
隐匿于墙后的洗手间
实现空间功能的统一
匠心独具
02SECOND FLOOR二层
二楼面积有限,并无私密互动空间
并存在层高问题
用拆除和搭建进行空间重构
主卧可开可合的设计
让二楼空间的界限感降低
藤质等自然元素
使整个空间保持了统一关系
01/二楼休闲区
藤质的朴素与空间气质形成了很好的呼应。透光投影,空间有了极佳的呼吸感。
简单天然的材料有机结合,利用层高打造了一个挑空休憩空间。帘随影动,恬淡安然。02/主卧
全开放式的主卧门设计开则通合则闭空间有了另一种立体形态
开阔的衣帽间延伸空间包容了更多的使用可能
03/女儿房
白色系的干净空间
手工质感的画色彩浓郁
人字拼地板使整个空间不再单调
04/公共洗手间
大面积的彩色水磨石
空间色彩一下子活泼起来
墙面转角
使如厕区有了完美的视觉阻隔
03TIRED FLOOR
三层利用得天独厚的天窗,打造独特的懒人式观影区,以及作为读书区和练琴区使用。作为搭建重构的崭新空间,呈三角形分布的结构,完美的容纳了多重功能。01/观影区
02/读书区
阁楼的天窗实现了星空与电影兼得这个交互式的空间一家人在同一个空间却互不打扰能够容纳日常生活和交流情感的空间才是我们真正的适意之家一楼空间改造变化:
二楼空间改造变化:
三楼空间改造变化:
坐标 Location 天津 生态岛颐湖居
项目 project 联排别墅
面积 Area 230㎡
设计 Team 深白设计
主案 Designer 安娜
软装 Costume 别漾陈设
摄影 Photography 辰吾工作间
客服
消息
收藏
下载
最近


















































