查看完整案例


收藏

下载
特房樾琴墅
湾海艺境 · 泛会所
[ 引:]
用恒与变(Constance and Change)来揭示发展的本质;用大历史衬托具体建筑现象,又用具体现象的深刻分析来呼应时代;种种直笔与曲笔的结合,共时与历时分析的结合使人在雄浑的历史感中体会到建筑真意。
——希格弗莱德·吉迪恩《空间·时间·建筑》
01. 前调:自然舞曲·优雅步入
Natural Dance Music - Elegant entry
调性的灵感源于自然,整体风格以安静柔和的自然色为主,漫步在空间之中,感官情绪逐渐被吸引,这是一份结合了传统与新潮的文化碰撞,整个场域和谐且舒适。
初入前厅,木与石铺叙空间基调,舍弃矫揉繁复的装饰,整体线条明朗,展示空间的利落之美。螺旋式灯具下,古朴的陶器承载一抹绿色,设计师秉自然之意,创造东方文雅与当代共融的空间情境。
“夫美者,上下、内外、大小、远近皆无害焉,故曰美。”这种古老的东方美学理解,在建筑上可称为“对称”,中国人讲究对称的美。
在本案中,以电梯为中轴线,左右以木质桌椅+沙发对称罗列,整体风格沉稳大气。
视线的尽头是开阔的景观,将自然的“景”与空间的“境”完美融合,在空间与想象之间架起了由内到外的关系。伴随着阳光与风景,此处是休憩饮茶的绝佳场所。
02. 间调:方圆之间的业主关怀
Owners’ care between rectangles and circles
“天道曰圆,地道曰方,方曰幽而圆曰明“——《曾子·天圆》。以巨大的圆形天窗为中心,四周构建多样生态空间,这种以“天圆地方”观为设计理念的空间哲学赋予了玉食厅形式美与秩序感,这种不拘于传统设计中几何化的方与圆,为空间带来别样的设计质感。
从几何学来讲,圆是同等面积下最能承载空间功能的形状,由墙木饰面及温润色调构成的包裹性空间中,在明亮的光线下,承载了书吧、影院、音乐、会议、展览等多种功能。
缓坡式通道,为腿脚不便的老年业主提供自在的休息空间,让空间满足儿童、成年及老年群体的全方位功能适用。
03.
尾调:
交响空间·生活四演奏
Symphonic Space · Life quartet
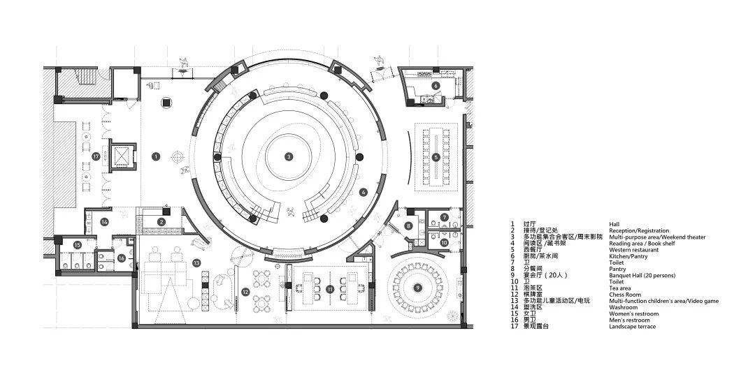
空间的秩序感以动线来衡量,优秀的动线设计是一种情境创造。玉食厅以多功能区为轴,动线由内到外依次为西餐厅、宴会厅、品茗区、棋牌区、儿童玩乐区,以“吃喝玩乐”为逻辑动线,互相独立却又互相链接。
西餐厅简约大方,墙上装饰画为空间增添艺术气息,圆形暖色吊灯增加用餐的心情,探索食物的美味。
△西餐厅
宴会厅空间通过木质与石材的碰撞,点缀以精致的花艺绿植,整体呈现一种古朴致雅的氛围。
△宴会厅
品茗区色调柔和淡雅,整体空间以棕色为主,优雅、朴素、端庄而不失雅致,营造一种禅意氛围,设计线条简洁、流畅,气韵内敛。
△品茗区
SUJI 深入在地文化,为本案注入一份人文关怀,将棋牌室设立于泡茶区旁,将闽南传统茶楼棋牌文化融入其中,满足来访客人的娱乐需求。
△棋牌区
儿童区整体明亮,点缀温暖的橘黄色,巨大的长颈鹿雕像伸着脑袋望向未知的世界,一个富有童趣、能带来更多来自艺术设计欢乐与思路的空间氛围便由此产生。
△儿童区
围合空间向外延伸,景观露台在自然的包围下,其色彩的变化融入了四季的风采,包含了对自然与未来的憧憬。
△景观露台
[ 结:语 ]
湾海艺境·泛会所不仅仅是营销中心的存在,多重功能的复合空间及极具人文关怀的空间设计,让它成为业主的社区中心,满足了业主会客、娱乐、亲子、活动等各种需求,以东方建筑艺术构建空间结构哲学,在方圆之间,体现满满的业主关怀,让空间真正实现“以人为本”的初心。
SUJI 设计对布局的考究、细节的雕琢,深思熟虑下的考量都是对完美的追求。
平面布局图
▽
1F 大堂
BF 玉食厅
Project Information
项目名称|特房·樾琴墅泛会所
项目地址|厦门市同安区
业主单位|厦门特房嘉湾房地产有限公司
设计单位|徐绮设计事务所
主创设计|徐绮
设计团队|肖敏伟,林晓丹,洪诗霞,董晓天,王惠达,张雅瑜
软装团队|杨萍,吴梓榕,陈韵如,陈洁怡
项目拍摄|杨耿亮
施工单位|厦门亿世禾装饰工程有限公司
项目面积|1000㎡
文案编辑|海西设计联
About Designer
徐绮
徐绮设计事务所创始人/设计总监
2021 发现中国好设计 年度推荐设计师
SUJI DESIGN 徐绮设计事务所创立于 2014 年,致力于住宅地产与商业地产的产品研究,精于高端住宅、会所、售楼处、样板房、展厅、精品酒店等项目设计。
SUJI 凝聚了一群兼具国际视野与创新力的设计精英,拥有丰富的项目落地及设计管理经验。创始人徐绮女士有着长达 20 年的设计经验,曾任厦门喜马拉雅设计总监、上海李玮珉建筑设计事务所专案经理,2014 年创立 SUJI 后,逐步建立了属于自己的设计风格——在理性的设计框架下,构建感性的空间语系。
作为华语领袖榜百位卓越设计人物,SUJI 曾为 30+上市公司董事长设计豪宅及高端会所,擅长现代简约的手法,以纯粹的设计,演绎宁静、优雅的空间体验。
END
*投稿须知
15010580132
客服
消息
收藏
下载
最近











































