查看完整案例


收藏

下载
Casas, Valladolid, Espanha
设计师:Estudio Bespoke, longo+roldán arquitectos
面积:654 m²
年份:2019
建造商:Adobe Systems Incorporated, AutoDesk, B.lux, Cement Design, Flos, Hager, JNF, Miele, OTTOSTUMM, PANORAMA, Roca, SANTOS, Saxun, Zucchetti.Kos
设计师描述 | Designer description:
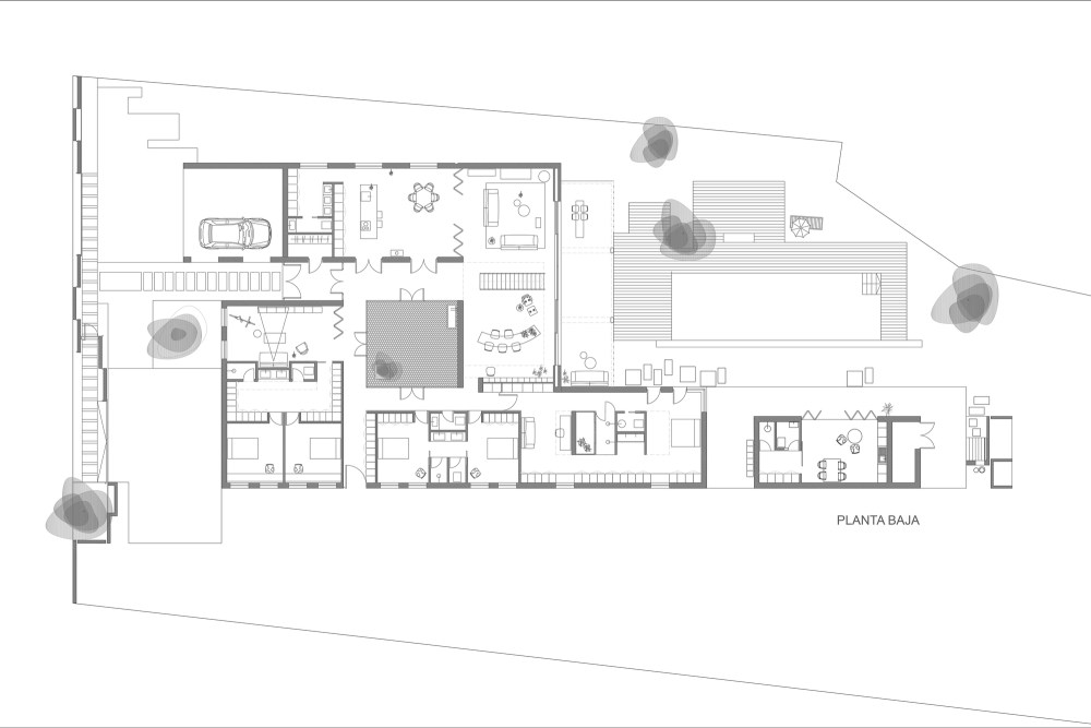
Este projeto é marcado pela forma resultante do terreno após o novo parcelamento criado para uma futura rua. Por conta disso, o programa ocupa o lado oeste do terreno, mantendo o que será o jardim principal entre a própria construção.
O programa se organiza em dois volumes que corresponde às necessidades exigidas pelo cliente. As duas peças se alinham com a abertura viária com a qual o terreno se confrontará no futuro.
O volume menor recebe o programa de manutenção e as áreas ligadas ao lazer na piscina, situada no centro do lote.
O volume mais generoso em superfície corresponde à casa principal. Esta, baseia suas premissas no desejo do proprietário de gerar um pátio interno ao redor do qual se desdobra todo o programa da casa.
Este pátio, que sofre com as condições climáticas devido à falta de uma cobertura, cria a rota necessária para acessar todos os cômodos da casa. Graças a suas dimensões generosas, este distribuidor ao redor do pátio se torna um novo ambiente que contempla o cerne da casa, isto é, o espaço externo. Além disso, este articulador está ligado às salas principais por meio de espaços abertos e grandes vazios de comunicação.
O programa divide em um eixo diagonal em relação à construção principal. A luz do leste e do sul inunda a cozinha e a sala, respectivamente. Esta última divide seu espaço por uma escada de aspecto leve que leva ao estúdio do primeiro pavimento. Uma passarela percorre o perímetro do pé direito duplo do salão, sendo este o único ponto da casa do primeiro andar.
A área provada ocupa o espaço restante, com acesso através da passarela. Os dormitórios principais são protegidos por antessalas, pequenas salas e banheiros que permitem associar o grau de privacidade à rota dos quartos.
Por último, os materiais utilizados na construção são reduzidos ao concreto, tijolo e aço. Estes, junto ao telhado plano, acentuam o caráter industrial da casa, que, despojada de qualquer artifício supérfluo, segue o maior princípio do desenho funcionalista.
项目完工照片 | Finished Photos
设计师:longo+roldán arquitectos
分类:Casas
语言:葡萄牙语
阅读原文
客服
消息
收藏
下载
最近








































