查看完整案例


收藏

下载
■ LJID -淼融设计独家专访
本案在提取地东方文化的禅元素与现代设计进行融合,在质与朴、深与浅、光与影、直与弧乃至堆栈尺度中寻找平衡。进而迸发具有感染力的空间感,使之触动人心。
01JOURNEY TO THE EAST
东方之旅
整个自然的室内空间与建筑空间不应是背道而驰的对立关系,而是应当去探寻两者共生的可能,空间的内涵在不断地外拓与延展,一场内与外交融的东方之旅,悄然而生。
P. 01
P. 02
P. 03
P. 04
02BRING IN AND LIFT UP
带入与延升
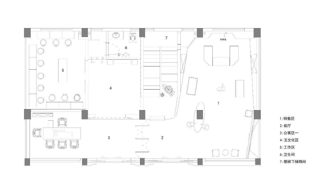
一层空间
小憩·销售·文化区
南面入门处小憩、歇脚、品茗,小抬高地面增加玉文化区的带入感、空间糅合与开展,动线的延升。
P. 05
P. 06
东面循门而入,朱红色与大地微水泥调子的室内空间拙朴而雅致。前厅空间的考虑方便在销售与会客之间自由切换。
公共空间的设计理念基于自由和多元的价值观。
P. 07
直线与弧线交织,几何空间内,纯粹的颜色营造静谧的氛围,回声传响,聆听故事的到来…
P. 08
P. 09
• 03
LANGUAGE OF LIGHT
光的语言
春生之性,万物之源。
东方之行,冒地而生。
寓意中的记忆碎片在新与旧的线条在透过玻璃隔断交织在一起,构造另一幅抽象化的迷离光景。如秘境初探情境,乘兴而来,鉴古知今,交由光的语言指引探索过往的故事。透过光影触发空间的节奏感,见证岁月流淌的痕迹,东方故事由此娓娓道来……
P. 10
P. 11
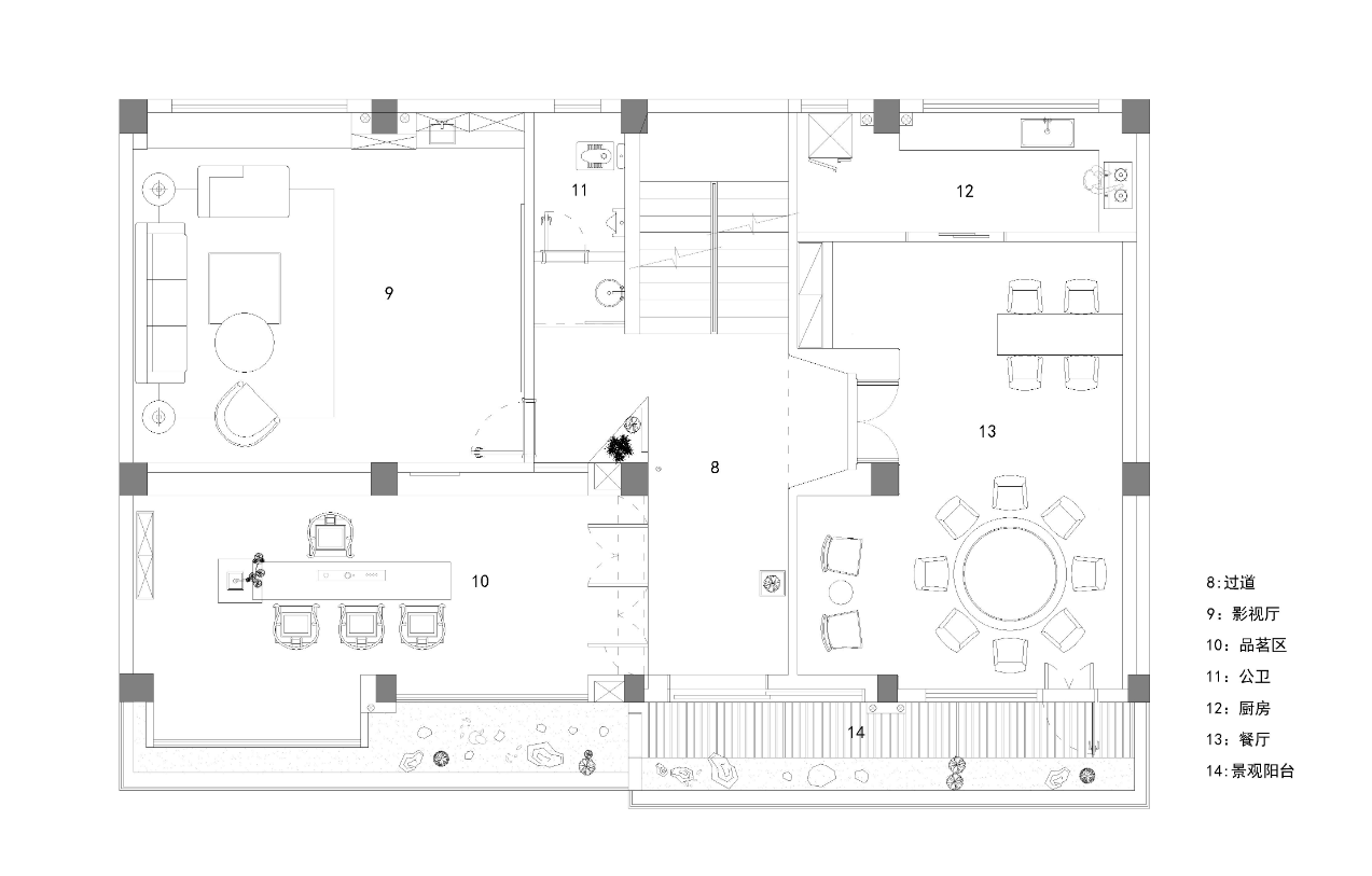
二层空间
餐厅·品茗·影视
随着夕阳变幻的色彩,空间与环境内外呼应,木雕艺术品在各个时刻焕发出不一样的生命力,时光化为一幅画,落下的树影婆娑融于艺术之中,令人流连忘返。
P. 12
P. 13
P. 14 品茗茶台利用石头和木头相结合的质朴原始纹理与极简的空间相结合。石与木是一种精神传递,一种空间特性,一种强烈却真实的具象雕塑,增强人们对空间的认识。
P. 15
P. 16
P. 17
P. 18
P. 19
P. 20 万物流转,与时光对话,沿着光线,踏入艺术回廊,线条将原画色彩毫无遗留地呈现出来,驻足欣赏,感受每一处传递的深厚情感。
P. 21
P. 22
P. 23
• 04
SIMPLE LIVING
朴居简约
为君持酒劝斜阳,且向花间留晚照。斜阳的光影为空间铺上自然纯美的蜂蜜色,多重时空的故事在这片大地同时上演。
P. 24
P. 25
P. 26
P. 27
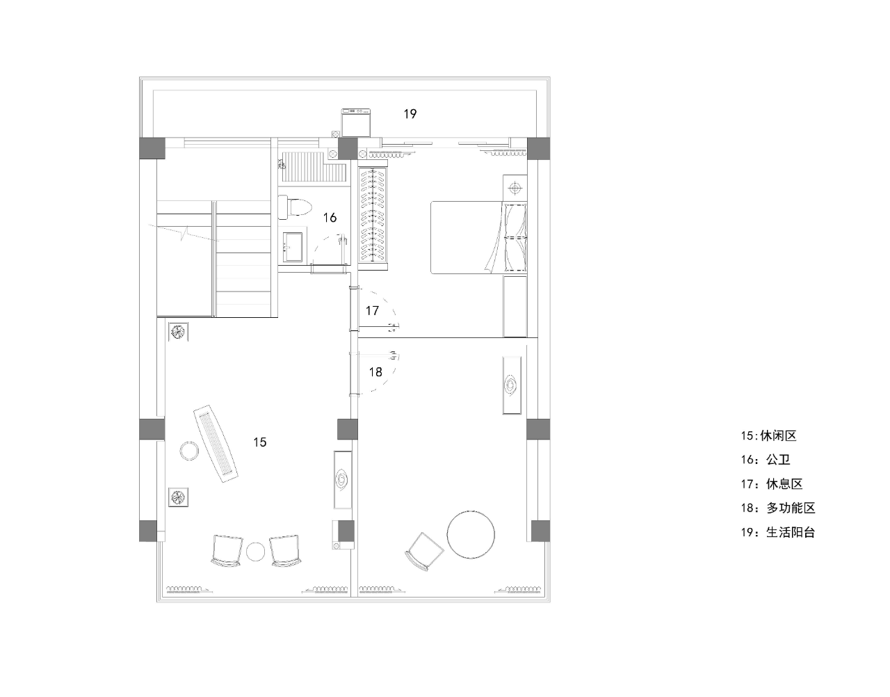
三层空间
朴居·办公·私享
朴居简约的质朴守拙空间氛围,在兼容并蓄张弛有度中与自然形成对话,内心之境的低调表达。
P. 28
P. 29
P. 30
• 05
ANALYSIS
DIAGRAM
分析图
滑动查看平面图 P. 31
INFO
- 项目名称 - 昇泰
- 设计机构 - 淼融设计
- 设计团队 - 郑俊伟 陈桂锋
- 项目面积 - 488㎡
- 项目地址 - 广东 揭阳
- 施工负责 - 陈咏龙 张珈颖
- 项目摄影 - 大象视觉
DESIGNER
郑俊伟
MR 淼融设计主理人
MR|DESIGN 淼融设计成立于 2018 年,团队成员均为 90 后,是一个充满阳光激情的设计团队,设计上我们推崇挖掘甲方生活文化。打造属于甲方独一无二的高定私人设计。
客服
消息
收藏
下载
最近






































