查看完整案例

收藏

下载
案例简介
Case description
太阳西沉,从屋檐投下忧郁影子的那片刻,万物的轮廓变得朦胧恍惚。人无法分辨,从远处朝自己走来的那个身影,到底是自己抚养的忠实爱犬,还是一头来捕杀猎物的狼。在这个时间里,善与恶的界线变得模糊,融化成了一片夕阳的血红。
这来自于法国的一句熟语:Heure entre chien et loup
同理,在某些时刻,我们的生活不需要、也无法准确的刻画出边界。过多的固有模式,往往会减淡生活原本丰富的味道。因此,当步入柴米油盐的生活中,我们真正的理想家,也许不是那么富丽堂皇,反而应当是实用、多变、会呼吸的、有生命力的设计。
业主情况:
一对年轻的新婚夫妻
业主需求:
1.布局合理,房间布局就像人体骨骼,是实用好装修的基础
2.餐厅需要变大
3.三间卧室都要保留,以后用作小孩房和老人房。
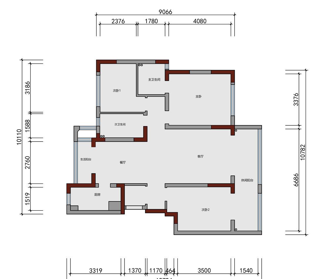
原始户型
存在的问题:
1.入户门厅空间拥挤,转身都困难,鞋柜也无处安放;进入客厅的过道口狭窄,造成门厅采光极差,客厅也显小。
2.主卧门正对次卫生间门,主卫生间门正对床头,主卧布局易造成空间浪费,家具难以摆放。
3.次卧1布局不得当,衣柜难以放置。
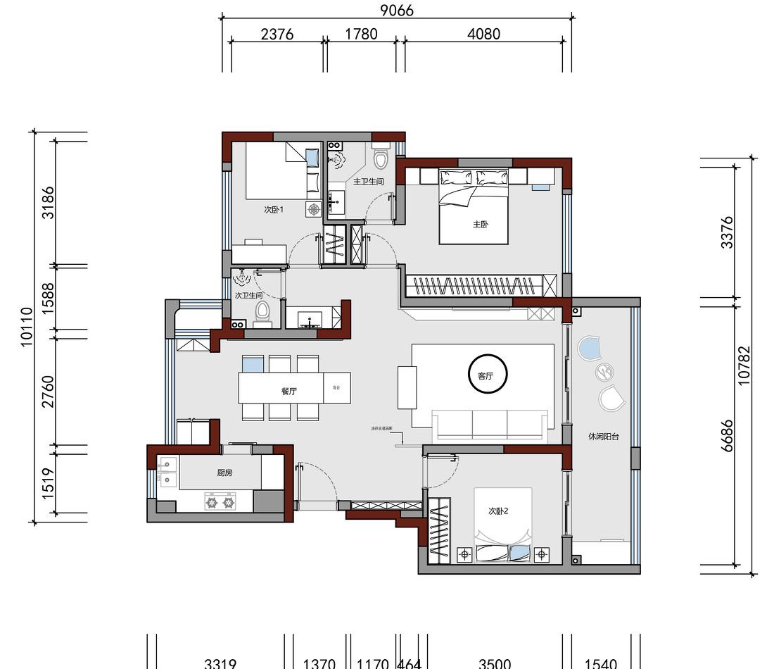
改造后户型:
解决问题:
1.打拆多余非承重墙体,破除门厅压抑感,进门第一感受更加明朗大气;将原次卧2门所在墙体向卧室内移动,这样一来,不仅入户视野开阔明亮,而且原本参差不齐的墙体补平之后,刚好放个大鞋柜;次卧室2内部格局也更加方正了。
2.新建墙体,主卧室门更改方位,原卧室门洞补平,主卧可做整排衣柜 ,空间利用率up!主卫门更改方位,在面积不缩小的情况下,动线更流畅。次卫生间设计为更宜居的 干湿分离 结构。
3.次卧1门更改方位,利用边角做个小衣柜,以后有了小朋友,放点衣服刚刚好。
打墙后,门厅肉眼可见的变大了。入户门旁边放个大 入户鞋柜 ,配上灯带不仅美观,而且实用性很强。
改造后,进门第一视角再也没有了闭塞感,开阔多了。
门厅相较原始户型,宽敞了不少,与客厅空间以一面 油砂玻璃,作为隔断。微透光,形成隐隐约约的边界感。
客厅开间只有3500mm,所以背景墙和吊顶都更加适合轻薄、量感小的设计。直排沙发,的选用,也是胜在其精巧不压空间。
浅灰色乳胶漆+低饱和度 柔光地砖,+同色系定制柜,客餐厅视觉上看起来色调统一,整体性很强。
改造后,沙发背景墙打拆掉的一部分补上一面 油砂玻璃,微透光。在功能上用作 隔断,在视觉上却又和沙发背景墙融为一体,增强了延伸感。
沙发背景墙。简单刷低饱和度灰调乳胶漆,高级耐脏看不腻,配上有质感的柔和灯光,居家氛围很温馨。
客餐厅摒弃传统吊顶方式;舍弃单一主光源,转而用筒灯、轨道灯、灯带等,打造点线面结合的 无主灯设计,空间照明感受更舒适,视觉上也更轻盈,
电视背景墙,用石膏板做造型,下方加灯带,丰富了素色背景墙的层次感!也优化了大空间的光环境。
电视柜选用落地款式,不留卫生死角,地面铺设灰色系 柔光大地砖,柔光砖纹路更少,质感细腻柔滑,相较光亮的抛光砖,柔光砖对光线的包容性更优越,工作看了一天电脑,回家跟光污染说再见!
厨房顶面做 铝扣板吊顶,经久耐脏,卫生也好打理!橱柜台面后方做 挡水条 ,不留缝隙,减少细菌滋生,视觉也更整洁!
生活阳台打通合并到餐厅,装上 梦幻帘 ,餐厅更敞亮了。
冰箱摆放在原来的生活阳台,分担厨房的空间压力!而且距离餐桌近,饭后拿个冷饮、酸奶、水果都很方便。
在家吃饭,一定要选带插孔的 岛台餐桌,插上电磁炉烫个火锅,手机充个电太方便了!
餐厅上方装吊灯,留空变少,整体环境中多了一些线条感与设计感!
卫生间做 干湿分离 ,洗面柜外置 ,晨起洗漱互不冲突~ 台下盆,不仅干净漂亮,重点是打扫卫生很方便!
主卧室床尾设计 整墙衣柜,收纳空间越大,房屋就越整洁!双人床自带灯带,氛围感满满。
休闲阳台顶面做 生态木吊顶 ,地面铺低饱和度 水磨石花砖 ,休息日在家喝杯咖啡超有情调,阳台记得装上 洗衣机柜 。
客服
消息
收藏
下载
最近




















