查看完整案例


收藏

下载
Restaurants & Bars, Restaurant & Bar Interiors, Brazil
设计师:Roby Macedo arquitetura e design
面积: 300 m²
年份:2020
摄影:Jesus Perez
建造商: Biancogres, Ladrilhos Santa Rosa, Palimanan, SAYER, Textura e Cia
Lead Architect:Roby Macedo
Country:Brazil
Pizzeria Casuale was born with the idea of a contemporary and relaxed atmosphere, promoting meetings at different times of the day. Located in one of the busiest avenues in São luís MA, the party went on to create a stripped-down identity with references in more traditional pizzerias, using elements such as corten steel, wood, and hydraulic tiles.
The project comes up with the idea of renovating an existing structure, with few structural changes, but with a new face. To this end, we created a metallic structure, all hollow, with the intention of creating a tunnel for entry and camouflage the old existing windows. The structure also works as a support for vases with jabuticaba trees that are suspended on the facade.
The reception consists of a large log of natural wood, which serves as a support for the attendants. In the background, we created a metallic structure in the same pattern like the facade structure, however in smaller and white dimensions, which allows a broader view of the hall. Besides, still in the external area, we developed an environment for waiting, with a bench and tiled tables mimicking the floor.
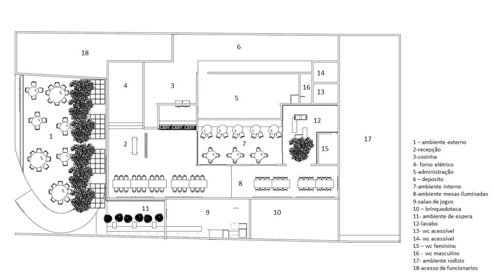
The interior of the pizzeria is separated by several environments, which are: the external space overlooking the avenue and internally divided according to uses, a casual one with backlit high tables, for quick snacks or "happy hour", a more intimate space for families or more reserved meetings, with wooden tables and upholstered sofa and the last space for casters, with a zenith opening, for the old tree on the land.
The old kitchen was transformed into the pizzas assembly and storage area, where we made a glass opening for people to watch the preparation.
Personality, environmental comfort, affectionate memories, and contemporaneity are pillars of the creation of this project, seeking a simple architecture, with little environmental impact, but transforming.
项目完工照片 | Finished Photos
设计师:Roby Macedo arquitetura e design
分类:Restaurants \u0026 Bars
语言:英语
阅读原文
客服
消息
收藏
下载
最近































