查看完整案例

收藏

下载

翻译
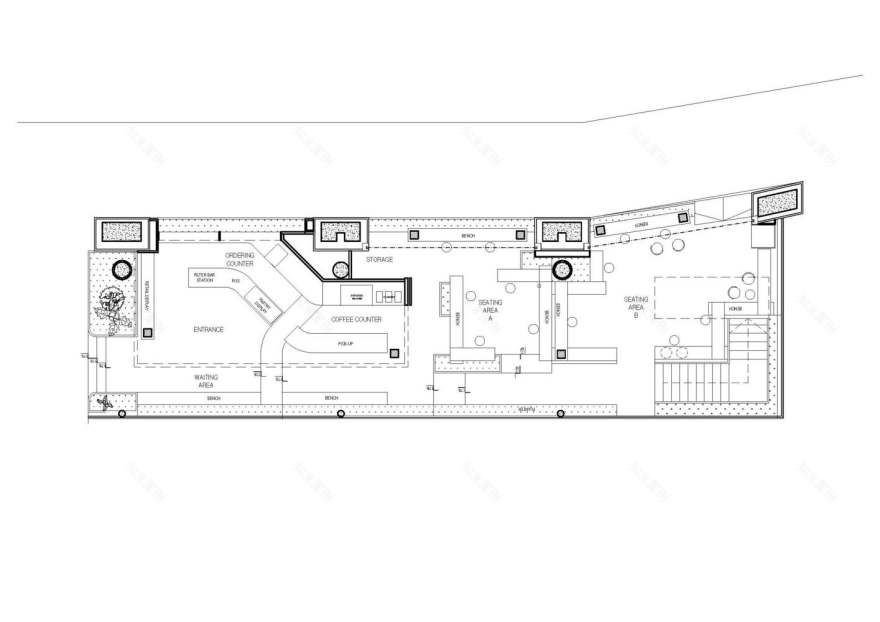
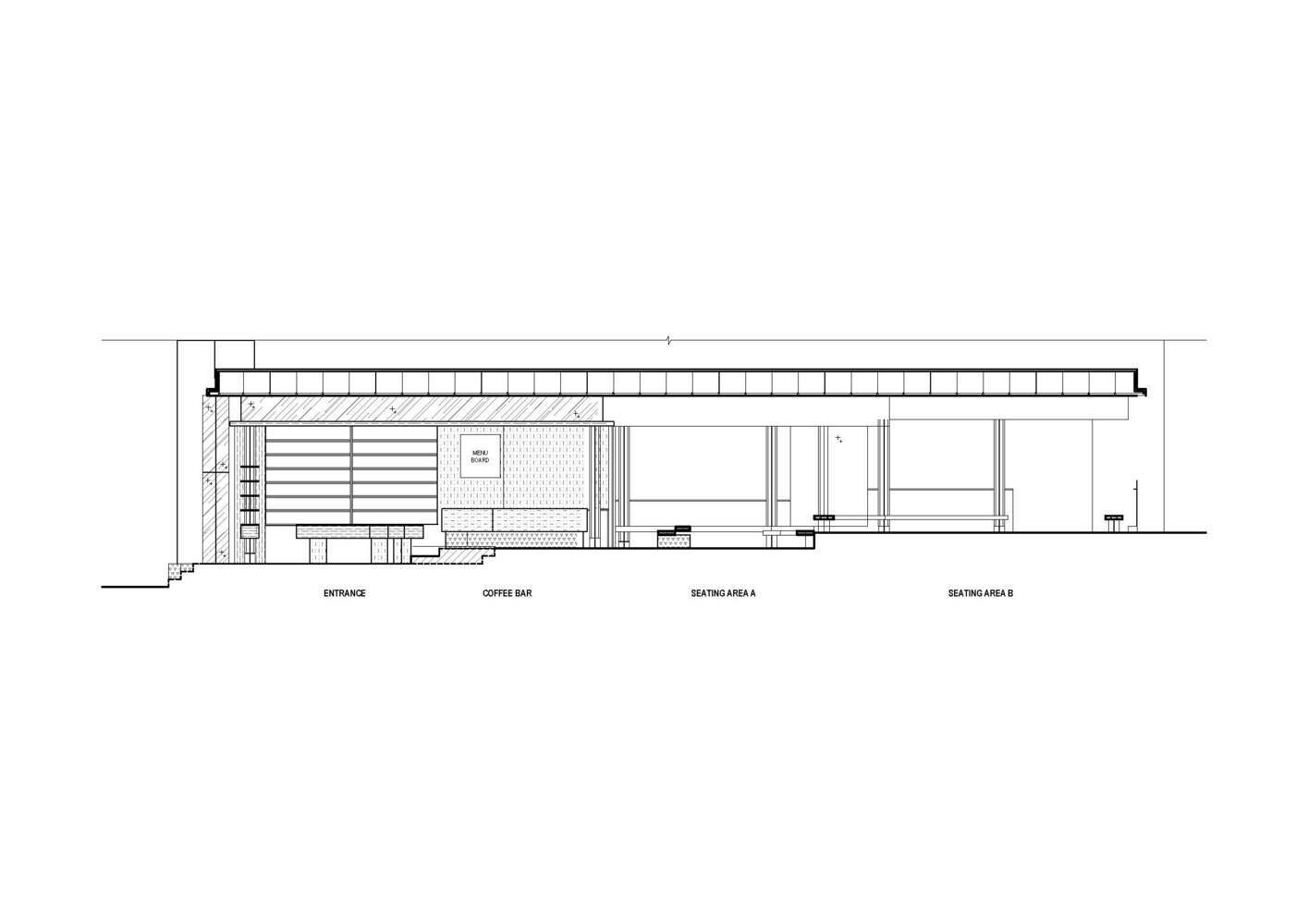
The design of the space for this outlet of Alchemist Coffee is built around the idea of a timber pavilion nestled on the gently sloped site, providing shelter and respite to passers-by. Located in a sheltered open-air space at a corner off Orchard Road, among the shopping malls along one of the busiest shopping streets in Singapore, it is intended to be a quiet oasis within the hustle and bustle of the area.
The idea for the timber pavilion came about primarily due to one of the challenges the site faces: the space allocated for the café only occupies the lower half of the outdoor structure it is housed in, with the upper half being used by another restaurant. Our intervention had to visually stand out from the existing structure. Through the idea of the pavilion, a second “roof” was created that allowed the café space to visually detach from the main structure. The choice of wood as the main material in the palette (in contrast with the dark grey and glass of the min structure) also helped with the visual separation.
The timber pavilion greets the visitors walking up from the main road with a landscaped planter and a lighted grid ceiling that marks the entrance area of the space. A retail area, an ordering counter with a pastry display, and a waiting bench for customers are located here.
As the visitor walks further into the space, the space tapers along the stainless steel coffee counter, opening up into the seating areas articulated by a series of terraced platforms built onto the slanted terrain, overlaid with a composition of abstract timber structures that form benches for sitting, and also loosely carve the space into smaller intimate areas, while still allowing visual porosity through the space.
This arose from another challenge we had with the site, with the regulations not allowing any part of the space to be totally enclosed from the outside, even with transparent glass walls, such that most of the vertical surfaces either have to be open or highly porous. We had to design it such that there is a sense of enclosure while maintaining a sense of transparency within the space and towards the exterior.
Landscape elements are interplayed with the timber structures, overlapping each other, fusing soft organic elements with straight lines and industrial accents.
客服
消息
收藏
下载
最近













