查看完整案例


收藏

下载

翻译
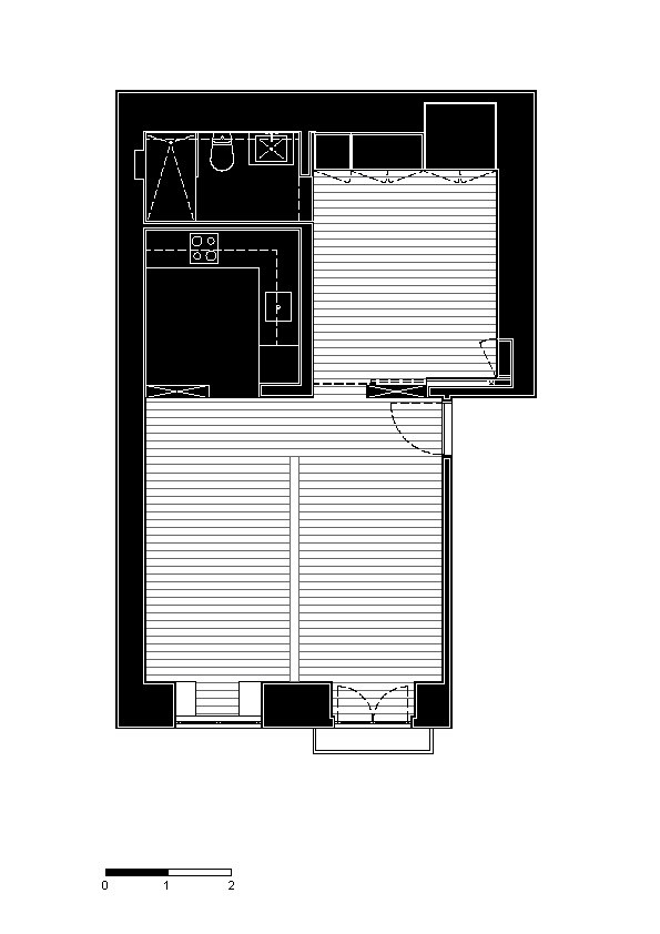
The apartment in Santa Apolónia is located on the first floor of a Pombaline building whose interior has been overwhelmed by the layers of time and the needs of those who inhabited it.
The intervention required, in this sense, the rethinking of the essential in a search for the identity of the house and the consequent appreciation of its characteristics.
The structure and the existing infrastructures forced the location of the kitchen and the sanitary installation. St. Andrew crosses were properly treated and assumed as a constructed curtain, separating the spaces. We sought, therefore, the creation of a flexible and transparent house, where the different divisions are indistinct and its limits unknown.
There is, however, the possibility of separating room and bedroom through a sliding wall, filling the need for privacy.
客服
消息
收藏
下载
最近



















